Villas 50

Afficher toutes les entrées
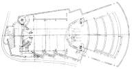
01 Îlot 52, tour de Foncillon
Foncillon
Architecte : Louis SIMON
Lieu : Façade de FoncillonDate de projet : 1956Date de livraison : 1962Collaborateur : A. Morisseau, R. Sarger
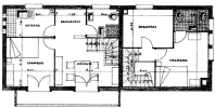
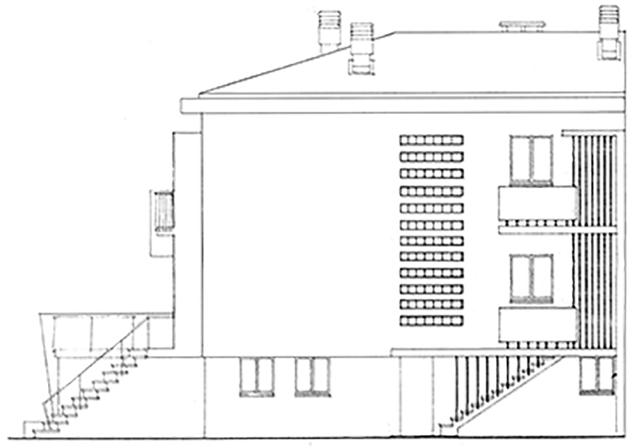
Implantée dans l'angle formé par la façade et la rue de Foncillon, la Tour d'habitation de Louis Simon est postérieure à l'ensemble du quartier. Elle constitue l'un des éléments majeurs de la vaste opération de lotissement de Foncillon, totalement détruit par le bombardement. Les transactions sur les dommages de guerre en retarderont longtemps la construction. Élançant, face à la mer, ses treize étages d'habitation, elle représente un symbole indéniable pour Foncillon. Regroupant trente-six appartements profitant tous de la vue sur le littoral, cet édifice afficha rapidement ses prestations de standing. Sa décomposition en quatre redans successifs confère à chaque logement une intimité indiscutable et une exposition plein sud. Duplex et simplex se confondent dans les trois volumes les plus avancés, animant ainsi la façade par l'hétérogénéité de leur hauteur sous balcons. La dernière tranche, située en fond de parcelle et tournant le dos à la rue Pierre Jônain est, quant à elle, régulière et rassemble des appartements de taille plus modeste. Demeurée longtemps l'unique immeuble d'une telle hauteur à Royan, cette audacieuse tour de Foncillon doit sa renommée aux prouesses techniques mises en œuvre, grâce à la participation de l'ingénieur René Sarger.
Localisation
Photos & plans
Îlot 52, tour de Foncillon - image 1 Îlot 52, tour de Foncillon - image 2 Îlot 52, tour de Foncillon - image 3 Îlot 52, tour de Foncillon - image 4 Îlot 52, tour de Foncillon - image 5
02 Îlot 52, immeuble pont
Foncillon
Architecte : Louis SIMON
Lieu : Avenue des CongrèsDate de projet : 1959Date de livraison : 1962Collaborateur : R. Baraton, J. Bauhain, M. Hébrard
Édifié le long du square Kennedy, l'immeuble pont, constitue une frontière claire entre les quartiers du Centre et de Foncillon. Un portique monumental permet à la rue Pierre Jônain de le franchir. Il constitue, avec la tour voisine, une des plus vastes opérations de logement collectif engagée à Royan pendant la Reconstruction. Réalisation symptomatique de l'œuvre de Louis Simon, il affiche distinctement ses références à la conception Corbuséenne. Le rez-de-chaussée est laissé libre grâce à l'utilisation de larges piliers porteurs. Seuls, quatre escaliers amarrés au sol permettent d'accéder aux étages d'habitation. Les logements sont desservis par une coursive extérieure située à l'arrière du bâtiment. La façade sur le parc est rythmée par la taille des ouvertures. Appartements simples et duplex scandent les différents niveaux. Les balcons alternent avec les terrasses et les verrières pour produire un surprenant désordre organisé. Proche de l'immeuble-villa et des grands ensembles, cette barre a su mettre en œuvre les nouvelles théories modernistes avec beaucoup plus d'enthousiasme que dans le cas du Front de Mer. Louis Simon opère ici un changement radical en abandonnant définitivement ses références classiques.
Localisation
Photos & plans
Îlot 52, immeuble pont - image 1 Îlot 52, immeuble pont - image 2 Îlot 52, immeuble pont - image 3 Îlot 52, immeuble pont - image 4 Îlot 52, immeuble pont - image 5 Îlot 52, immeuble pont - image 6
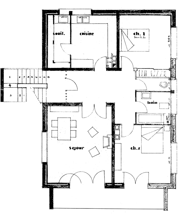
03 Villa ”le grille-pain”
Foncillon
Architecte : Pierre MARMOUGET, Edouard PINET
Lieu : 52, Rue de FoncillonDate de projet : 1953Date de livraison : 1956Maître d’ouvrage : Indivision BouteaudMaîtres d’œuvre : Edouard Pinet, Pierre MarmougetProgramme : 2 appartements identiques séjour + 2 chambresSurface : SHOB 2 x 150 m²
Assurément, la rue de Foncillon demeure un témoin incontestable de Royan telle qu'elle paraissait au lendemain de la Reconstruction. Et parmi ce florilège de maisons, toutes plus originales les unes que les autres, se détache un chef-d'œuvre d'excentricité. Écrasant son socle de pierre ancré solidement dans l'asphalte, un prisme de béton blanc impose à la rue son indéniable puissance. La superposition de deux appartements identiques, destinés à accueillir deux familles autonomes, est lisible sur les façades. Tandis que de larges baies percées dans l'axe de la rue ouvrent les pièces à vivre sur l'océan, claustras et porte-à-faux protègent du soleil les espaces les plus exposés. Jouxtant l'entrée, la courbe de la cage d'escalier, empruntée au design des arts ménagers, confère au bâtiment son inimitable style. Au détour du petit jardin, un escalier hélicoïdal s'enroule autour d'un champignon de béton pour atteindre balcon et terrasse. Accentués par l'utilisation d'un bleu céruléum, ces éléments singuliers vous plongeront peut-être dans l'univers de Jacques Tati. La qualité de ce projet reflète parfaitement l'incomparable production de l'architecte Pierre Marmouget, fidèlement assisté dans son entreprise par Édouard Pinet.
Localisation
Photos & plans
Villa ”le grille-pain” - image 1 Villa ”le grille-pain” - image 2 Villa ”le grille-pain” - image 3 Villa ”le grille-pain” - image 4 Villa ”le grille-pain” - image 5 Villa ”le grille-pain” - image 6
04 Immeuble
Foncillon
Architecte : Louis SIMON
Lieu : 27, Rue de Foncillon (angle Rue du docteur Audouin)Date de projet : 1949Date de livraison : 1964Maître d’ouvrage : TaunayMaîtres d’œuvre : Louis SimonProgramme : 2 studios + 4 F2 + 4 F3 + 2 F4 duplex + 2 F5 duplex
Clin d'œil à l'architecture parisienne d'avant-guerre et aux ouvrages de Perret, cet immeuble de la rue de Foncillon demeure très différent des réalisations de la même époque et détonne dans le contexte du quartier de Foncillon. À Royan, les empreintes d'une quelconque influence de l'architecte Auguste Perret et des principes de rationalisme structurel qu'il défend, sont rares et souvent maladroites. Seul, ce projet de Louis Simon pour l'entrepreneur local Robert Taunay, exprime clairement cette esthétique fondée sur l'affirmation du système classique et constructif. Ce véritable exercice de style, sans doute imposé par le commanditaire, offre à l'architecte une occasion unique de travailler « à la manière de ». Il rend lisible, en façade, le célèbre triptyque poteau, poutre, remplissage, dont Perret, le Parisien, a fait sa griffe. Les claustras obliques de la cage d'escalier rappellent curieusement ceux mis en œuvre dans la chapelle du Raincy. La composition est achevée par un céleste auvent annonçant l'entrée et par une pesante corniche de pierre débordante, couronnant la toiture. Fruit d'une commande privée et œuvre du renommé Simon, ce petit collectif n'hérite que peu des références brésiliennes adoptées simultanément par le maître et apparaît comme une œuvre unique dans le quartier, peut-être aussi à cause de son exécution tardive.
Localisation
Photos & plans
Immeuble - image 1 Immeuble - image 2 Immeuble - image 3 Immeuble - image 4 Immeuble - image 5 Immeuble - image 6
05 Maison de ville, îlot 126
Foncillon
Architecte : Marcel CANELLAS
Lieu : 9, Rue du docteur Audouin (angle Rue de Foncillon)Date de projet : 1957Date de livraison : 1960Maître d’ouvrage : Mademoiselle GouinMaîtres d’œuvre : Marcel CanellasProgramme : 1 appartement séjour cuisine + 1 appartement séjour + studio + 2 chambresSurface : SHOB 190 m²Collaborateur : Roger Mialet (chef de groupe)
À l'angle des rues du docteur Audouin et de Foncillon, cet imposant projet propose une expression de l'architecture des années 50, un peu différente de celle habituellement mise en œuvre à Royan. Profitant de la déclivité du terrain, l'architecte oriente les accès des deux logements, à l'opposé l'un de l'autre, et conserve ainsi la privauté de chacun. Ses volumes éclatés et découpés confèrent au bâtiment un léger effet de déconstruction. Malgré l'homogénéité du traitement de ses façades, un rez-de-chaussée se démarque, signifié par un liseré de béton continu. Percé d'une succession de fenêtres et séparé du volume supérieur par de larges saillies horizontales, il accorde à l'ensemble une relative légèreté. À l'étage, une coursive longe les chambres et l'élance sans retenue au-dessus du carrefour. Cette dalle, jetée en porte-à-faux, tend à être déséquilibrée par l'inclinaison de la toiture. À l'arrière, entrée et séjour ont trouvé refuge sous l'ombre gracile d'une fine pergola de béton qui rythme la journée de sa lente chorégraphie. œuvre de Marcel Canellas, cette réalisation semble pourtant bien étrangère aux références brésiliennes dont son auteur tirera l'inspiration nécessaire à la réalisation de l'auditorium.
Localisation
Photos & plans
Maison de ville, îlot 126 - image 1 Maison de ville, îlot 126 - image 2 Maison de ville, îlot 126 - image 3 Maison de ville, îlot 126 - image 4 Maison de ville, îlot 126 - image 5 Maison de ville, îlot 126 - image 6
06 Villa mitoyenne ”Coraline”, îlot 126
Foncillon
Architecte : René BARATON, Jean BAUHAIN, Marc HÉBRARD
Lieu : 34, 36 et 38, Rue de FoncillonDate de projet : 1956Date de livraison : 1960Maître d’ouvrage : Ind. Joubert, Baisson, RicardonMaîtres d’œuvre : Jean Bauhain, Marc Hébrard, René BaratonProgramme : 3 maisons identiques séjour + 2 chambresSurface : SHOB 3 x 95 m²Collaborateur : R. Mialet (chef de groupe)
Accrochées à la rue de Foncillon, ces trois maisons mitoyennes se confondent en un seul et même édifice et constituent l'une des opérations de lotissement de l'îlot n°126. Leur mise en œuvre, strictement identique, tend à perdre le regard du promeneur qui chercherait à identifier chacune des propriétés. Ici, les architectes ont opté pour un traitement proche de celui habituellement destiné à la construction de villas individuelles. Le rez-de-chaussée en retrait allège le volume de l'étage tandis qu'une série de piliers de béton en étaye le porte-à-faux, sous lequel se sont réfugiées les entrées. La façade reste très fermée du côté de la rue et des murs pignons, fidèle aux dogmes du moment. Seuls, des claustras signalent les cages d'escalier en partie haute. Au contraire, l'arrière est largement ouvert au jardin sur lequel les pièces à vivre donnent de plain-pied. Si Baraton, Bauhain et Hébrard ne font que participer au chantier de cet îlot, ils en réalisent toutefois le projet le plus intéressant, reprenant le thème assez rare de la maison « en bande ».
Localisation
Photos & plans
Villa mitoyenne ”Coraline”, îlot 126 - image 1 Villa mitoyenne ”Coraline”, îlot 126 - image 2 Villa mitoyenne ”Coraline”, îlot 126 - image 3 Villa mitoyenne ”Coraline”, îlot 126 - image 4 Villa mitoyenne ”Coraline”, îlot 126 - image 5 Villa mitoyenne ”Coraline”, îlot 126 - image 6
07 Maison de ville
Foncillon
Architecte : Marc HÉBRARD, Roger MIALET
Lieu : 17, Rue de Foncillon (angle Rue du docteur Paul Métadier)Date de projet : 1959Date de livraison : 1971Maître d’ouvrage : Georges LabrelyMaîtres d’œuvre : Marc Hébrard, Roger MialetSurface : SHOB 130 m² + 6 garages
À l'angle des deux rues, sans doute les plus 50 de Royan, la rationalité de ce projet participe largement à l'originalité du carrefour. Pensé comme un « immeuble plot », il est destiné à créer une liaison visuelle douce entre l'échelle imposante des grandes opérations d'habitat collectif et celle plus réduite des résidences individuelles. Construit selon l'habituel schéma du R +1, l'immeuble tire sa particularité de l'importance qu'il accorde à l'automobile, nouvelle proie d'une société de consommation en plein essor. L'habitation, reléguée à l'étage, libère un rez-de-chaussée occupé en totalité par des garages. Au nombre de six, ces vastes box tiennent une place considérable dans l'édifice. D'un point de vue architectural, ils constituent un socle protecteur au logement, lesté par un traitement de pierre appareillée. Le niveau supérieur, en blanc, présente une configuration beaucoup plus aérée. Sa mise en œuvre reprend les traditionnels éléments du mouvement moderne, tels le balcon périphérique, les brise-soleil et les potelets métalliques, en assurant le porte-à-faux ou encore le toit-terrasse. Reprenant le style adopté pour la reconstruction du quartier, ce petit immeuble a été réalisé par Marc Hébrard avec la remarquable collaboration de l'architecte parisien Roger Mialet, à qui l'on doit entre autres, les incontournables îlots 85 et 106 de la place Schuman, reconnaissables par la monumentalité des brise-soleil.
Localisation
Photos & plans
Maison de ville - image 1 Maison de ville - image 2 Maison de ville - image 3 Maison de ville - image 4 Maison de ville - image 5 Maison de ville - image 6
08 Villa
Foncillon
Architecte : Marc QUENTIN
Lieu : 16, Rue du docteur Paul Métadier (angle Rue Jean Gouly)Date de projet : 1954Date de livraison : 1956Maître d’ouvrage : Madame Veuve LucazeauMaîtres d’œuvre : Marc QuentinProgramme : 2 appartements identiques séjour + 2 chambresSurface : SHOB 2 x 73 m²
Massivement inscrit dans l'angle des rues du docteur Paul Métadier et Jean Gouly, cet imposant parallélépipède blanc illustre, un peu tard, les principes constructifs prônés dans les années vingt. Décollé du sol par un sombre et impénétrable rez-de-chaussée évidé, le bâtiment semble flotter au-dessus du petit jardin. Seuls, l'entrée menant aux circulations et deux menus pilotis amarrent ce paquebot de béton vers le sol. Un auvent circonflexe de béton bleu mène à couvert le visiteur vers la porte. Quatre potelets métalliques en empêchent l'envol. En façade, l'architecte n'impose aucune hiérarchie. Les fenêtres, toutes identiques, ne permettent aucune présomption quant à la nature des pièces. La cage d'escalier indique pourtant sa présence par une succession organisée de prises de jour horizontales. Parfois, en allège, des claustras de béton alternés permettent un apport supplémentaire de lumière. Les volets à lamelles, montés sur rails, éloignent au contraire les rayons du soleil les plus ardents. Marc Quentin signe ici un projet proche de la maison Grille-Pain de Pierre Marmouget. Mais, si l'on a parfois tendance à confondre le travail des deux hommes, leur souci du détail leur confère une identité propre et reconnaissable.
Localisation
Photos & plans
Villa - image 1 Villa - image 2 Villa - image 3 Villa - image 4 Villa - image 5 Villa - image 6
09 Villa
Foncillon
Architecte : Marc QUENTIN
Lieu : 20, Rue du docteur Paul MétadierDate de projet : 1953Date de livraison : 1956Maître d’ouvrage : Yvette ChambonMaîtres d’œuvre : Marc QuentinProgramme : séjour + office + 4 chambresSurface : SHOB 150 m²
La mise en œuvre originale de cette incontournable villa ajoute à la qualité architecturale de la rue du docteur Paul Métadier. La thématique de la dualité y est déclinée par un socle lourd, traité en pierres apparentes, et un second volume très léger, laissé en béton lisse. Une entaille dans le rez-de-chaussée permet de distinguer les deux masses. Le porte-à-faux de l'étage, soutenu par un unique pilotis, offre, quant à lui, un refuge salutaire à l'entrée, l'abritant des inconvénients climatiques. Le mur pignon et la cage d'escalier, signalée en façade par un traitement de pavés de verre, constituent les seuls repères visuels communs aux deux niveaux. L'arrière est davantage perméable, laissant pénétrer le soleil du sud. Les chambres donnant sur le jardin ont été reculées et bénéficient d'une agréable loggia. Le débord de la toiture tient lieu de brise-soleil et rythme de son ombre les journées estivales. L'opposition des matériaux, l'enchaînement des pleins et des vides caractérisent le travail de Marc Quentin. Son architecture, qui se veut économique et pratique, invente finalement un nouveau type d'esthétisme, à la fois décoratif et formel.
Localisation
Photos & plans
Villa - image 1 Villa - image 2 Villa - image 3 Villa - image 4 Villa - image 5 Villa - image 6
10 Maison de ville
Foncillon
Architecte : Marc HÉBRARD
Lieu : 27, Rue du docteur Paul MétadierDate de projet : 1961Date de livraison : 1964Maître d’ouvrage : Marc HébrardMaîtres d’œuvre : Marc HébrardProgramme : 2 appartements identiques séjour + 2 chambresSurface : SHOB 2 x 62 m²
Seule, la situation de ce petit immeuble dans la rue du docteur Paul Métadier annonce l'originalité de sa mise en œuvre. À l'origine, sa conception reprend le modèle du portique. Les deux étages d'habitation s'accrochaient aux murs pignons voisins, afin de libérer le sol de toute emprise matérielle. Seule, une série de poteaux reprenait les charges du bâtiment, identifiant les emplacements pour deux voitures. La perspective visuelle sur le jardin était toutefois rompue par un claustra vertical. Composée d'une succession de potelets métalliques placés à mi-distance, cette singulière paroi dissimulait, outre un petit local technique, un sculptural escalier hélicoïdal. La seconde moitié du préau était, quant à elle, destinée à abriter une partie du jardin. En façade, la superposition des deux appartements identiques se lit facilement. Les séjours ont été placés côté rue afin de bénéficier d'une orientation plein sud, tandis que les chambres profitent du calme et de la fraîcheur de l'arrière. Un entablement épais accentue l'horizontalité initiée par le traitement des fenêtres et semble tasser l'édifice. Il s'agit d'un coffrage destiné à camoufler la pente inesthétique de la toiture, proscrite par les dogmes modernes. Marc Hébrard, maître d'œuvre et maître d'ouvrage, aurait signé seul ce projet dont les qualités ont aujourd'hui malheureusement perdu de leur lisibilité.
Localisation
Photos & plans
Maison de ville - image 1 Maison de ville - image 2 Maison de ville - image 3 Maison de ville - image 4 Maison de ville - image 5 Maison de ville - image 6
11 Maison de ville
Foncillon
Architecte : Paul DREMILLY
Lieu : 30, rue du docteur Paul MétadierDate de projet : 1955Date de livraison : 1957Maître d’ouvrage : Jean AllegrierMaîtres d’œuvre : Paul DremillyProgramme : 2 apprts. séjour + 2 chambresSurface : SHOB 105 + 95 m2
Au cœur de la rue du docteur Paul Métadier, ce projet étonnera par la transparence de sa mise en œuvre. Associant deux appartements de même surface, il semble avoir largement privilégié son orientation sur la rue. L'ensemble s'organise autour d'une cheminée de lumière occupée par la cage d'escalier. Trois de ses faces ont en effet adopté le pavé de verre et jouent avec la transparence. Ainsi, elle constitue une transition visuelle, de l'extérieur vers l'intérieur, suggérant le profil de ses volées de marches. À l'origine, seule la fenêtre du rez-de-chaussée existait, le séjour de l'étage étant habillé d'une verrière identique à celle des circulations. Cette déclinaison de petits carreaux vitrés, regroupés dans des carrés plus grands, contrastait d'autant avec l'opacité des parois de béton. Profitant du retrait d'une partie de la façade, une petite terrasse s'élance au-dessus de l'entrée, telle une loge sur la rue. De manière subtile, le garde-corps fait un clin d'œil architectural au reste du bâtiment. À l'arrière, les baies n'ont fait l'objet d'aucun traitement particulier. Seul un hublot vient ponctuer la façade. Un épais linteau, identique à celui visible depuis la rue, couronne l'ensemble pour dissimuler la toiture de tuiles à double pans inversés, sans doute jugée trop classique. Paul Dremilly, à qui l'on doit l'original Temple de Saint-Georges-de-Didonne, affirme dans chacun de ses projets son appartenance au mouvement moderne royannais.
Localisation
Photos & plans
Maison de ville - image 1 Maison de ville - image 2 Maison de ville - image 3 Maison de ville - image 4 Maison de ville - image 5 Maison de ville - image 6
12 Villas symétriques
Foncillon
Architecte : Marc QUENTIN
Lieu : 57, Rue du docteur Paul Métadier (angle Rues du Chant des Oiseaux et des Moulins)Date de projet : 1955Date de livraison : 1956Maître d’ouvrage : Henri PapinMaîtres d’œuvre : Marc QuentinProgramme : 4 logements séjour + 2 chambresSurface : SHOB 4 x 110 m²
Ces deux bâtiments, bloqués entre les rues du docteur Paul Métadier, du Chant des Oiseaux et des Moulins, constituent en fait quatre maisons individuelles. Établis selon un schéma unique répété, ces deux projets sont le résultat de la complémentarité des plans et des coupes de chacun des logements. Leurs formes ont été étudiées pour s'encastrer parfaitement sans que l'une vienne nuire à l'autre. À cette fin, le rez-de-chaussée s'organise selon deux « L » entrelacés. L'étage, plus simple, contourne une loggia ouverte sur le jardin. Cette organisation complexe n'est pas révélée par la simple lecture des façades. Leur traitement mêle au contraire les propriétés et tend à perdre le regard. Seul, un épais mur de pierre pourfend l'ensemble de part en part et distingue les habitations. Les toitures imbriquées confondent leur forte pente en un « V » magistral et couronnent les façades d'un impressionnant linteau de bois. L'originalité est ici de mise et permet à Marc Quentin de réaliser quatre maisons de plain-pied sur une même parcelle. Ce petit casse-tête architectural révèle toute l'intelligence avec laquelle l'architecte abordait ses projets et apporte une touche de nouveauté dans la mise en œuvre souvent banale des maisons en série.
Localisation
Photos & plans
Villas symétriques - image 1 Villas symétriques - image 2 Villas symétriques - image 3 Villas symétriques - image 4 Villas symétriques - image 5 Villas symétriques - image 6
13 Villa
Foncillon
Architecte : Marc QUENTIN
Lieu : 21, rue des MoulinsDate de projet : 1955Date de livraison : 1958Maître d’ouvrage : Paul ResnierMaîtres d’œuvre : Marc QuentinProgramme : séjour + 2 chambresSurface : SHOB 77 m²
Au calme de la rue des Moulins, cette petite maison met en œuvre les principaux dogmes défendus par les architectes de la Reconstruction. Sa qualité participe d'ailleurs dignement à la réputation du quartier de Foncillon. Côté rue, le retrait du rez-de-chaussée confère au bâtiment une grande légèreté et permet aux occupants de disposer d'une surface couverte. L'entrée, aujourd'hui alignée sur la façade, était à l'origine confinée à l'ombre de cette cavité de béton. Le garage traversant permettait de relier la cour au jardin, malgré la double mitoyenneté du projet. L'habitation reléguée à l'étage se tourne, quant à elle, vers le soleil. La grande baie vitrée du séjour est doublée d'un claustra de bois pour filtrer la lumière. Un panneau coulissant, dont l'empreinte a marqué la façade, permet à la chambre de conserver sa fraîcheur aux heures les plus chaudes de la journée. À l'arrière, seuls deux hublots de ciment ponctuent l'élévation épurée à l'extrême. Si la production de Marc Quentin est essentiellement constituée d'élégantes bâtisses, on constate ici que l'architecte attache le même soin aux projets de moindre ampleur.
Localisation
Photos & plans
Villa - image 1 Villa - image 2 Villa - image 3 Villa - image 4 Villa - image 5 Villa - image 6
14 Centre catholique, gymnase
Foncillon
Architecte : René BARATON, Jean BAUHAIN, Marc HÉBRARD
Lieu : Rue du PrintempsDate de projet : 1952Date de livraison : 1955Maître d’ouvrage : Sté Civ. Notre-Dame de RoyanMaîtres d’œuvre : Jean Bauhain, Marc Hébrard, René BaratonProgramme : 1 terrain de jeu + 1 stand de tir + salles
Situé à cheval sur les quartiers du Centre et de Foncillon, le centre catholique de Royan s'inscrit dans la vaste opération de reconstruction comprenant l'église Notre-Dame et le Presbytère. Destiné à abriter un gymnase et plusieurs salles de sport, cet ouvrage déploie toute sa dimension sur la rue du Printemps. Le traitement linéaire de ses baies en accentue d'ailleurs les proportions et projette le regard bien au-delà du solide mur de pierre qui le termine. Sa façade principale, désormais obstruée par la bibliothèque municipale, célèbre le mariage du verre et de la pierre, sous les auspices d'une généreuse arche de béton rappelant curieusement celle de l'École de Reidy, à Rio de Janeiro. Une vaste terrasse triangulaire, accessible depuis l'étage, prolonge le projet et met en scène l'entrée du sanctuaire. À l'arrière, de larges baies vitrées ouvrent le terrain de jeu à la quiétude du cœur de l'îlot. Le second pignon, laissé aveugle, projette l'extrémité de sa courbe brésilienne jusque dans le sol et empêche le regard de porter au-delà de la parcelle. Baraton, Bauhain et Hébrard se voyant, dès 1954, refuser le projet de reconstruction de Notre-Dame, transforment leur concept et réutilisent bon nombre des éléments pour le centre catholique et l'actuelle centre des Mouettes.
Localisation
Photos & plans
Centre catholique, gymnase - image 1 Centre catholique, gymnase - image 2 Centre catholique, gymnase - image 3 Centre catholique, gymnase - image 4 Centre catholique, gymnase - image 5 Centre catholique, gymnase - image 6
15 Villa ”Océane”
Foncillon
Architecte : André MORISSEAU
Lieu : 32, Rue du PrintempsDate de projet : 1956Date de livraison : 1959Maître d’ouvrage : Robert JametMaîtres d’œuvre : André MorisseauProgramme : séjour + salle à manger + 1 chambreSurface : SHOB 85 m²Collaborateur : K. Raymond (archi décorateur)
Édifiée sur une profonde parcelle de la rue du Printemps, cette petite villa a opté pour la discrétion. Sa composition dans la longueur de son mitoyen lui permet de n'afficher qu'une façade très étroite sur la rue. D'ailleurs, son organisation plutôt inhabituelle est peut-être à l'origine de son incontestable qualité. En effet, les pièces de séjour sont situées à l'étage, reléguant l'unique chambre au rez-de-chaussée. En façade, la tranche d'un mur de pierre appelle le visiteur à se rendre vers l'entrée. Encadrée d'une paroi de pavés de verre, la porte a su profiter d'une entaille dans le rez-de-chaussée. La longue paroi latérale est rythmée par une succession d'oculi disposés sans ordre le long de la cage d'escalier. Une lourde cheminée de maçonnerie en constitue le second angle et intervient, telle une ancre arrimant le bâtiment au sol. Seule entrave à cette masse compacte, une fine dalle de béton émerge du monolithe et prolonge le séjour en porte-à-faux sur le jardin. Talentueux collaborateur de Louis Simon lors de la reconstruction du marché central et adjoint de Claude Ferret, André Morisseau, comme nombre de ses homologues, se verra confier des projets de moindre ampleur mais dont l'originalité n'a rien à envier aux grands édifices du nouveau Royan.
Localisation
Photos & plans
Villa ”Océane” - image 1 Villa ”Océane” - image 2 Villa ”Océane” - image 3 Villa ”Océane” - image 4 Villa ”Océane” - image 5 Villa ”Océane” - image 6 Villa ”Océane” - image 7
16 Maison de ville
Foncillon
Architecte : Pierre MARMOUGET, Edouard PINET
Lieu : 23, Rue du PrintempsDate de projet : 1953Date de livraison : 1958Maître d’ouvrage : Madame GravellatMaîtres d’œuvre : Edouard Pinet, Pierre MarmougetProgramme : 1 logement séjour + bureau + 4 chambres et 1 appartement séjour + 3 chambresSurface : SHOB 185 + 95 m²
Accessible par la rue du Printemps et, à l'arrière, par la contre-allée de l'Église Notre-Dame, cet immeuble symptomatique de la production architecturale des années 50 doit sa qualité à l'originalité de sa mise en œuvre. Destiné à recevoir deux appartements autonomes, le projet se décompose en trois niveaux très différents. La cage d'escalier, scandée par des lucarnes de pavés de verre, et le dernier étage ont été placés en retrait, de façon à identifier la limite des propriétés. Un monumental cadre de béton orne le premier étage et offre aux chambres une coursive sur la ville. Sa partie haute se transforme en un balcon prolongeant l'étage supérieur. Son audacieux porte-à-faux permet en outre de protéger l'entrée des intempéries. Côté jardin, la double hauteur du séjour est signifiée par une imposante paroi perforée d'une pléiade de culs de bouteille. Cet astucieux filtre solaire confère au bâtiment toute son esthétique en réemployant l'élément principal du vocabulaire nautique : le hublot. Assurément différent des habituelles réalisations de Pierre Marmouget et d'Édouard Pinet, ce projet conserve cependant une qualité remarquable.
Localisation
Photos & plans
Maison de ville - image 1 Maison de ville - image 2 Maison de ville - image 3 Maison de ville - image 4 Maison de ville - image 5 Maison de ville - image 6
17 Villa
Foncillon
Architecte : René BARATON, Jean BAUHAIN, Marc HÉBRARD
Lieu : 41, rue du docteur AudouinDate de projet : 1956Date de livraison : 1959Maître d’ouvrage : Indivision Henry PelletreauMaîtres d’œuvre : Jean Bauhain, Marc Hébrard, René BaratonProgramme : séjour + 2 chambres + 1 galerieSurface : SHOB 172 m²
Tout en haut de la rue du docteur Audouin, un peu avant le boulevard de l'Océan, la polychromie de cette villa accrochera votre regard. Bien qu'elle ne soit sans doute pas d'origine, elle présente l'avantage d'identifier chacun des éléments singuliers de cette réalisation. D'une manière générale, le projet s'attache à établir de subtiles relations entre intérieur et extérieur. Ainsi, le rez-de-chaussée, ceinturé par d'épais murs de pierre, est solidement ancré dans la parcelle. De larges baies l'ouvrent sur le jardin tandis qu'une astucieuse serre intérieure laisse pénétrer la végétation au cœur de l'habitation. L'étage est contenu dans un unique volume de béton blanc, ouvert largement sur l'arrière. Les trois autres faces sont laissées aveugles, à l'exception d'une lucarne percée de manière impromptue sur la rue. Au sud, l'ensemble est orné d'un sculptural auvent. Mêlant béton et métal, cette insolite toiture conduit le visiteur à couvert jusqu'à la monumentale paroi de pavés de verre signalant l'entrée. Un mur, originalement perforé, protège la cuisine des rayons du soleil les plus ardents, tandis qu'un chef-d'œuvre de ferronnerie cubiste reprend curieusement les segments orthogonaux de Mondrian. Ici, Baraton, Bauhain et Hébrard semblent s'être davantage attachés aux détails et à l'esthétique du bâtiment plutôt qu'à sa seule mise en œuvre.
Localisation
Photos & plans
Villa - image 1 Villa - image 2 Villa - image 3 Villa - image 4 Villa - image 5 Villa - image 6
18 Villa
Foncillon
Architecte : Marc HÉBRARD
Lieu : 36 bis, rue du docteur AudouinDate de projet : 1959Date de livraison : 1962Maître d’ouvrage : Madame Veuve ChristophleMaîtres d’œuvre : Marc HébrardProgramme : séjour + 2 chambres + mezzanineSurface : SHOB 119 m²
Véritable puzzle d'architecture, cette petite villa de la rue du docteur Audouin ne ressemble que peu au Royan des années 50. Sa principale particularité réside dans le mariage inhabituel qu'elle célèbre. Béton, pierre, verre, bois et métal sont autant de matériaux mis en œuvre dans ce projet, chacun renvoyant à une fonction ou à un usage précis. L'organisation de ses espaces selon quatre demi-niveaux est clairement visible en façade. Différents traitements en facilitent la lecture. Ainsi, à l'extérieur, chaque pièce devient identifiable par son revêtement ou l'expression de ses baies. Le garage, habillé de pierre, constitue le socle de l'ensemble. Les chambres, isolées du sol, profitent de la chaleur du bois, et qui les distingue du reste de l'habitation. Le séjour, qui bénéficie d'une double hauteur, s'ouvre largement sur le jardin, alors que la mezzanine qui le surplombe préserve son intimité derrière une série de percements opaques. L'entrée, contenue dans le retrait d'un remarquable porche creusé en biseau, devient une pièce à part entière. Chaque réalisation, que Marc Hébrard signe seul, s'avère être une expression réinventée des dogmes modernes adoptés par les principaux acteurs de la Reconstruction.
Localisation
Photos & plans
Villa - image 1 Villa - image 2 Villa - image 3 Villa - image 4 Villa - image 5 Villa - image 6
19 Villa
Foncillon
Architecte : Marc QUENTIN
Lieu : 22, rue du docteur AudouinDate de projet : 1955Date de livraison : 1959Maître d’ouvrage : Madame Veuve YouMaîtres d’œuvre : A. Salomon DPLGProgramme : séjour + 3 chambresSurface : SHOB 145 m²Collaborateur : Marc Quentin
Flanquée de trois axes, cette charmante maison, accessible depuis la rue du docteur Audouin ou l'impasse Prévost, nous laisse apprécier son étonnante configuration sous tous ses angles. Un socle en retrait soutient le pesant parallélépipède de béton blanc dans lequel sont regroupées les pièces de vie. Le rez-de-chaussée tend ainsi à s'effacer, dissimulé sous le porte-à-faux de la terrasse. Il est toutefois rappelé par le rail périphérique sous lequel viennent coulisser volets et portes. Chacune des trois façades a été traitée différemment, selon son orientation, la proximité de la rue et la qualité des espaces qu'elle revêt. Ainsi, le pignon proche de la voie publique a été laissé aveugle tandis que la façade avant plus reculée, étend deux larges fenêtres en longueur, au style corbuséen. L'arrière, à l'abri des regards étrangers, s'ouvre allègrement au jardin et déploie à l'étage une vaste baie vitrée. Le dédoublement des circulations, courant à cette époque, renforce ici le principe de dualité. L'escalier principal est laissé caché derrière une paroi semi-vitrée, tandis qu'un colimaçon extérieur permet d'accéder directement à l'étage, par l'arrière. Si l'étude de cette villa a été signée par l'architecte Salomon, c'est Marc Quentin qui assura la conduite des travaux. Cette collaboration atypique a engendré un projet de caractère et plein d'originalité.
Localisation
Photos & plans
Villa - image 1 Villa - image 2 Villa - image 3 Villa - image 4 Villa - image 5 Villa - image 6
20 Villa ”Balata”
Foncillon
Architecte : René BARATON, Jean BAUHAIN, Marc HÉBRARD
Lieu : 16, Rue du docteur AudouinDate de projet : 1958Date de livraison : 1960Maître d’ouvrage : Paulette JacquesMaîtres d’œuvre : Jean Bauhain, Marc Hébrard, René BaratonProgramme : 1 appartement séjour + 1 chambre et 1 appartement séjour + 2 chambresSurface : SHOB 52 + 77 m²
Cette intéressante villa de la rue du docteur Audouin fait fi des traditionnelles caractéristiques de l'architecture des années 50. Elle utilise un vocabulaire bien à elle, rare à Royan. Le projet s'inscrit dans un cube de béton blanc pénétré par un invraisemblable mur de pierres en opus incertum. En toiture, un large bandeau dissimule la trop classique couverture de tuiles et les conduits de cheminée. Sa hauteur à été définie de telle sorte qu'il est impossible, depuis la rue, de douter de la réalité du toit-terrasse. Toutefois, la façade principale demeure la qualité essentielle de cette villa. Son retrait partiel abrite une coursive dont l'angle, soutenu par un colimaçon extérieur, a reçu un traitement pour le moins original. Enceint d'une pléiade de potelets métalliques, un escalier hélicoïdal accroche ses marches à un épais pilotis de béton. Il permet de rejoindre l'étage dont la terrasse percée laisse s'immiscer la végétation du jardin. Le garde-corps, partiellement déconstruit, autorise la lumière à inonder la frondaison de cette curiosité végétale. À l'arrière, une mise en œuvre similaire a été appliquée au grand balcon qui semble étayé par une harpe monumentale. Point n'est besoin de constater le nombre invraisemblable de réalisations attribuées aux trois compères, Baraton, Bauhain et Hébrard, pour en apprécier la remarquable qualité.
Localisation
Photos & plans
Villa ”Balata” - image 1 Villa ”Balata” - image 2 Villa ”Balata” - image 3 Villa ”Balata” - image 4 Villa ”Balata” - image 5 Villa ”Balata” - image 6
21 Villa
Foncillon
Architecte : Gabriel GAUTHIER, Jean-Louis GUILLAUME
Lieu : 9, Rue Jean GoulyDate de projet : 1953Date de livraison : 1957Maître d’ouvrage : J. CouvyMaîtres d’œuvre : Gabriel Gauthier, Jean-Louis GuillaumeProgramme : living + 2 chambres
Accrochée au pignon de l'immeuble voisin, cette séduisante villa de la rue Jean Gouly semble avoir été dessinée pour des enfants. Telle une cabane perchée dans les arbres, ce projet a trouvé refuge au sommet des pilotis qui le détachent du sol. Le rez-de-chaussée, composé du seul garage, permet au jardin de pénétrer largement sous le bâtiment, et libère la parcelle qu'une telle emprise bâtie aurait saturée. Un magistral escalier confère à l'entrée une monumentalité incongrue. La terrasse se transforme en théâtre dans lequel deux bandes de pavés de verre exactement symétriques flanquent la porte pour mieux la mettre en scène. Trois hublots interpellent successivement le spectateur et s'affichent comme les principaux protagonistes de la scène. La toiture élance vers la rue sa fine dalle de béton pour abriter cette curieuse improvisation. Les deux autres façades, moins visibles, ont été traitées de manière plus conventionnelle et rappellent le projet à la stricte simplicité de l'architecture des années 50. Gabriel Gauthier et Jean-Louis Guillaume, architectes très fidèles aux références Beaux-Arts et chefs de groupe sur les îlots 1 et 2 du boulevard Aristide Briand, signent pourtant, ici, un projet largement empreint du modernisme international.
Localisation
Photos & plans
Villa - image 1 Villa - image 2 Villa - image 3 Villa - image 4 Villa - image 5 Villa - image 6
22 Villa, îlot 64
Foncillon
Architecte : Marc QUENTIN
Lieu : 5, Rue Jean Gouly (angle Rue Pierre Jônain)Date de projet : 1956Date de livraison : 1959Maître d’ouvrage : Monsieur CheneauMaîtres d’œuvre : Marc QuentinCollaborateur : Yves Chaussat (chef d'îlot), Alex Bourges (archi. d'opération)
Pleinement symptomatique des années 50, ce projet impose à l'angle des rues Jean Gouly et Pierre Jônain la singularité de sa mise en œuvre. Outre son appartenance au quartier de Foncillon, ce surprenant bâtiment s'inscrit dans le cadre de la reconstruction de l'îlot numéro 64. Totalement recouvert d'un enduit lisse, l'ensemble ne distingue que peu le soubassement de l'étage. Seul, un léger retrait marque le rez-de-chaussée et impose au volume supérieur, un subtil porte-à-faux sur la rue. Profitant d'une saillie opérée dans un des angles, l'entrée a fait l'objet d'une remarquable réflexion architecturale. Elle flanque la cage d'escalier dont la paroi alterne de manière régulière pavés de verre et barrettes de béton. La sculpturale toiture à double pans inversés s'élance vers le jardin et offre à l'étage une agréable terrasse couverte. Le jeu particulier du soleil sur les arêtes en biseau, les angles et les redents du bâtiment ajoute à sa qualité. Les façades ont opté pour une répétition systématique des baies et des ouvertures. L'une d'elles se prolonge toutefois et fabrique la clôture du petit jardin, accentuant d'autant la linéarité du projet. Cette intéressante réalisation de Marc Quentin fait le pendant du numéro 12 de la rue Pierre Jônain. Tous deux mettent en œuvre les principaux dogmes modernes et participent au caractère exceptionnel du quartier.
Localisation
Photos & plans
Villa, îlot 64 - image 1 Villa, îlot 64 - image 2 Villa, îlot 64 - image 3 Villa, îlot 64 - image 4 Villa, îlot 64 - image 5 Villa, îlot 64 - image 6
23 Villa, îlot 64
Foncillon
Architecte : Marc QUENTIN
Lieu : 12, Rue Pierre JônainDate de projet : 1956Date de livraison : 1959Maître d’ouvrage : Monsieur LahilonneMaîtres d’œuvre : Marc QuentinProgramme : séjour + 4 chambresCollaborateur : Yves Chaussat (chef d'îlot), Alex Bourges (archi. d'opération)
Situé tout en bas de la rue Pierre Jônain, ce petit bâtiment s'inscrivait dans l'opération de lotissement de l'îlot numéro 64. À l'origine, le rez-de-chaussée, en retrait par rapport au trottoir, était immédiatement jouxté d'un passage couvert permettant un accès direct au jardin. Des claustras latéraux, dont l'un reste visible sur la gauche, dissimulaient un vaste porche d'entrée, au fond duquel, dirigé par le biais de la cuisine, le visiteur découvrait la porte. L'étage, souligné par un imposant encadrement de béton, projetait son volume vers la rue. Un traitement personnalisé était appliqué à chacune des fenêtres de chambre, les transformant tantôt en poste de télévision, tantôt en sculpture néo-cubiste. À l'arrière, l'architecte a joué avec la lumière, employant moucharabiehs et brise-soleil pour inventer de multiples ambiances intérieures. La partie supérieure de la façade a été reculée pour permettre à une agréable loggia de courir le long de la paroi. Bien que Marc Quentin n'ait été ici, ni responsable d'îlot, ni même chef d'opération, il a su imposer au projet qui lui était confié, l'avant-gardisme de son style.
Localisation
Photos & plans
Villa, îlot 64 - image 1 Villa, îlot 64 - image 2 Villa, îlot 64 - image 3 Villa, îlot 64 - image 4 Villa, îlot 64 - image 5 Villa, îlot 64 - image 6
24 Villa
Foncillon
Architecte : René BARATON, Jean BAUHAIN, Marc HÉBRARD
Lieu : 26, Rue Pierre JônainDate de projet : 1956Date de livraison : 1959Maître d’ouvrage : Monsieur DolidonMaîtres d’œuvre : Jean Bauhain, Marc Hébrard, René BaratonProgramme : séjour + 1 chambreSurface : SHOB 47 m²
Ce petit pavillon de la rue Pierre Jônain pourrait servir d'archétype à l'architecture des années 50. Malgré ses très modestes proportions, ce projet rassemble quelques uns des principaux éléments symptomatiques de cette architecture moderne. Son implantation sur une parcelle de taille très réduite l'a contraint à s'aligner sur la rue. Toutefois, l'architecte a su jouer avec la volumétrie pour préserver au mieux l'intimité des lieux. L'essentiel des ouvertures a été percé côté jardin afin d'obtenir une façade principale très hermétique aux va-et-vient du quartier. Le décalage volontaire du portillon dérobe l'entrée au regard du passant, par un astucieux système de chicane. La porte, abritée par le débord de la toiture-terrasse, est flanquée d'un épais mur de maçonnerie. La mise en œuvre est toutefois allégée par la présence d'un encadrement de pavés de verre qui suggère une étroite relation entre intérieur et extérieur. À l'arrière, une vaste baie laisse pénétrer le jardin dans le petit séjour et semble ainsi en accroître les proportions. Un panneau coulissant permet, selon la course du soleil, d'en stopper les rayons les plus ardents. Le béton, le verre, la pierre et le bois sont autant de matériaux que les trois architectes Baraton, Bauhain et Hébrard ont l'habitude d'employer. Ils les mettent ici tous en œuvre pour créer cet intéressant bungalow sédentaire.
Localisation
Photos & plans
Villa - image 1 Villa - image 2 Villa - image 3 Villa - image 4 Villa - image 5 Villa - image 6
25 Maison de ville
Foncillon
Architecte : Jean-Roger FRANCQ
Lieu : 15, Rue Pierre Jônain (angle Allée Prévost)Date de projet : 1959Date de livraison : 1960Maître d’ouvrage : Maurice ThibaultMaîtres d’œuvre : Jean-Roger FrancqProgramme : 1 appartement séjour + chambre et 1 appartement séjour + 3 chambresSurface : SHOB 177 m²
À l'angle de la rue Pierre Jônain et de l'allée Prévost, cette intéressante villa a largement tiré parti de sa situation particulière. Les deux appartements qui la composent se distinguent par leur volumétrie. Un traitement en maçonnerie de pierre empêche un parallélépipède de béton blanc d'écraser le rez-de-chaussée. Renforcé par la mise en œuvre d'une toiture à double pans inversés, cet effet de pesanteur confère à l'ensemble une fragile immobilité. Les arêtes obliques du mur pignon, accentuées par la découpe biseautée des garde-corps, tendent à déséquilibrer le bâtiment. Profitant du retrait de la façade principale, deux terrasses se superposent. Reliées par un escalier, elles offrent un accès autonome à chaque habitation et prolongent les séjours vers le sud. Le séjour de plain-pied est clos par une baie vitrée chanfreinée qui accompagne le passant dans sa marche. Tandis que la traditionnelle fenêtre à volets coulissants a été utilisée pour l'ensemble des pièces, la cuisine est dissimulée derrière une faille de verre réalisée dans le soubassement de pierre. Avec du recul, vous apercevrez un petit globe translucide sur le toit. Il apporte aux pièces aveugles une lumière zénithale, tout comme la cour anglaise du jardin éclaire le sous-sol. Jean-Roger Francq, maître d'œuvre de talent, sera associé en tant que chef d'opération à Yves Salier pour la reconstruction de l'îlot 50.
Localisation
Photos & plans
Maison de ville - image 1 Maison de ville - image 2 Maison de ville - image 3 Maison de ville - image 4 Maison de ville - image 5 Maison de ville - image 6
26 Villa ”Japhica”
Foncillon
Architecte : Georges VERGNAUD
Lieu : 3, Rue de SirènesDate de projet : 1956Date de livraison : 1957Maître d’ouvrage : Georges BuretMaîtres d’œuvre : Georges VergnaudProgramme : séjour + 2 chambresSurface : SHOB 62 m²
Préservée des regards amateurs par les méandres de la rue des Sirènes, ce petit chef-d'œuvre d'architecture balnéaire a su tirer parti de l'étroite parcelle qui lui était dévolue. Campé sur une dizaine de pilotis, ce nid singulier mêle sa structure à l'épaisse frondaison des arbres alentour. Le sol, ainsi affranchi, accueille à couvert bancs et tablettes utiles aux occupants. Seul, un garage constitue le rez-de-chaussée, reléguant à l'étage tous les espaces de vie. Un escalier droit permet d'accéder à une petite terrasse et à l'entrée. Protégée par le débord de la dalle de toit, cette agréable plate-forme, semblable au pont d'un navire, accueille le visiteur. Une virgule de béton, rehaussée de bleu, encadre la porte tandis qu'une pléthore d'oculi tapisse la paroi du fond. L'habitation s'organise selon la forme d'un « L » autour de ce noyau. Georges Vergnaud qui, après sa participation au chantier du boulevard Briand et la construction de la villa double « Brise-Lames » sur le boulevard Garnier, opère ici un véritable tour de force, en reniant ses acquis les plus académiques, pour offrir à Foncillon un véritable concentré d'architecture moderne.
Localisation
Photos & plans
Villa ”Japhica” - image 1 Villa ”Japhica” - image 2 Villa ”Japhica” - image 3 Villa ”Japhica” - image 4 Villa ”Japhica” - image 5 Villa ”Japhica” - image 6
27 Villa
Foncillon
Architecte : Marc HÉBRARD
Lieu : 5, Rue des SirènesDate de projet : 1956Date de livraison : 1959Maître d’ouvrage : Raymond LavergneMaîtres d’œuvre : Marc HébrardProgramme : séjour + salle à manger + 2 chambresSurface : SHOB 120 m²Collaborateur : René Baraton et Jean Bauhain
Avec sa voisine signée par Georges Vergnaud, cette petite maison participe pleinement à la qualité de la rue des Sirènes. Bâtie sur une étroite parcelle dont elle occupe toute la largeur, elle a su s'adapter aux contraintes imposées par le site. Plus original que le traitement de ses façades, plus singulier encore que son souci du détail, le plan de ce projet est quasiment révolutionnaire. Un unique espace occupe la totalité du rez-de-chaussée, auquel a quand même été soustrait le volume du garage. Cette pièce, dont les parois ont été disposées en entonnoir, s'ouvre généreusement sur le jardin et sert de vaste pièce à vivre. Seule, une insignifiante différence de niveau la distingue du hall d'entrée, dont la porte est repérée par une paroi de pavés de verre qui éclaire un petit jardin d'hiver intérieur. Les autres pièces sont concentrées à l'étage, accessible par un escalier hélicoïdal. En façade, le retrait de la salle à manger a permis d'ouvrir un petit balcon sur la rue. À l'arrière, les chambres reprennent ce principe et ont accès à une loggia couverte par le débord de la toiture. Sans raison avérée, Marc Hébrard réalise seul ce petit projet dont la ressemblance flagrante avec d'autres villas du quartier n'exclut pas l'appui éventuel de ses deux fidèles associés, René Baraton et Jean Bauhain.
Localisation
Photos & plans
Villa - image 1 Villa - image 2 Villa - image 3 Villa - image 4 Villa - image 5 Villa - image 6 Villa - image 7
28 Villa ”La Mainaz”
Foncillon
Architecte : Marc QUENTIN
Lieu : 16 bis, Boulevard de l'Océan (angle Rue du docteur Audouin)Date de projet : 1953Date de livraison : 1955Maître d’ouvrage : M. ou Mme ChazeaudMaîtres d’œuvre : Marc QuentinProgramme : séjour + 4 chambresSurface : SHOB 220 m²
Nichée au cœur du quartier de Foncillon, cette exceptionnelle villa semble n'être empruntée à aucun style. Même le carrefour des rues qui la bordent paraît avoir été délibérément ignoré. Ancrée au sol par un pesant « L » en maçonnerie d'opus incertum, « La Mainaz » déploie ses volumes entre deux fines galettes de béton posées sur pilotis. Tantôt façade, tantôt cloison, le mur pénètre l'habitation pour mieux distinguer les espaces de jour des espaces de nuit. Au sud, la large baie vitrée déploie sa courbe généreuse afin d'offrir à la course du soleil toute la profondeur du séjour. Un balcon, accessible depuis le jardin par un colimaçon, permet d'apprécier le panorama et de profiter des belles journées d'été. Plus haut, un lambrequin métallique rouge accentue le porte-à-faux du toit-terrasse et dissimule astucieusement les coffres des volets roulants. Il témoigne probablement de la collaboration de l'architecte avec les ateliers Prouvé de Maxéville. À Royan, si la conception du plan libre demeure l'apanage d'une faible fraction d'architectes, parmi lesquels Marc Quentin apparaît comme l'un des plus adroits, elle n'en demeure pas moins exceptionnelle dans nombre des projets exécutés au cours des années 50.
Localisation
Photos & plans
Villa ”La Mainaz” - image 1 Villa ”La Mainaz” - image 2 Villa ”La Mainaz” - image 3 Villa ”La Mainaz” - image 4 Villa ”La Mainaz” - image 5 Villa ”La Mainaz” - image 6
29 Villas ”California” et ”Brazilia”
Foncillon
Architecte : Louis SIMON
Lieu : 2 et 2 bis, Boulevard Louis LairDate de projet : 1955Date de livraison : 1959Maître d’ouvrage : Raymond Prainville, Y. TaunayMaîtres d’œuvre : Louis SimonProgramme : 2 logements identiques séjour + 4 chambresSurface : SHOB 2 x 185 m²
Construites côte à côte le long du boulevard Louis Lair, les villas doubles « California » et « Brazilia » renvoient à l' « american way of life ». Destiné aux deux entrepreneurs royannais Prainville et Taunay, le projet de Louis Simon reprend fidèlement les principes de l'architecture moderne de Le Corbusier et du Bauhaus : aucune dérive décorative ne vient perturber la pureté du dessin architectural. Trois parallélépipèdes emboîtés constituent l'essentiel du volume, chacun étant consacré à une partie définie de la maison. Une trame régulière de poteaux, recoupée par quelques murs porteurs, offre à l'architecte une grande liberté. Le rez-de-chaussée, libéré par l'emploi de pilotis, permet à une voiture d'y stationner et d'y déposer ses passagers à couvert. Seules, les circulations demeurent en relation avec le sol. Les pièces à vivre sont, quant à elles, réparties dans les étages. Les espaces de service, relégués à l'avant, justifient une façade dépouillée et relativement fermée sur la rue. L'arrière, logeant chambres et salon, s'ouvre en revanche largement sur le jardin, élançant ses terrasses et balcons en direction de la mer. Ce projet constitue l'aboutissement d'une fidèle collaboration entre Louis Simon et les entreprises Taunay et Prainville, tout au long de la Reconstruction.
Localisation
Photos & plans
Villas ”California” et ”Brazilia” - image 1 Villas ”California” et ”Brazilia” - image 2 Villas ”California” et ”Brazilia” - image 3 Villas ”California” et ”Brazilia” - image 4 Villas ”California” et ”Brazilia” - image 5 Villas ”California” et ”Brazilia” - image 6
30 Villa ”Lucy”
Foncillon
Architecte : René BARATON, Jean BAUHAIN, Marc HÉBRARD
Lieu : 23, Boulevard Louis LairDate de projet : 1948Date de livraison : 1953Maître d’ouvrage : Gaston MoinardMaîtres d’œuvre : Jean Bauhain, Marc Hébrard, René BaratonProgramme : séjour + 6 chambresSurface : SHOB 200 m²
Située boulevard Louis Lair au cœur d'un panel impressionnant de maisons d'avant-garde, la villa Lucy étonnera par son style décalé. Lotie dans l'angle de la rue de Liège, cette construction veut renouer avec le style saintongeais d'avant-guerre. Le toit à quatre pans redoublés d'une corniche de tuiles encastrées, le perron menant le visiteur à couvert vers l'entrée, les fenêtres toutes équivalentes par la taille et la mise en œuvre, ainsi que le massif soubassement de pierre appareillée, constituent autant de preuves irréfutables liant l'auteur de ce pastiche à l'académique enseignement des Beaux-Arts. Rien ici ne semble s'accorder avec la production architecturale avant-gardiste des années 50. Fruit de l'association des trois architectes Baraton, Bauhain et Hébrard, cette villa demeure pourtant un précieux témoin des références régionales professées jusqu'alors. Entreprise avant le choc brésilien, elle incarne finalement ce à quoi aurait dû ressembler Royan si Ferret n'avait pas changé rapidement sa ligne de conduite. Loin de refléter la prodigieuse créativité dont ont fait part ces trois architectes durant toute la Reconstruction, elle marque la présence simultanée de deux courants, l'un tourné vers le passé et l'autre vers l'avenir, en précédant de quelques encablures l'innovant projet de la villa « Mbi Ye No ».
Localisation
Photos & plans
Villa ”Lucy” - image 1 Villa ”Lucy” - image 2 Villa ”Lucy” - image 3 Villa ”Lucy” - image 4 Villa ”Lucy” - image 5 Villa ”Lucy” - image 6
31 Villa
Foncillon
Architecte : Jacques CHAUVIN
Lieu : 3, rue de LiègeDate de projet : 1955Date de livraison : 1957Maître d’ouvrage : Marcel TessierMaîtres d’œuvre : Jacques ChauvinProgramme : séjour + bureau + 3 chambresSurface : SHOB 120 m²
La rue de Liège, malgré sa situation à l'extrême limite du quartier de Foncillon, recèle quelques trésors architecturaux, telle cette villa. Avec ses allures de poste de radio des années 50, elle mérite qu'on y prête attention. L'ensemble repose sur un système de mise en œuvre plutôt simple, qui consiste à plier une dalle mince de béton, en trois dimensions pour en fabriquer à la fois les murs pignons et la toiture. Ainsi, par cette seule intervention, le volume général est défini. Les façades, avant et arrière, semblent intervenir comme un remplissage libéré de toute contrainte structurelle. Elles sont d'ailleurs placées en retrait, comme si elles avaient été affranchies de leur fonction porteuse. La coupe biseautée du bâtiment leur confère ombre et protection. Un plan horizontal, placé à mi-hauteur, émerge de l'angle sud et vient couvrir la petite terrasse, côté rue. Entre l'entrée et la large baie du séjour, le jeu d'ombre d'un élégant claustra de béton vient animer la paroi. À l'arrière, la maison semble ignorer le jardin laissé inaccessible. Ayant peu exercé son art à Royan, le Parisien, Jacques Chauvin, signe toutefois deux projets intéressants dans cette même rue.
Localisation
Photos & plans
Villa - image 1 Villa - image 2 Villa - image 3 Villa - image 4 Villa - image 5 Villa - image 6
32 Villa
Foncillon
Architecte : Jacques CHAUVIN
Lieu : 10, Rue de LiègeDate de projet : 1959Date de livraison : 1962Maître d’ouvrage : Pierre GabarrotMaîtres d’œuvre : Jacques ChauvinProgramme : séjour + 2 chambresSurface : SHOB 95 m²
Hasard ou coïncidence ? Cette villa est le second projet de l'architecte Jacques Chauvin, dans la rue de Liège. Il constitue en fait l'extension d'un petit bâtiment existant, désormais invisible depuis la rue. Ainsi, une construction de béton enduit vient phagocyter l'annexe préétablie afin d'en augmenter la capacité d'accueil. En façade, l'entrée, enchâssée d'une paroi de pavés de verre, a trouvé refuge dans un accueillant retrait. Le visiteur est cependant guidé par la présence de deux hublots à forte connotation navale et profite d'une fine casquette en porte-à-faux qui fait face aux aléas climatiques. Un parement en maçonnerie de pierre appareillée offre une assise solide au pavillon. Il accentue d'autant le vide de la fenêtre qui, à l'origine, était l'unique baie ouverte sur l'avant. À l'arrière, le séjour s'ouvre plus généreusement sur la profonde parcelle. Deux baies vitrées rehaussées d'un liseré de béton laissent largement pénétrer le soleil dans l'habitation. Si ces deux réalisations de la rue de Liège sont les seules attribuées à Jacques Chauvin pendant la période de la Reconstruction de Royan, il est surprenant de constater leur proximité. D'un point de vue plus formel, il n'est pas aisé de leur trouver des analogies, tant leur mise en œuvre est différente.
Localisation
Photos & plans
Villa - image 1 Villa - image 2 Villa - image 3 Villa - image 4 Villa - image 5 Villa - image 6
33 Villa ”Caravelle”
Foncillon
Architecte : Louis SIMON
Lieu : 20, Avenue du Chanoine GuilbaudDate de projet : 1954Date de livraison : 1959Maître d’ouvrage : Indivision Taunay - PrainvilleMaîtres d’œuvre : Louis SimonProgramme : séjour + bureau + 3 chambres
Sise au cœur du quartier le plus 50 de la ville, dans une rue des plus tranquilles, cette caricaturale villa tend à déjouer les dogmes du mouvement moderne. Pour preuve, son toit à pan unique dissimulé à la manière d'un toit-terrasse. Cette maison tient son expression particulière de sa façade rideau. Si, à Royan, l'utilisation massive du plan libre a permis à bon nombre de projets d'ouvrir très largement leurs façades, elle a au contraire inspiré à l'architecte une toute autre manière de procéder. Louis Simon identifie la structure porteuse (laissée en blanc) et crée ainsi deux vastes baies de béton, lesquelles auraient pu être vitrées. Et d'une façon beaucoup plus subtile, il prend le parti de conserver une façade classique pleine et la décale de quelques centimètres par rapport à son support. Ici, la lecture est simplifiée par l'utilisation d'une teinte rouge lie-de-vin peu courante à Royan. Le résultat est projeté vers la rue par la mise en œuvre d'un porte-à-faux monumentalisé par les faibles dimensions du rez-de-chaussée. L'entrée et le garage se retrouvent abrités par un généreux préau dont la sous-face révèle la structure porteuse, en opposant à nouveau les deux couleurs. Cette appropriation originale de ce que l'on a coutume de nommer la « façade-libre » fait ici un joli pied de nez aux théories d'un Le Corbusier, souvent jugées trop excessives.
Localisation
Photos & plans
Villa ”Caravelle” - image 1 Villa ”Caravelle” - image 2 Villa ”Caravelle” - image 3 Villa ”Caravelle” - image 4 Villa ”Caravelle” - image 5 Villa ”Caravelle” - image 6
34 Villa ”Mbi ye no”
Foncillon
Architecte : René BARATON, Jean BAUHAIN, Marc HÉBRARD
Lieu : 35, Boulevard Louis LairDate de projet : 1952Date de livraison : 1955Maître d’ouvrage : Marie-Jeanne CarronMaîtres d’œuvre : Jean Bauhain, Marc Hébrard, René BaratonProgramme : 2 appartements identiques séjour + 2 chambresSurface : SHOB 2 x 90 m²Collaborateur : Claude Ferret
Élément incontournable de la placette formée par l'intersection des rues Louis Lair et du Chanoine Guilbaud, la villa « Mbi Ye No » est sans conteste l'un des plus surprenants exemples d'architecture des années 50. Sa particularité tient à l'indépendance de sa circulation extérieure. L'escalier hélicoïdal s'inscrit dans une cage d'escalier cylindrique formée par la succession de potelets et s'enroule autour de l'un des pilotis. Le tout pénètre une loggia biseautée posée sur poteaux et reliée à l'étage supérieur du bâtiment par un système de passerelle. Deux percements permettant un point de vue sur le ciel ont été réalisés en lieu et place de l'escalier et du mur mitoyen afin de laisser passer une plus grande quantité de lumière. À l'arrière, le corps principal de la maison demeure somme toute assez ordinaire. Il regroupe deux appartements superposés et accessibles de façon indépendante depuis le jardin et la rue. Si les trois architectes Baraton, Bauhain et Hébrard ont beaucoup travaillé pour la reconstruction de Royan, cette maison n'en demeure pas moins leur premier projet, tenant compte des nouvelles références d'outre-Atlantique.
Localisation
Photos & plans
Villa ”Mbi ye no” - image 1 Villa ”Mbi ye no” - image 2 Villa ”Mbi ye no” - image 3 Villa ”Mbi ye no” - image 4 Villa ”Mbi ye no” - image 5 Villa ”Mbi ye no” - image 6
35 Villa ”L'Ameyo”
Foncillon
Architecte : Edgar BROUTET
Lieu : 35 bis, 37 et 37 bis, Boulevard Louis Lair (angle rue du Chanoine Guilbaud)Date de projet : 1955Date de livraison : 1957Maître d’ouvrage : Daniel Faure, Paul RallionMaîtres d’œuvre : Edgar BroutetProgramme : 8 appartements 4 T1 + 4 F2Surface : SHOB 4 x 60 m² + 4 x 40 m²
Sa seule situation sur la place formée par l'intersection des rues Louis Lair et du Chanoine Guilbaud confère à ce projet un intérêt immédiat. Malgré l'uniformité de sa mise en œuvre, cette réalisation regroupait à l'origine les propriétés de deux maîtres d'ouvrage différents. Occupant le quart de la forme circulaire du carrefour, la façade principale ne révèle que peu les huit appartements qu'elle caparaçonne. Sa linéarité est telle que les baies s'y succèdent sans ordre précis, pour perdre le regard du néophyte. Seules, deux portes d'entrée viennent en ponctuer la monotonie. À l'origine, rehaussées de claustras verticaux, elles dissimulaient les cages d'escalier desservant les différents logements. Chacun des angles est solidement ancré au sol par une monumentale cheminée de pierre. Curieusement, le projet a été tourné vers la ville. Les séjours sont abondamment ouverts sur les petits jardins en entonnoir, tandis que les pièces de second ordre appauvrissent la façade arrière par la morne répétition de leurs percements. Unique réalisation répertoriée de l'architecte cognaçais Edgar Broutet, cette petite copropriété tire sa principale qualité de son appartenance à cette rare agora moderne, splendide héritage des années 50.
Localisation
Photos & plans
Villa ”L'Ameyo” - image 1 Villa ”L'Ameyo” - image 2 Villa ”L'Ameyo” - image 3 Villa ”L'Ameyo” - image 4 Villa ”L'Ameyo” - image 5 Villa ”L'Ameyo” - image 6
36 Maison de ville
Foncillon
Architecte : Raymond DELPECH
Lieu : 26, Boulevard Louis LairDate de projet : 1956Date de livraison : 1958Maître d’ouvrage : Raymond DelpechMaîtres d’œuvre : Raymond DelpechProgramme : 2 studios + 1 appartement séjour + 3 chambresSurface : SHOB 2 x 40 m² + 115 m²Collaborateur : façades de Louis Simon
Sa seule situation sur la place du boulevard Louis Lair pourrait justifier la qualité architecturale de cette petite copropriété. Cet ensemble urbain circulaire et très homogène, bien que rappelant l'exemple de la place du docteur Gantier, est unique à Royan. Ici, l'étage, accentué par un encadrement de béton extrudé, repose sur un rez-de-chaussée partiellement évidé. À l'origine retenu par quatre pilotis, il élançait son porte-à-faux au-dessus de l'entrée. Sorte de préau inopiné, cet accès ouvert sur le jardin, menait à un escalier magistral. Tendue entre le sol et la sous-face de l'abri, une pléiade de filins métalliques en suspendait la première volée de marches. La seconde était, quant à elle, accrochée à un improbable mur qui, ajouré au niveau du palier intermédiaire, offrait une ultime vue sur la végétation. Le retrait partiel des façades, probablement dessinées par Louis Simon, permet d'allouer balcon et terrasse à l'appartement supérieur. Bien que les studios de plain-pied bénéficient déjà d'un petit jardin sur la place, ils s'ouvrent également sur l'arrière de la parcelle, destinée à l'ensemble des occupants. Raymond Delpech coordonnera seul les travaux de ce projet dont il est à la fois le maître d'œuvre et le maître d'ouvrage.
Localisation
Photos & plans
Maison de ville - image 1 Maison de ville - image 2 Maison de ville - image 3 Maison de ville - image 4 Maison de ville - image 5 Maison de ville - image 6
37 Maison de ville ”Thalassa”
Foncillon
Architecte : Jean-Roger FRANCQ
Lieu : 1, Avenue de la Conche du ChayDate de projet : 1954Date de livraison : 1957Maître d’ouvrage : Monsieur Henri RallionMaîtres d’œuvre : Jean-Roger FrancqProgramme : 2 appartements séjour + 2 chambres et 2 appartements séjour + chambreSurface : SHOB 350 m²
Sis à l'angle de l'avenue de la Conche du Chay et du boulevard Louis Lair, cet ensemble de quatre appartements a été réalisé dans la continuité des façades de son homologue mitoyen. Chaque étage, qui regroupe deux logements, est rendu directement accessible depuis l'extérieur. Aussi, un « V » de béton crée une imposante saillie dans l'angle de l'édifice et accueille l'escalier hélicoïdal permettant de connecter la rue et l'étage supérieur. Une audacieuse casquette de béton offre une niche protectrice aux deux entrées superposées et confère au bâtiment sa remarquable qualité architecturale. Une partie de la façade a été reculée pour céder à l'étage une agréable terrasse tournée vers l'océan. La dalle de toiture s'y prolonge en porte-à-faux et pare aux intempéries les plus menaçantes. Le sobre encadrement des fenêtres, les percements sous la toiture et l'utilisation du pavé de verre, sont autant de détails qui inscrivent cette réalisation dans l'étonnante production des années 50. Jean-Roger Francq collabore ici à la richesse architecturale et à la singularité de cette remarquable place circulaire. Il participe simultanément à l'élaboration des plans de l'îlot 50.
Localisation
Photos & plans
Maison de ville ”Thalassa” - image 1 Maison de ville ”Thalassa” - image 2 Maison de ville ”Thalassa” - image 3 Maison de ville ”Thalassa” - image 4 Maison de ville ”Thalassa” - image 5 Maison de ville ”Thalassa” - image 6
38 Villa
Foncillon
Architecte : Marc QUENTIN
Lieu : 24, Boulevard Louis LairDate de projet : 1955Date de livraison : 1958Maître d’ouvrage : Joseph RoulletMaîtres d’œuvre : Marc QuentinProgramme : 2 logements identiques séjour + 2 chambresSurface : SHOB 2 x 75 m²
Occupant l'une des sept parcelles de la place circulaire formée par l'intersection des rues de la Conche du Chay, du Chanoine Guilbaud et Louis Lair, cette villa est un véritable concentré d'architecture moderne. La configuration du terrain en quartier impose au bâtiment ses limites contraignantes. Pourtant, l'architecte prend ici le parti d'en occuper toute la largeur par l'emprise de son projet, acceptant du même coup le non parallélisme de ses extrémités. Ainsi, côté place, la façade plus étroite est traitée de manière très hermétique et ignore même le morceau de terrain demeuré non bâti. Côté jardin, en revanche, le plan en entonnoir réceptionne les rayons du soleil à travers de vastes baies vitrées qui inondent ainsi la maison dans toute sa profondeur. La façade a été reculée pour permettre à l'étage de bénéficier d'un balcon. Sur la rue, une virgule de béton renferme l'escalier permettant l'accès aux deux appartements. Le volume en résultant procure un espace transitoire entre la voie publique et la privauté de l'appartement et isole du même coup l'habitation des nuisances extérieures. Ainsi, cette exceptionnelle petite place concentre les grandes signatures de la Reconstruction de Royan tels Bauhain, Baraton, Hébrard et Simon. Seul, le nom de Quentin manquait à l'obtention d'un excellent panel de l'« École de Royan ». Voilà qui est fait.
Localisation
Photos & plans
Villa - image 1 Villa - image 2 Villa - image 3 Villa - image 4 Villa - image 5 Villa - image 6
39 Villa ”Kenavo”
Foncillon
Architecte : René BARATON, Jean BAUHAIN, Marc HÉBRARD
Lieu : 10, Avenue de la Conche du ChayDate de projet : 1953Date de livraison : 1955Maître d’ouvrage : Madame Veuve Saint-LaurentMaîtres d’œuvre : Jean Bauhain, Marc Hébrard, René BaratonProgramme : séjour + 3 chambresSurface : SHOB 153 m²
Comme le Front de Mer, cette surprenante villa aurait parfaitement pu épouser la forme de la Grande Conche. C'est pourtant en lisière du quartier de Foncillon qu'on la retrouve, à proximité de la petite place du boulevard Louis Lair dont elle semble avoir hérité la courbe. Outre sa configuration plus que singulière, ce projet établit une curieuse relation entre intérieur et extérieur. La petite terrasse, blottie dans la virgule de béton, pénètre l'habitation par la vaste baie vitrée jouxtant l'entrée. Le dallage se prolonge ainsi de plain-pied jusque dans le séjour. Le rez-de-chaussée, surélevé de quelques marches par rapport au niveau du terrain, rattrape les quelques centimètres d'écart, par une dénivellation au beau milieu du séjour. Ce véritable petit jardin d'hiver est rappelé en façade par un traitement en pavés de verre orienté plein sud. Cette étrange entrée de lumière est soulignée par un encadrement de béton en porte-à-faux sur le jardin. L'étage s'organise le long d'un balcon dont l'avancée sur la rue a été rendue possible par le prolongement de la courbe. Cette mise en œuvre un peu particulière a l'avantage de permettre au regard de traverser la perspective de la rue et de profiter d'un panorama sur le large. Les trois associés, Bauhain, Baraton et Hébrard, expérimentent ici un type architectural un peu différent de leur production habituelle.
Localisation
Photos & plans
Villa ”Kenavo” - image 1 Villa ”Kenavo” - image 2 Villa ”Kenavo” - image 3 Villa ”Kenavo” - image 4 Villa ”Kenavo” - image 5 Villa ”Kenavo” - image 6
40 Villa
Foncillon
Architecte : René BARATON, Jean BAUHAIN, Marc HÉBRARD
Lieu : 14, Boulevard CarnotDate de projet : 1953Date de livraison : 1958Maître d’ouvrage : Monsieur BouvretMaîtres d’œuvre : Jean Bauhain, Marc Hébrard, René BaratonProgramme : séjour + salle à manger + 2 chambresSurface : SHOB 138 m²
A mi-chemin entre les conches de Foncillon et du Chay, cette villa a exceptionnellement bien résisté aux altérations dues au temps. Un imposant volume de béton blanc repose sur un socle semi-enterré, recouvert d'un parement de pierre. Une dalle unique et continue impose sa forme à l'ensemble. Elle en constitue successivement la rampe d'accès principal, le perron, le mur pignon et la toiture. L'entrée, à l'abri sous un frêle auvent en porte-à-faux, met en scène son étonnante porte en bois, dans un théâtre inédit de pavés de verre. La façade principale demeure cependant relativement hermétique au boulevard Carnot qu'elle borde. À l'étage, seules trois lucarnes ont été percées. Elles rappellent curieusement les niches réservées au pigeonnier dans l'architecture plus classique. À l'arrière, au contraire, le projet s'ouvre largement sur le jardin, élançant vers la mer et offrant au soleil balcons et terrasses. De grandes baies laissent pénétrer la lumière jusqu'au cœur de l'habitation, tandis qu'un élégant claustra détourne les rayons les plus chauds de la loggia du second niveau. Cette réalisation témoigne de la créativité infinie dont ont fait preuve les trois architectes, Baraton, Bauhain et Hébrard, durant toute la Reconstruction de Royan.
Localisation
Photos & plans
Villa - image 1 Villa - image 2 Villa - image 3 Villa - image 4 Villa - image 5 Villa - image 6
41 Maison expérimentale de type 8 x 12
Foncillon
Architecte : Jean PROUVE
Lieu : 21, Boulevard Germaine de la FalaiseDate de projet : 1950Date de livraison : 1951Maître d’ouvrage : Marc QuentinMaîtres d’œuvre : Jean ProuvéCollaborateur : Henri Prouvé
Offerte aux embruns de la plage de Foncillon, cette petite maison expérimentale demeure le seul témoin authentifié de la présence de Jean Prouvé, à Royan. Ce prototype, issu de l'industrialisation et de la préfabrication prônées par son concepteur, est régi par un astucieux système constructif. Un portique soutient une façade mixte de bois et de métal et permet de proposer une habitation confortable et très économique. À l'origine, décliné en plusieurs types relatifs à ses dimensions, 8x8, 8x12 ou encore 5x10, ce pavillon est implanté avec treize de ses homologues dans la forêt de Meudon. Mais le MRU local, soucieux d'en évaluer la résistance à l'air marin, décide d'en tester un exemplaire à Royan, et ce, dès 1950. Jean Prouvé, l'ingénieur, assisté de son frère Henri, l'architecte, en contrôlent le montage. L'expérience, mal conduite, restera pourtant sans lendemain et c'est l'architecte royannais Marc Quentin qui prendra rapidement possession des lieux pour y installer son agence. Si la participation officielle de Jean Prouvé à la Reconstruction reste difficile à confirmer, l'utilisation de panneaux de métal ajourés et laqués dans la conception des façades du Front de Mer, du Palais des Congrès et de certaines villas, semble une signature suffisante pour l'authentifier.
Localisation
Photos & plans
Maison expérimentale de type 8 x 12 - image 1 Maison expérimentale de type 8 x 12 - image 2 Maison expérimentale de type 8 x 12 - image 3 Maison expérimentale de type 8 x 12 - image 4 Maison expérimentale de type 8 x 12 - image 5 Maison expérimentale de type 8 x 12 - image 6
42 Villa
Foncillon
Architecte : Marc QUENTIN
Lieu : 11, Boulevard Germaine de la FalaiseDate de projet : 1953Date de livraison : 1958Maître d’ouvrage : Madame FoussatMaîtres d’œuvre : Marc QuentinProgramme : 2 appartements identiques séjour + 3 chambresSurface : SHOB 2 x 185 m²
Cet élégant immeuble du boulevard Germaine de la Falaise semble avoir adopté un style proche de son homologue voisin. Ses proportions généreuses lui permettent de bénéficier d'une vue imprenable sur la conche de Foncillon. Établis selon un plan en « L », les deux appartements de cette petite copropriété occupent chacun un plein niveau. L'ensemble est décomposé en deux volumes distincts opposés par leurs angles. L'un, orienté plein sud, regroupe le séjour et les principales pièces à vivre, tandis que le second, plus haut et en retrait par rapport à la rue, rassemble les chambres. Le sous-sol, que la faible emprise au sol tend à faire disparaître, confère au bâtiment une réelle légèreté. Seule, une majestueuse cage d'escalier, dissimulée derrière un surprenant claustra de béton, semble rattacher les étages au jardin. Les façades ont également été reculées afin d'allouer aux étages de vastes balcons périphériques. Leur traitement partiel en pavés de verre, adjoint aux porte-à-faux des terrasses, apporte ombre et fraîcheur aux pièces les plus exposées aux rayons du soleil. Ici, la composition en trois strates rappelle étrangement celle du numéro 7 de la même rue. L'architecte Marc Quentin se voit ici confier deux commandes similaires auxquelles il répond par des démarches comparables.
Localisation
Photos & plans
Villa - image 1 Villa - image 2 Villa - image 3 Villa - image 4 Villa - image 5 Villa - image 6
43 Villa
Foncillon
Architecte : Marc QUENTIN
Lieu : 7, Boulevard Germaine de la FalaiseDate de projet : 1952Date de livraison : 1958Maître d’ouvrage : Madame A. Scellier FourquetMaîtres d’œuvre : Marc QuentinProgramme : 2 logements modulables séjour + 3 chambresSurface : SHOB 2 x 90 m²
Campé sur une grande parcelle trapézoïdale, cet imposant bâtiment profite allègrement de la vue sur la plage de Foncillon et de la quiétude de la corniche. Si sa mise en œuvre a malheureusement pâti des transformations du temps, l'ensemble demeure un projet audacieux et de qualité. Trois dalles de béton reprennent par un savant calcul homothétique la forme du terrain et se superposent. Elles sont tenues équidistantes les unes des autres par quatre piliers. Un long mur de maçonnerie les traverse de part en part. Cette paroi insolite, outre son incontestable fonction porteuse, a la particularité de créer une limite franche entre le corps principal destiné à recevoir le séjour et un second volume où ont été réunies les pièces de second ordre. L'une de ses extrémités s'enroule autour de l'escalier hélicoïdal menant aux niveaux supérieurs. À l'origine, sa présence était signifiée en façade par une paroi circulaire, aujourd'hui transformée par un traitement de pavés de verre. Le retrait des larges baies vitrées permet de dégager deux plates-formes périphériques, offertes en balcon aux étages. Ce projet, tourné vers le soleil, révèle le souci qu'avait Quentin de concevoir des espaces agréables et lumineux.
Localisation
Photos & plans
Villa - image 1 Villa - image 2 Villa - image 3 Villa - image 4 Villa - image 5 Villa - image 6
44 Villa
Foncillon
Architecte : René BARATON, Jean BAUHAIN, Marc HÉBRARD
Lieu : 18, avenue de PontaillacDate de projet : 1955Date de livraison : 1959Maître d’ouvrage : Madame de LarrardMaîtres d’œuvre : Jean Bauhain, Marc Hébrard, René BaratonProgramme : 1 apprt. séjour + galerie + 3 chambres et 1 apprt. séjour + 1 chambreSurface : SHOB 151 m² + 32 m²
Si rares sont les petits immeubles de qualité, celui-ci est l'exception qui confirme la règle. Confondu dans la succession de ses homologues, il tend à se faire remarquer. Un rez-de-chaussée aux proportions lilliputiennes l'enracine dans la large perspective de l'avenue de Pontaillac et confère à l'ensemble une stabilité exagérée. Trois niveaux distincts se superposent. La composition plutôt classique du premier, identifiable par sa majestueuse verrière, l'assimile aux ateliers d'artistes parisiens. La dénivellation naturelle du terrain lui permet de bénéficier, à l'arrière, d'un jardin de plain-pied. Le second niveau, traité de manière curieuse, projette ses volumes vers la ville et offre aux chambres un énigmatique balconnet accroché à la façade, telle une loge sur la rue. Un dernier niveau, à la configuration proche de l'attique, affiche timidement sa présence par de petits percements rectangulaires qui lèchent le toit-terrasse, de sorte à en accentuer le décollement. À l'arrière, la façade, plus largement ouverte, permet un rapport privilégié avec le jardin. Baraton, Bauhain et Hébrard répondent ici avec beaucoup de virtuosité à un programme qu'ils n'ont que rarement abordé dans le cadre de la Reconstruction. Loin de faillir à la tâche, ils réalisent un bâtiment original et adapté aux contraintes du terrain à double niveau.
Localisation
Photos & plans
Villa - image 1 Villa - image 2 Villa - image 3 Villa - image 4 Villa - image 5 Villa - image 6
45 Musée de Royan
Pontaillac
Architecte : Michel BANCON, Louis BASALO
Lieu : 31, Avenue de ParisDate de projet : 1956Date de livraison : 1958Maître d’ouvrage : Ville de RoyanMaîtres d’œuvre : Louis Basalo, Michel BanconProgramme : marché couvert de quartierSurface : SHOB 700 m²
À mi-chemin de l'avenue de Paris, l'ancien marché de Pontaillac dont il ne demeure aujourd'hui que la structure, a opéré sa reconversion. Construit en 1958 par l'architecte Basalo et l'ingénieur Bancon, le bâtiment s'organise selon un plan assez simple. Une grande halle centrale et deux galeries latérales occupent la surface rectangulaire. L'entrée monumentale présente une façade vitrée dont les deux pans pénètrent dans le bâtiment, couronnée par un large auvent horizontal. Sur le projet initial, la structure interne est constituée d'une succession de parapluies de béton reposant sur des poteaux. Désormais, l'ensemble est éclairé par une verrière continue assurant un éclairage naturel exceptionnel. Les alvéoles latérales en forme de comptoirs arrondis étaient destinées à recevoir les étals des commerçants Cette distinction spatiale entre nef et bas-côtés distribue ainsi les surfaces de vente et d'achat. Trois grands comptoirs aux formes rondes et pleines scandaient toutefois la grande galerie. Ayant longtemps résisté à la concurrence d'un mode de consommation changeant, le marché a vu diminuer peu à peu sa fréquentation et son activité. Il a fermé définitivement ses portes en 1999 et opéré sa reconversion en laissant place, le 1er février 2004, au nouveau Musée de Royan.
Localisation
Photos & plans
Musée de Royan - image 1 Musée de Royan - image 2 Musée de Royan - image 3 Musée de Royan - image 4 Musée de Royan - image 5 Musée de Royan - image 6
46 Villa ”le vent du large”
Pontaillac
Architecte : Louis SIMON
Lieu : 23, Avenue Clémence IsaureDate de projet : 1950Date de livraison : 1953Maître d’ouvrage : Jean DelmasMaîtres d’œuvre : Louis SimonProgramme : séjour + salle à manger + 5 chambres + studio + bureau de dessin
Cette villa, située à l'angle des avenues de Pontaillac et Clémence Isaure, s'inscrit dans la typologie des villas urbaines dont elle révèle certaines des caractéristiques. Son implantation reprend en effet l'alignement des rues et conserve de la sorte le parallélisme avec la plage. Sa façade reculée permet au rez-de-chaussée de se prolonger en une vaste plate-forme. En créant un socle pour asseoir l'habitation, l'architecte écarte les nuisances provenant de la rue. La dalle de sol, pliée à deux reprises, fabrique successivement le mur mitoyen et le toit-terrasse. Ce dernier, s'élançant en porte-à-faux au-dessus de la terrasse, est maintenu par un imposant pilotis de béton autour duquel s'enroule l'escalier hélicoïdal menant à l'étage. Ce colimaçon justifie la saillie opérée dans l'angle de la masse et renforce incontestablement la présence du carrefour. Il permet un accès extérieur à une fine coursive-balcon offerte aux chambres de la maison. Sa seconde façade, au demeurant plus étanche, laisse apparaître une imposante cage d'escalier à travers un claustra monumental. Ce projet, qui fait appel à un jeu plastique original, témoigne de la maîtrise avec laquelle Louis Simon pratiquait son art.
Localisation
Photos & plans
Villa ”le vent du large” - image 1 Villa ”le vent du large” - image 2 Villa ”le vent du large” - image 3 Villa ”le vent du large” - image 4 Villa ”le vent du large” - image 5 Villa ”le vent du large” - image 6
47 Cabinet médical
Pontaillac
Architecte : Marc HÉBRARD
Lieu : 116, Avenue de PontaillacDate de projet : 1962Date de livraison : 1962Maître d’ouvrage : Docteur Pierre JacquetMaîtres d’œuvre : Marc HébrardProgramme : cabinet + salle d'attente + bureauSurface : SHOB 45 m²
Loin des opérations de grande ampleur confiées aux architectes de la Reconstruction, cet étonnant cabinet médical a malgré tout fait l'objet d'un insolite exercice de style. Situé dans l'angle nord d'une vaste parcelle de l'avenue de Pontaillac, cette petite annexe vient compléter une habitation existante. Caché par la dense frondaison de la végétation alentour, le projet semble vouloir s'immiscer dans l'intimité du jardin. Pourtant, il s'impose à la propriété comme un filtre et trie sur le volet toute personne appelée à y pénétrer. Composé de deux volumes distincts s'entremêlant, le bâtiment projette l'une de ses façades sur la rue, tenant en retrait l'entrée réservée à la clientèle. Un traitement en claustra de bois, très inspiré du mouvement linéaire de Mondrian, dédouble la fenêtre de la salle d'attente et accentue la pente unique de la toiture. Deux potelets convergeant vers le sol soutiennent un auvent, pour protéger l'entrée des intempéries. Leur mise en œuvre métallique reprend celle des arabesques abstraites de la porte. La présence de cette casquette de béton est renforcée par le traitement en bois du cabinet, plus haut que le reste de la construction. Marc Hébrard élabore seul les plans de cette petite fantaisie architecturale. Certes, son originalité doit beaucoup à la singularité de la commande, mais n'en demeure pas moins incontestable et de grande qualité.
Localisation
Photos & plans
Cabinet médical - image 1 Cabinet médical - image 2 Cabinet médical - image 3 Cabinet médical - image 4 Cabinet médical - image 5 Cabinet médical - image 6
48 Villa
Pontaillac
Architecte : Marcel CANELLAS
Lieu : 5, Avenue de la FalaiseDate de projet : 1955Date de livraison : 1957Maître d’ouvrage : Henri VacheronMaîtres d’œuvre : Marcel CanellasProgramme : séjour + 2 chambresSurface : SHOB 120 m²
Située à deux pas de la corniche, cette petite villa a élu domicile à mi-chemin entre les plages de Pontaillac et du Pigeonnier, dans l'avenue de la Falaise. Le sous-sol, édifié en retrait, confère à l'étage d'habitation une remarquable légèreté. À l'étage, un des angles du parallélépipède a été tronqué pour permettre au perron de trouver sa place. Seul, le jeu du béton affirme la volumétrie d'ensemble en en marquant les arêtes. Un escalier d'une sobriété déconcertante mène à l'entrée qui, placée en chicane, offre au logement une indéniable intimité. Ses marches semblent, quant à elles, flotter, seulement suspendues aux filins métalliques visibles en second plan. La singulière géométrie des garde-corps, la disposition des fenêtres du séjour dans l'angle le plus ensoleillé et la toiture à pan unique quasiment plate, sont autant de détails qui ajoutent à la qualité architecturale de cette réalisation. Au regard de toute sa production, Marcel Canellas, à qui l'on doit l'exceptionnel projet pour l'auditorium, semble avoir adopté un style qu'il conserve durant toute la décennie 50 et met en œuvre dans chacun de ses projets résidentiels.
Localisation
Photos & plans
Villa - image 1 Villa - image 2 Villa - image 3 Villa - image 4 Villa - image 5 Villa - image 6
49 Villa
Pontaillac
Architecte : Pierre MARMOUGET
Lieu : 21, Allée des FleursDate de projet : 1954Date de livraison : 1958Maître d’ouvrage : Georges RichardMaîtres d’œuvre : Pierre MarmougetProgramme : 2 appartements séjour + 2 chambresSurface : SHOB 2 x 71 m²
Non loin de la plage du Pigeonnier, dans l'angle de l'allée des Fleurs, cette petite copropriété ravira les amateurs d'architecture d'avant-garde. Un parallélépipède de béton, inachevé côté rue, semble avoir été vissé sur un élégant colimaçon métallique. Décollés du sol par un socle discret, les deux étages d'habitation s'avancent en porte-à-faux sur le jardin, soutenus par un frêle pilotis d'angle. En façade, les fines parois vitrées ont été reculées et amputent chaque appartement d'un vaste balcon. Les garde-corps ont été traités avec une extrême légèreté pour préserver la transparence du bâtiment. Le regard pénètre ainsi les lieux dans toute leur profondeur. Seul, le cylindre de la cage d'escalier, véritable colonne vertébrale du projet, crée une zone d'opacité et préserve l'intimité des chambres. Le rez-de-chaussée, largement en retrait sur trois des faces, confère au projet une légèreté remarquable que seul le pesant mur mitoyen vient rompre. Ancré solidement à la parcelle, le pignon plié se transforme en toiture-terrasse. Fidèle à sa réputation, Pierre Marmouget ne cesse de mettre en œuvre tout son savoir faire et son talent. Il réalise ici un immeuble dont la qualité n'est plus à prouver et sur lequel le temps n'a que peu d'emprise.
Localisation
Photos & plans
Villa - image 1 Villa - image 2 Villa - image 3 Villa - image 4 Villa - image 5 Villa - image 6
50 Villa ”Solaroc”
Pontaillac
Architecte : Marc HÉBRARD
Lieu : 5, Boulevard du PigeonnierDate de projet : 1953Date de livraison : 1957Maître d’ouvrage : Marc HébrardMaîtres d’œuvre : Marc HébrardProgramme : séjour + 3 chambres + 1 mezzanineSurface : SHOB 142 m²Collaborateur : René Baraton, Jean Bauhain
Située non loin de la plage du Pigeonnier, cette authentique villa 50 n'a pourtant rien des habituels toits-terrasse et autres pilotis qui caractérisent généralement la production architecturale de cette décennie. La particularité de sa mise en œuvre résulte d'abord de la disposition originale de sa toiture à pan unique. Établie dans le sens de la longueur, elle confère au bâtiment un profil singulier, plutôt étranger aux références balnéaires du moment. Le rez-de-chaussée, partiellement traité en maçonnerie de pierre, tend à se fondre dans la matérialité du sol. L'étage, laissé quant à lui en béton enduit, apparaît d'autant plus aérien qu'il n'est que peu percé de baies. Seule entrave à l'homogénéité de l'ensemble, une courbe de verre et de pierre s'enroule librement autour d'une curieuse serre intérieure. Cette annexe prolonge directement le séjour et tend à faire entrer le jardin jusqu'au cœur de l'habitation. Elle est couronnée d'une fine dalle de béton qui, convertie en un vaste balcon, offre une loge incomparable sur l'océan. Sans doute édifiée pour devenir la résidence principale de l'architecte Marc Hébrard, cette réalisation contraste quelque peu avec l'ensemble de la production de son propriétaire, souvent d'inspiration plus internationale.
Localisation
Photos & plans
Villa ”Solaroc” - image 1 Villa ”Solaroc” - image 2 Villa ”Solaroc” - image 3 Villa ”Solaroc” - image 4 Villa ”Solaroc” - image 5 Villa ”Solaroc” - image 6
51 Villa ”Mirabelle”
Pontaillac
Architecte : R. BARRE
Lieu : 4, Rue de la CornicheDate de projet : 1956Date de livraison : 1958Maître d’ouvrage : René HofligerMaîtres d’œuvre : R. BarreProgramme : séjour + salle à manger + 4 chambresSurface : SHOB 150 m²
À mi-chemin entre les plages du Chay et du Pigeonnier, au début de la rue de la Corniche, vous pourrez découvrir cette exceptionnelle villa. Ici, l'art semble avoir dépassé la simple nécessité constructive et mis tout en œuvre pour assurer à l'architecture des années 50 une éternelle postérité. Dans ce projet, chaque détail participe à la qualité de l'ensemble. Ainsi, l'entrée est traitée comme un objet architectural à part entière, invitant à un subtil mariage la brique, le verre et le béton. De même, la paroi du séjour joue avec les différents degrés d'opacité, associant une vitre transparente à des pavés translucides. L'étage, dont l'emprise est plus faible que celle du rez-de-chaussée, se prolonge en une vaste terrasse sur l'océan. La dalle de la toiture y élance une casquette de béton supportée par de très fins pilotis métalliques. Percé d'une esthétique baie ouverte sur le ciel pour ne pas soustraire aux chambres l'ardent rayonnement du soleil, cet opportun brise-soleil reprend la mise en œuvre du porche. L'entrepreneur Barre, à qui l'on doit l'exceptionnelle villa de l'avenue du Bocage, confirme son talent par l'audace et l'originalité de cette seconde réalisation.
Localisation
Photos & plans
Villa ”Mirabelle” - image 1 Villa ”Mirabelle” - image 2 Villa ”Mirabelle” - image 3 Villa ”Mirabelle” - image 4 Villa ”Mirabelle” - image 5 Villa ”Mirabelle” - image 6
52 Villa
Pontaillac
Architecte : Alex BOURGE
Lieu : 9, Rue Pointe de GraveDate de projet : 1952Date de livraison : 1953Maître d’ouvrage : André RatierMaîtres d’œuvre : Alex BourgeProgramme : salle à manger + 2 chambres + 2 chambres indépendantesSurface : SHOB 83 m² + 48 m²
À deux pas de la conche du Chay, cette imposante villa de la rue Pointe de Grave profite allègrement du soleil et de la vue sur le large. Assis sur un solide soubassement en maçonnerie de pierre, un curieux volume de béton élance l'une de ses arêtes vers le ciel. Amputé de son angle le mieux exposé, le bâtiment laisse pénétrer la lumière jusque dans ses entrailles. La toiture, demeurée intacte, semble s'envoler, déformée par les vents. Elle est pourtant retenue par un frêle pilotis et protège une vaste terrasse des infortunes du climat. Le retrait partiel du socle permet la mise en œuvre d'un escalier dont les marches ont été une à une enchâssées dans la paroi. Il implique le porte-à-faux de l'une des faces du parallélépipède déformé et nécessite la mise en œuvre de deux sculpturaux piliers de béton. L'emploi, plus classique, de la pierre de taille rehausse le percement de chacune des baies du rez-de-chaussée. À l'étage, les façades, laissées extrêmement sobres, accentuent la rigueur géométrique du projet. Bien qu'un peu timorée, l'architecture d'Alex Bourge est empreinte d'une grande rentabilité. Cette notion constructive prônée par les nouvelles théories modernes a largement captivé les acteurs en charge de la Reconstruction de Royan.
Localisation
Photos & plans
Villa - image 1 Villa - image 2 Villa - image 3 Villa - image 4 Villa - image 5 Villa - image 6
53 Villa mitoyenne
Pontaillac
Architecte : Roland LEGAY, Raymond PATOUT
Lieu : 1 et 1 bis, Allée du ChayDate de projet : 1954Date de livraison : 1960Maître d’ouvrage : Marcelle DivorneMaîtres d’œuvre : Raymond Patout, Roland LegayProgramme : 1 appartement séjour + 1 chambre et 1 appartement séjour + 2 chambresSurface : SHOB 39 m² + 65 m²
Retranchée au calme de la place du Chay, en bordure de l'avenue de Pontaillac, cet authentique joyau d'architecture balnéaire ne laissera pas indifférent. Divisé en deux logements distincts, ce monolithe de béton réunit un nombre impressionnant de détails propres aux années 50. Seul, un volume extrudé au premier étage rompt l'homogénéité de la masse pour offrir à ses occupants une loge unique sur le large. Une lucarne ouverte sur le lointain fait face à un astucieux placard extérieur destiné à dissimuler les objets du quotidien. Le garage, inexistant à l'origine, constituait, quant à lui, une vaste terrasse couverte au rez-de-chaussée. De l'autre côté, la partie orientale de l'édifice s'organise sur deux niveaux, enclose par un agréable jardinet. La façade principale exposée plein sud a été perforée pour laisser pénétrer davantage de lumière tout en se prévalant des désagréments du soleil. Les culs de bouteille assurant l'étanchéité sortiraient directement des ateliers du propriétaire, Monsieur Divorne. La composition très rythmée de ce joli projet est signée par les deux architectes royannais, Legay et Patout qui, souvent associés à Guillaume Gillet, ont réalisé quelques îlots intéressants, tels les numéros 7, 19 et 32.
Localisation
Photos & plans
Villa mitoyenne - image 1 Villa mitoyenne - image 2 Villa mitoyenne - image 3 Villa mitoyenne - image 4 Villa mitoyenne - image 5 Villa mitoyenne - image 6
54 Villa
Pontaillac
Architecte : Marcel CANELLAS
Lieu : 8, Rue TeulèreDate de projet : 1955Date de livraison : 1957Maître d’ouvrage : Jean GadiotMaîtres d’œuvre : Marcel CanellasProgramme : séjour + 1 studio + 1 chambreSurface : SHOB 47 m²
Située à l'extrémité du quartier de Pontaillac, cette séduisante petite maison témoigne de façon symptomatique du caractère bien particulier de l'architecture des années 50. À l'origine, perché sur six piliers de béton et solidement accroché à son unique pignon, ce curieux projet semblait flotter au-dessus du petit jardin. Seul, un plot destiné au stockage portait, tel un piédestal, cet aérien logis. Tandis qu'une dalle mince enveloppe trois des arêtes, la façade sur rue se retire discrètement derrière un accueillant perron. Attaché au pont de ce bateau de béton, un escalier largement emprunté au vocabulaire maritime, dérobe le visiteur aux flots du jardin. La succession régulière des lucarnes et des volets de bois confère au traitement des façades avant et arrière, une linéarité proche de celle d'une coque de navire. Dans la paroi, les persiennes ouvertes ont laissé leur empreinte et scandent le bâtiment de trois strates horizontales. Célèbre maître d'œuvre de l'auditorium, Marcel Canellas réaffirme ici ses références brésiliennes. L'affranchissement du sol et la mise en œuvre d'une toiture à double pans inversés sont autant de détails caractéristiques de l'architecture d'Oscar Niemeyer.
Localisation
Photos & plans
Villa - image 1 Villa - image 2 Villa - image 3 Villa - image 4 Villa - image 5 Villa - image 6
55 Villa
Pontaillac
Architecte : Roger de FARCY de MALNOE
Lieu : 68, Boulevard de CordouanDate de projet : 1953Date de livraison : 1956Maître d’ouvrage : Madame Veuve LazardMaîtres d’œuvre : Roger de Farcy de MalnoëProgramme : séjour + 3 chambresSurface : SHOB 138 m²Collaborateur : Hervé Peron et A. Weisbein
Cette remarquable maison étend son plan en « L », au cœur d'une vaste parcelle du boulevard de Cordouan, à la lisière du quartier de Pontaillac. Sa profondeur singulière lui permet de s'organiser sur un niveau unique, de plain-pied avec le terrain. Depuis la rue, le regard est retenu par la présence d'un pesant mur de pierre, autour duquel s'organise toute l'habitation. Certes, sa mise en œuvre lourde lui confère une fonction protectrice, préservant l'intimité du jardin qu'il précède ; mais, plus qu'un obstacle, il intervient dans la promenade architecturale, menant le visiteur jusqu'à l'entrée. Il permet également de hiérarchiser les espaces intérieurs, isolant les pièces de jour et de nuit. En façade, cette dualité est largement lisible. Les chambres, reléguées au nord, sont peu ouvertes sur l'extérieur. En revanche, grâce à deux larges baies, le séjour profite allègrement d'une grande terrasse périphérique offerte aux rayons du soleil. Une dalle de béton blanc, pliée selon deux pans inversés, accorde à la toiture une réelle légèreté. Si de Farcy n'est représenté ici que par cet unique projet, il n'en demeure pas moins un architecte investi dans la Reconstruction de Royan, et à qui l'on doit notamment la réalisation de l'îlot 40 S.
Localisation
Photos & plans
Villa - image 1 Villa - image 2 Villa - image 3 Villa - image 4 Villa - image 5 Villa - image 6 Villa - image 7
56 Villas mitoyennes ”La cricque” et ”Brocéliande”
Pontaillac
Architecte : Louis BELASCO
Lieu : 6 et 8, Allée MarquisetteDate de projet : 1959Date de livraison : 1963Maître d’ouvrage : Madame VinetMaîtres d’œuvre : Louis BelascoProgramme : 2 appartements mitoyens séjour + salle à manger + 2 chambresSurface : SHOB 2 x 100 m²
Ayant bénéficié d'une partie du vaste terrain de la villa « Marquisette », ces deux maisons mitoyennes profitent du calme offert par la proximité de l'impasse. À cheval entre les quartiers de Pontaillac et de Foncillon, la parcelle a été divisée en deux lots différents. Un voile unique de béton sert de toiture à l'ensemble et reprend la forme des ailes ouvertes d'un papillon. Cette métaphore aérienne est largement accentuée par le traitement du rez-de-chaussée. Seul un plot de maçonnerie, regroupant circulations et espaces techniques, repose au sol. Ajouré par l'utilisation de hublots et de parpaings de verre, il libère un vaste espace périphérique et permet au jardin d'étendre son emprise. De solides piliers supportent les porte-à-faux de l'habitation. Ils traversent la dalle et se transforment en filins métalliques semblant empêcher les volatiles de s'envoler. Le niveau supérieur, dessiné simplement, élance ses terrasses, telles deux proues de bateaux. Ce projet constitue l'une des rares interventions de Louis Belasco seul. Il participera toutefois à la reconstruction de nombreux îlots, parmi lesquels les numéros 50, 22 N et ceux du boulevard Briand qui restent les plus remarquables.
Localisation
Photos & plans
Villas mitoyennes ”La cricque” et ”Brocéliande” - image 1 Villas mitoyennes ”La cricque” et ”Brocéliande” - image 2 Villas mitoyennes ”La cricque” et ”Brocéliande” - image 3 Villas mitoyennes ”La cricque” et ”Brocéliande” - image 4 Villas mitoyennes ”La cricque” et ”Brocéliande” - image 5 Villas mitoyennes ”La cricque” et ”Brocéliande” - image 6
57 Immeuble
Pontaillac
Architecte : Marc HÉBRARD
Lieu : 4, Avenue de ParisDate de projet : 1964Date de livraison : 1964Maître d’ouvrage : Marc HébrardMaîtres d’œuvre : Marc HébrardProgramme : 4 appartements séjour + 2 chambresSurface : SHOB 250 m²
Situé à l'angle de l'avenue de Paris et du boulevard du Colonel Baillet, ce remarquable petit immeuble regroupe quatre appartements répartis sur les deux étages. Constitué de deux niveaux identiques, l'édifice est une accumulation de matériaux différents. La pierre, d'abord, est utilisée pour le soubassement et le mur ajouré du coin feu. Le métal et le verre servent ensuite à créer des alcôves d'angle, tandis que le béton dessine la forme générale. Les volets, aujourd'hui en partie supprimés, coulissaient sur des rails horizontaux. À l'arrière, l'accès à l'étage se fait par un escalier dissimulé dans une saillie, à la cassure du bâtiment. Un pilier de béton lui sert de structure et accentue d'autant l'angle défini par les deux corps de l'ouvrage. Le profil d'une aile d'avion a été utilisé pour la toiture et concède au projet une réelle qualité esthétique. La forme trapézoïdale, appliquée à deux fenêtres, identifie, quant à elle, clairement le propriétaire des lieux. Marc Hébrard, à la fois maître d'œuvre et maître d'ouvrage de ce chantier, utilise, un peu tardivement, toutes les combinaisons architecturales qui ont engendré l'extraordinaire richesse de la production des années 50.
Localisation
Photos & plans
Immeuble - image 1 Immeuble - image 2 Immeuble - image 3 Immeuble - image 4 Immeuble - image 5 Immeuble - image 6
58 Villa ”Les catleyas”
Pontaillac
Architecte : Marc QUENTIN
Lieu : 10, Avenue des PlatanesDate de projet : 1957Date de livraison : 1960Maître d’ouvrage : René GiraudMaîtres d’œuvre : Marc QuentinProgramme : séjour + 3 chambresSurface : SHOB 150 m²
Édifiée sur une très vaste parcelle de l'avenue des Platanes, cette villa profite de l'ombre des grands chênes qui l'entourent. Une seconde bâtisse, réalisée quinze ans plus tard, fait aujourd'hui le pendant de cet intéressant projet et en reprend les principales qualités. L'entrée, quasiment centrale, est enchâssée dans une large baie de pavés de verre. Elle distingue deux volumes aux fonctions antinomiques. L'un, traité en maçonnerie de pierre, abrite les pièces de vie et s'oppose au second qui, posé sur un solide soubassement, affiche la sobriété de son enduit lisse. Le séjour, en forme de « L », s'organise autour d'une loggia extérieure couverte dont il est séparé par un esthétique claustra de béton. Une épaisse cheminée rectangulaire sert de rotule à toute l'organisation intérieure et émerge de la toiture-terrasse pour mieux en rompre l'uniformité. Les façades, rythmées par l'emploi des volets coulissants, tentent de distraire le regard par d'habiles jeux de transparence. Marc Quentin signe ici une réalisation de qualité, bien différente des traditionnelles copropriétés dont il se voit souvent confier le chantier. Sa disposition de plain-pied et sa mise en œuvre rapprochent ce projet de celui de l'avenue des Primevères, dans le quartier du Parc.
Localisation
Photos & plans
Villa ”Les catleyas” - image 1 Villa ”Les catleyas” - image 2 Villa ”Les catleyas” - image 3 Villa ”Les catleyas” - image 4 Villa ”Les catleyas” - image 5 Villa ”Les catleyas” - image 6
59 Villa
Pontaillac
Architecte : Marcel CANELLAS
Lieu : 11, Avenue des PlatanesDate de projet : 1957Date de livraison : 1958Maître d’ouvrage : Marcel CanellasMaîtres d’œuvre : Marcel CanellasProgramme : séjour + 2 chambres + salle de jeuxSurface : SHOB 150 m²
Construite sur une parcelle de l'avenue des Platanes légèrement en pente, cette surprenante villa semble s'être échouée sur le flan sud d'une petite dune de sable. Décollé du sol par une série d'étais de béton, l'étage principal repose sur un rez-de-chaussée largement effacé par sa subtile position en retrait. Le projet, allégé par cet effet de porte-à-faux, s'inscrit dans un parallélépipède dont un des angles a été entaillé pour recevoir l'entrée. Un épais mur de béton, dans lequel ont été enchâssées des lamelles biseautées, constitue l'escalier menant jusqu'à la porte. Soutenue par l'imposante cheminée de pierre extérieure, la toiture qui n'est pas sans rappeler la coque d'un navire, déborde largement pour abriter le perron. En façade, l'horizontalité a été privilégiée par la mise en œuvre de fenêtres en longueur, rythmées par la présence des volets coulissants. La répétition verticale de trois lucarnes déroge cependant à la règle pour mieux orienter le visiteur vers le cœur de l'habitation. Marcel Canellas signe ce projet en tant que maître d'ouvrage et maître d'œuvre à la fois. Pourtant, l'architecte n'utilise ici que très peu les éléments d'architecture brésilienne qu'il conviera quelques années plus tard à la construction de l'auditorium.
Localisation
Photos & plans
Villa - image 1 Villa - image 2 Villa - image 3 Villa - image 4 Villa - image 5 Villa - image 6
60 Villa
Pontaillac
Architecte : Pierre MARMOUGET
Lieu : 32, Avenue des PlatanesDate de projet : 1953Date de livraison : 1954Maître d’ouvrage : Marguerite NouhaudMaîtres d’œuvre : Pierre MarmougetProgramme : séjour + 2 chambresSurface : SHOB 92 m²
Cette villa de l'avenue des Platanes est sans doute l'un des plus intéressants projets que dissimule le quartier de Pontaillac. Sa mise en œuvre réunit avec beaucoup d'élégance tous les préceptes conférant à l'architecture des années 50, son extrême qualité. Son plan se détache du sol, soutenu par un socle de maçonnerie en pierre sur lequel il paraît avoir pivoté. Seul lien avec le terrain, un majestueux plan incliné à double volée cueille l'occupant dans le jardin pour le mener à la terrasse du séjour. Un sculptural pilier de béton en assure le porte-à-faux et s'élance vers le ciel en guise de figure de proue. Rampes, pilotis et claustras atteignent ici leur paroxysme d'originalité tant l'architecte semble se les être appropriés. Même la traditionnelle cheminée est reconsidérée et se divise pour devenir accessible de l'intérieur comme de l'extérieur. Verrait-on là une expression avant-gardiste du barbecue ? Les redans créés par la diversité des volumes accordent au toit à double pans inversés une expression particulière. La dalle fine qui le constitue se transforme, d'abord en pilotis, puis en escalier, et semble unir tous les éléments en un seul et même objet. Nul n'est besoin d'en chercher la signature. C'est encore à Pierre Marmouget que l'on doit ce véritable petit chef-d'œuvre d'architecture.
Localisation
Photos & plans
Villa - image 1 Villa - image 2 Villa - image 3 Villa - image 4 Villa - image 5 Villa - image 6
61 Villa
Pontaillac
Architecte : P. DELHOMME
Lieu : 39, Avenue des PlatanesDate de projet : 1959Date de livraison : 1963Maître d’ouvrage : Gustave MarsaudonMaîtres d’œuvre : P. DelhommeProgramme : séjour + bureau + 3 chambresSurface : SHOB 150 m²
Bien que le quartier de Pontaillac ne compte que peu de villas symptomatiques des années 50, l'avenue des Platanes en regroupe à elle seule quatre jolis spécimens. Cette maison, sise dans l'angle de l'avenue de la Métairie, en fait partie. Tel un pavé blanc posé au sol, ce projet placé au cœur d'un vaste terrain trapézoïdale ouvre largement son volume à la rue. Un soubassement, légèrement en retrait, décolle la masse de l'habitation. Organisée en un étage unique, celle-ci semble allégée et n'est retenue que par une fine volée d'escalier. La façade principale joue elle aussi avec les pleins et les vides, rythmée par la succession des baies, des fenêtres et des murs. L'ensemble est toutefois ramené dans un même corps par un encadrement continu de béton. Une dalle fine soustrait le visiteur au jardin, puis dans un même élan le mène jusque sur la terrasse. Elle poursuit seule sa course folle, créant successivement pignons et toiture, et achève sa boucle en rejoignant le plan incliné qui l'a vu naître. Les autres faces, demeurées épurées, renforcent cette volonté du maître d'œuvre qui tend à nous faire oublier la parcelle. Seul édifice attribué au cabinet Delhomme, cette villa n'en demeure pas moins originale et constitue une réalisation fidèle à la production de l'École de Royan.
Localisation
Photos & plans
Villa - image 1 Villa - image 2 Villa - image 3 Villa - image 4 Villa - image 5 Villa - image 6
62 Villa ”Sans atout”
Pontaillac
Architecte : René BARATON, Jean BAUHAIN, Marc HÉBRARD
Lieu : 3, Avenue de la Métairie (angle 24 bis, Boulevard Bellamy)Date de projet : 1956Date de livraison : 1957Maître d’ouvrage : Elie MarchéMaîtres d’œuvre : Jean Bauhain, Marc Hébrard, René BaratonProgramme : 2 appartements séjour + 2 chambresSurface : SHOB 65 m² + 68 m²
À l'angle du boulevard Bellamy et de l'avenue de la Métairie, cette maison a su s'adapter à la pente du terrain sur lequel elle est bâtie. Il faut toutefois imaginer que le volume le plus petit n'est pas d'origine. Certes, la pente imposait au projet une contrainte non négligeable : l'ensevelissement partiel de l'une de ses façades. Mais les architectes en charge de la réalisation l'ont au contraire utilisée pour préserver l'intimité de chaque appartement. Le rez-de-chaussée en partie enfoui dans le terrain, oriente inévitablement son séjour sur la rue, repoussant les chambres en fond de parcelle. L'étage, quant à lui, fonctionne de manière inverse. Le salon et la salle à manger s'ouvrent de plain-pied sur le haut du jardin. Les chambres surplombent au contraire le jardin bas. Leurs ouvertures ont été placées sur les façades latérales afin de limiter la promiscuité visuelle. Les deux niveaux diffèrent également par leur traitement : le pesant socle de pierre contraste avec la légèreté du béton enduit. La présence des hublots et l'épaisse dalle de toit ont sans doute été empruntées au vocabulaire marin. Prolongée dans le respect du style, cette réalisation a su opérer sa reconversion sans la participation du trio Baraton, Bauhain, Hébrard.
Localisation
Photos & plans
Villa ”Sans atout” - image 1 Villa ”Sans atout” - image 2 Villa ”Sans atout” - image 3 Villa ”Sans atout” - image 4 Villa ”Sans atout” - image 5 Villa ”Sans atout” - image 6
63 Îlot 50
Parc
Architecte : Yves SALIER
Lieu : Boulevard de la Grandière, Rues de la Marine et de la RépubliqueDate de projet : 1952Date de livraison : 1957Programme : habitations, maisons de ville en bande, petits collectifs dont 1 école et commercesCollaborateur : L. Belasco, J.R. Francq
Cette vaste opération de reconstruction s'étend tout le long du boulevard de la Grandière et regroupe vingt parcelles, dont deux seulement ont conservé leurs bâtiments d'origine. Les façades les plus intéressantes demeurent celles orientées vers la mer et le rond-point de la Poste. Tandis que les rez-de-chaussée, en retrait, tendent à s'effacer, trois volumes rehaussés d'un encadrement de béton sont projetés en porte-à-faux au-dessus de la rue. Les habitations, organisées en duplex et triplex, sont ainsi confondues dans d'imposants quadrillages. Scandés par la présence des deux uniques constructions d'avant-guerre, loggias et balcons identifient les propriétés par l'emploi de subtiles claustras métalliques disposés en lieu et place des garde-corps. Sur la rue de la République, les doubles hauteurs viennent contester l'horizontalité des lignes principales. Privé de coursives, chaque appartement, à la façade reculée, s'ouvre sur un grand espace couvert par le débord de la toiture, créant un effet général en « nid d'abeilles », jouant sur les pleins et les vides. À l'arrière, chaque parcelle bénéficie d'une dépendance, accessible par la rue de la Marine. Une petite école profite également de la vacance d'un terrain pour se joindre au projet. Cet îlot, réalisé sous la direction d'Yves Salier, sera complété par les exceptionnels projets destinés au docteur Counil et aux Ponts et Chaussées.
Localisation
Photos & plans
Îlot 50 - image 1 Îlot 50 - image 2 Îlot 50 - image 3 Îlot 50 - image 4 Îlot 50 - image 5 Îlot 50 - image 6
64 Maison de ville ”Hélianthe”
Parc
Architecte : Yves SALIER
Lieu : 38, Boulevard de la GrandièreDate de projet : 1952Date de livraison : 1956Maître d’ouvrage : Monsieur CounilMaîtres d’œuvre : Yves SalierProgramme : 3 appartements, 1 cabinet dentaire
Située tel un petit immeuble en bordure de rue, la villa « Hélianthe » doit sa courbe à la nécessité de raccorder la bande bâtie du boulevard de la Grandière au siège des Ponts et Chaussées, construit quelques années auparavant, par le même architecte bordelais. Elle se décompose en un rez-de-chaussée disparaissant dans la pénombre, un premier étage en porte-à-faux, supporté par une série de fins poteaux métalliques et un second étage dont le retrait libère une grande terrasse. Son plan était initialement conçu pour accueillir trois logements et un cabinet dentaire. La façade principale, largement exposée aux rayons du soleil et au littoral, a été pensée pour offrir une multitude d'ambiances aux espaces intérieurs. L'utilisation de claustras et de retraits apporte la profondeur et la légèreté utiles au traitement de la lumière. La mise en valeur des éléments structurels permet, quant à elle, de jouer avec les pleins et les vides. Libérées de toute contrainte constructive, les parois, béantes sur l'océan, ont été mises en retrait et laissent deux coursives courir tout le long du bâtiment. Certes, l'ensemble de ces dispositifs architecturaux est nourri d'exemples d'outre-mer et du Brésil, mais Yves Salier, élève et collaborateur de Claude Ferret, fait preuve ici d'une grande imagination plastique en empruntant très tôt ce vocabulaire balnéaire.
Localisation
Photos & plans
Maison de ville ”Hélianthe” - image 1 Maison de ville ”Hélianthe” - image 2 Maison de ville ”Hélianthe” - image 3 Maison de ville ”Hélianthe” - image 4 Maison de ville ”Hélianthe” - image 5 Maison de ville ”Hélianthe” - image 6
65 Immeuble des ponts et chaussées
Parc
Architecte : Yves SALIER
Lieu : 2, Avenue de la Grande ConcheDate de projet : 1949Date de livraison : 1952Maître d’ouvrage : Ponts et ChausséesMaîtres d’œuvre : Yves SalierProgramme : bureaux + archives + 1 appartement séjour + 4 chambresSurface : SHOB 288 m² + 140 m²
Architecte en charge de la reconstruction de l'îlot 50, Yves Salier prolonge le front bâti, reconstruit le long du boulevard de la Grandière, en implantant cet impressionnant bâtiment destiné à recevoir les bureaux administratifs des Ponts et Chaussées. Abordant l'avenue de la Grande Conche, il inscrit son projet dans la courbe dessinée par l'emprise de la rue. Le corps principal, composé d'un parallélépipède, au demeurant assez austère, trouve refuge dans un lacet de béton hissé sur sept pilotis, qui vient en quelque sorte achever la ligne du pâté de maisons. Une façade rideau linéaire, dont la partie vitrée est rythmée de trois lames de brise-soleil, enveloppe l'ensemble et annexe au passage une partie du trottoir, qu'elle transforme en un audacieux préau. Développant en toiture un vaste balcon sur le littoral, cette greffe improvisée déploie en sa base une double volée d'escalier qui, protégée par une fine casquette de béton, semble convoquer le promeneur à cette curieuse rencontre. Pensée dans le prolongement de l'îlot 50, cette réalisation annonce de façon certaine le projet d'habitation mitoyen destiné au docteur Counil, qui viendra combler la parcelle intermédiaire laissée jusqu'ici vacante.
Localisation
Photos & plans
Immeuble des ponts et chaussées - image 1 Immeuble des ponts et chaussées - image 2 Immeuble des ponts et chaussées - image 3 Immeuble des ponts et chaussées - image 4 Immeuble des ponts et chaussées - image 5 Immeuble des ponts et chaussées - image 6
66 Immeuble
Parc
Architecte : J. PAPEGAY
Lieu : 18, avenue des SemisDate de projet : 1952Date de livraison : 1955Maître d’ouvrage : Léon de TréverretMaîtres d’œuvre : J. PapegayProgramme : 2 appartements salon + salle à manger + 2 chambres + garageSurface : SHOB 2 x 77 m²
Édifiée selon les principaux dogmes adoptés par l'architecture des années 50, cette petite copropriété a choisi le quartier du Parc et plus précisément l'avenue des Semis comme asile. Certes, l'on retrouve ici la dualité initiée par la division du bâtiment en deux entités distinctes. Le socle d'une part, qui tend à s'effacer en optant pour une position de retrait par rapport à l'ensemble, puis le logement à proprement parler, campé sur son piédestal et scindé lui aussi en deux logements individuels. Pourtant, dans son projet, l'architecte semble vouloir en nuancer les effets. Il joint les deux masses dans un même cadre de béton et octroie le volume annexé à deux grands balcons plein sud. La façade principale, ainsi transformée, se révèle non plus bipartite mais tripartite, englobant sans distinction, rez-de-chaussée et étages. Cette intervention est renforcée par la présence insolite de l'escalier extérieur dont les volées de marches lient les différents niveaux. Une paroi fine, cassée selon deux plans, permet de se rendre à couvert de l'un à l'autre, sans faire obstacle à la vue. L'étude initiale prévoyait un remplissage en pavés de verre pour limiter les désagréments du vent. Mais cela en aurait sans doute affaibli la légèreté. Cette réalisation est la seule recensée pour faire état du travail de Papegay, qui signe toutefois un intéressant exercice d'architecture moderne.
Localisation
Photos & plans
Immeuble - image 1 Immeuble - image 2 Immeuble - image 3 Immeuble - image 4 Immeuble - image 5 Immeuble - image 6
67 Villa
Parc
Architecte : Marc QUENTIN
Lieu : 36, Avenue de l'OasisDate de projet : 1954Date de livraison : 1955Maître d’ouvrage : Monsieur PointetMaîtres d’œuvre : Marc QuentinProgramme : séjour + salle à manger + 3 chambresSurface : SHOB 111 m²
Dissimulée dans l'épaisse frondaison des arbres, cette villa semble définitivement avoir adopté la quiétude du Parc et de ses avenues. Certes, son authentique style 50 détonne un peu avec celui des constructions alentour, mais la qualité de son avant-gardisme tend à nous faire oublier la proximité de cette architecture révolue. L'usuel schéma moderne tripartite est ici repris, et distingue le socle technique effacé au maximum, des deux étages d'habitation. Trois murs et une série de pilotis en constituent la trame porteuse et libèrent ainsi la façade principale de toute contrainte structurelle. Le rez-de-chaussée, en partie évidé, s'organise autour d'une virgule de béton qui mène le visiteur dans l'antre d'une étonnante cage d'escalier hélicoïdal. Le cylindre résultant du colimaçon est habillé d'une paroi fine de béton, percée de pavés de verre ronds. Le premier étage a lui aussi été reculé pour permettre la création d'une loggia ouverte sur la rue. À l'arrière, l'un des angles a également été amputé et offre au coin repas une petite terrasse, isolée du voisinage par des lames verticales en parpaings. Le second niveau, réservé aux chambres, demeure plus hermétique. Par cette réalisation, Quentin illustre l'une des caractéristiques essentielles de l'architecture moderne : le projet est toujours largement tourné vers la rue et ignore le terrain avec lequel il ne conserve qu'un minimum de relations.
Localisation
Photos & plans
Villa - image 1 Villa - image 2 Villa - image 3 Villa - image 4 Villa - image 5 Villa - image 6
68 Villa
Parc
Architecte : Alex BOURGE
Lieu : 25, Avenue de l'OasisDate de projet : 1955Date de livraison : 1957Maître d’ouvrage : Madame GodichaudMaîtres d’œuvre : Alex BourgeProgramme : 1 appartement séjour + 1 chambre et 1 appartement séjour + salon + 1 chambreSurface : SHOB 39 + 47 m²Collaborateur : A. Portal (projeteur)
Située à l'arrière de la célèbre place du docteur Gantier, cette petite copropriété de l'avenue de l'Oasis s'inscrit dans l'opération de reconstruction de l'îlot 93. Flanqué de son mur mitoyen dont le retournement constitue la toiture, ce projet se décompose en deux niveaux distincts par la superficie. L'étage, plus vaste, déborde du rez-de-chaussée et s'élance en porte-à-faux au-dessus du jardin, retenu par trois frêles pilotis de béton. À l'arrière, un escalier hélicoïdal enroule les méandres de sa courbe autour de l'un d'eux et permet un accès autonome. Au sol, des potelets métalliques en suggèrent la cage. Une saillie dans l'angle du bâtiment alloue à l'appartement supérieur une agréable terrasse qui prolonge le séjour. Le débord de la toiture, demeurée intacte, s'appuie sur l'axe du colimaçon pour en abriter une partie. En façade, seul le traitement des sanitaires accorde une touche ludique à l'ensemble. Quatre carreaux de verre leur accordent la lumière nécessaire et les protègent des regards de la rue. Alex Bourge, adjoint de l'architecte Quentin, réalise ainsi quelques projets en solitaire. Il participe également à la reconstruction des îlots 7, 31 et 37.
Localisation
Photos & plans
Villa - image 1 Villa - image 2 Villa - image 3 Villa - image 4 Villa - image 5 Villa - image 6
69 Immeuble
Parc
Architecte : Marcel CANELLAS
Lieu : 2, Avenue de VerdunDate de projet : 1957Date de livraison : 1959Maître d’ouvrage : Indivision Chat et LocussolProgramme : séjour + bureau + 4 chambresSurface : SHOB 200 m²
À la limite du quartier du Parc, cette imposante demeure occupe une vaste parcelle triangulaire à l'intersection des avenues de Verdun et de la Grande Conche. Construite en gradin, du sol jusqu'à la toiture, le bâtiment est élevé sur un solide soubassement de pierre. Le rez-de-chaussée surélevé est accessible par un magistral escalier évasé. Ses lignes convergentes guident le visiteur jusqu'à l'entrée. La toiture aménagée du garage prolonge le séjour en une vaste terrasse offerte au soleil, dont une partie est isolée de l'animation urbaine par un esthétique claustra de béton. Malgré la composition plutôt classique de l'ensemble, la façade arrière semble avoir adopté un vocabulaire emprunté à l'architecture navale. Deux casquettes de béton s'y accrochent, soutenues par de frêles filins métalliques. L'une offre un accès direct au jardin tandis que l'autre devient une sympathique loge pour l'étage. Postérieur au projet, un escalier hélicoïdal les relie désormais. Placé dans l'axe de la cage d'escalier intérieure, révélée par un traitement de pavés de verre, il accorde à la mise en œuvre une touche supplémentaire de modernisme. Marcel Canellas, qui n'a pas encore entrepris la réalisation de l'auditorium sur la Grande Conche, livre à Royan quelques villas encore peu annonciatrices des imminentes références brésiliennes.
Localisation
Photos & plans
Immeuble - image 1 Immeuble - image 2 Immeuble - image 3 Immeuble - image 4 Immeuble - image 5 Immeuble - image 6
70 Immeuble
Parc
Architecte : Marc QUENTIN
Lieu : 79, Avenue de la Grande ConcheDate de projet : 1954Maître d’ouvrage : Entrope MarcouilléMaîtres d’œuvre : Marc QuentinProgramme : 1 hangar + 1 logement indépendant séjour + 3 chambresSurface : SHOB 97 m² + 116 m²
Donnant sur l'avenue de la Grande Conche, ce projet était destiné à recevoir une habitation à l'étage et des garages en rez-de-chaussée. À l'origine, le sol, affranchi, pénétrait complètement sous la masse de l'étage, surélevée par une dizaine de pilotis. Le rez-de-chaussée, ainsi évidé, permettait de profiter de la perspective de la parcelle et de sa végétation. Seul élément solidement arrimé au sol, la cheminée de la cage d'escalier permet un accès direct, de la rue au cœur de l'appartement. Sa position non centrée est justifiée par son rôle de limite entre les espaces de réception et les chambres. Le traitement en claustra de pavés de verre confère au bâtiment son unique ligne verticale et identifie l'entrée, autrefois située à l'abri, sous le préau. À l'arrière, la façade a été reculée sur toute sa longueur et ouvre chacune des pièces tournées vers le jardin, sur une vaste coursive. Le séjour, dont le retrait a été accentué, bénéficie, quant à lui, d'une profonde terrasse couverte par le débord de la toiture-terrasse. Pendant la Reconstruction, Marc Quentin trouve, pour chacune des commandes qu'il s'est vu confier, des réponses différentes et originales.
Localisation
Photos & plans
Immeuble - image 1 Immeuble - image 2 Immeuble - image 3 Immeuble - image 4 Immeuble - image 5 Immeuble - image 6
71 Villa ”Kirou play”
Parc
Architecte : René BARATON, Jean BAUHAIN, Marc HÉBRARD
Lieu : 6, Allée GeorgesDate de projet : 1958Date de livraison : 1960Maître d’ouvrage : Jean PerillaudMaîtres d’œuvre : Jean Bauhain, Marc Hébrard, René BaratonProgramme : séjour + 1 chambreSurface : SHOB 71 m²
Perdue dans les méandres des allées du Parc, cette petite maison s'inscrit parfaitement dans le stéréotype architectural balnéaire. Ses faibles proportions l'apparentent plus au bungalow qu'à la villa de vacances. Construite de plain-pied, ce charmant pied-à-terre reprend un vocabulaire propre à l'architecture des années 50. L'entrée profite d'un décrochement dans la façade pour y trouver refuge. Une verrière semi-transparente la jouxte et apporte au hall la lumière nécessaire. Elle est assise sur un solide soubassement de pierre dans lequel à été placé une jardinière destinée à intégrer la végétation au projet. À l'arrière, la toiture, dont la pente a été réduite au maximum, se prolonge en porte-à-faux sur le jardin. Étayée par trois potelets métalliques, elle offre aux occupants une agréable terrasse couverte. On remarquera également l'empreinte des volets coulissants qui, lorsqu'ils étaient encore en place, animaient les façades. Les panneaux de bois avaient l'avantage d'obstruer plus ou moins les baies, en fonction de la position du soleil dans le ciel. Baraton, Bauhain et Hébrard signent ici un projet semblable à celui de la rue Pierre Jônain. On y retrouve, outre la mise en œuvre commune et l'utilisation de matériaux similaires, un réel souci de fabriquer une architecture économique et pratique.
Localisation
Photos & plans
Villa ”Kirou play” - image 1 Villa ”Kirou play” - image 2 Villa ”Kirou play” - image 3 Villa ”Kirou play” - image 4 Villa ”Kirou play” - image 5 Villa ”Kirou play” - image 6
72 Villa La Rafale dite ”Boomerang”
Parc
Architecte : Pierre MARMOUGET
Lieu : 9, Allée Georges (angle Avenue de la Grande Plage)Date de projet : 1955Date de livraison : 1959Maître d’ouvrage : Raoul HervéMaîtres d’œuvre : Pierre MarmougetProgramme : 3 logementsSurface : SHOB 200 m² + 31 m²
Cette surprenante villa se blottit à l'ombre des grands pins de l'allée Georges, dans le quartier du Parc. Dessinée selon le modèle du bungalow, cette extraordinaire villa, si légère, doit son sobriquet à son plan et à sa forme. Coincé entre deux dalles minces de béton et surélevé par une série de pilotis, l'édifice se divise en deux corps distincts. L'un, ouvert largement sur le jardin, concentre les principales pièces à vivre, tandis que le second, hermétique, regroupe plus particulièrement les chambres. Le garage demeure le seul élément en contact avec le sol. Une échelle cocasse permet de descendre directement du bâtiment à la piscine. Les quelques marches de l'entrée, concrétisée par une casquette de béton, mènent à une vaste coursive de desserte. Une rambarde ajourée, à l'instar de celle du Casino Municipal, invite le visiteur à entrer et l'accompagne jusque dans le hall. Deux autres accès, à l'arrière, permettent de répartir le découpage subtil de cette villa en trois lots. Pierre Marmouget dispense ici une exceptionnelle leçon d'architecture. Il nous offre un véritable manifeste d'architecture brésilienne. Cette virtuosité laisse à penser qu'il a joué un rôle décisif dans l'introduction des références brésiliennes au cœur des grands projets royannais auxquels il a participé : le Casino, le Palais des Congrès, la Place Gantier...
Localisation
Photos & plans
Villa La Rafale dite ”Boomerang” - image 1 Villa La Rafale dite ”Boomerang” - image 2 Villa La Rafale dite ”Boomerang” - image 3 Villa La Rafale dite ”Boomerang” - image 4 Villa La Rafale dite ”Boomerang” - image 5 Villa La Rafale dite ”Boomerang” - image 6
73 Villa mitoyenne
Parc
Architecte : R. BARRE
Lieu : 5, Avenue du BocageDate de projet : 1957Maître d’ouvrage : Georges BuretMaîtres d’œuvre : R. BarreProgramme : séjour + 2 chambresSurface : SHOB 63 m²
Nichée au cœur du quartier du Parc, cette insolite fantaisie architecturale a trouvé refuge dans les méandres de l'avenue du Bocage. En marge des artères les plus fréquentées, elle révèle aux promeneurs curieux les excentricités de son étonnante façade. Pensée de pair avec sa jumelle, cette maison ne garde que peu de traces de sa mitoyenneté. Ici, le propriétaire a clairement pris le parti de l'originalité en confiant à l'entrepreneur Barre la réalisation de sa résidence. Travaillée comme un véritable petit chef-d'œuvre, la façade sur rue élance son magistral balcon vers le littoral. Claustras et sculptures de béton, reliés par un fragile tube métallique, constituent le garde-corps. L'emploi d'une teinte céruléenne, adjoint à la mise en œuvre d'oculi et de claires-voies, prodigue au traitement des parois pleines le caractère ludique d'une sculpture cubiste. Trois rangées de pavés de verre décollent la toiture d'un pesant socle en pierre et permettent à la lumière d'inonder en permanence l'habitation. Au contraire, le rez-de-chaussée est délibérément plongé dans une semi-obscurité, invitant le visiteur à gagner l'étage. Résultat marginal d'une vision très esthétique de l'architecture, cette réalisation s'inscrit parfaitement dans la ligne de conduite adoptée par l'entrepreneur Barre. En artiste à part entière, il signe également la remarquable villa de l'avenue de la Corniche.
Localisation
Photos & plans
Villa mitoyenne - image 1 Villa mitoyenne - image 2 Villa mitoyenne - image 3 Villa mitoyenne - image 4 Villa mitoyenne - image 5 Villa mitoyenne - image 6
74 Villa ”maison B”
Parc
Architecte : Marc QUENTIN
Lieu : 17, Avenue de la Grande PlageDate de projet : 1955Date de livraison : 1960Maître d’ouvrage : André CarrierMaîtres d’œuvre : Marc QuentinProgramme : 2 appartements identiques séjour + 2 chambresSurface : SHOB 2 x 82 m²
Très différent de sa contemporaine voisine, ce petit immeuble constitue le second projet destiné à lotir cette vaste parcelle du quartier du Parc. Sa forme particulière semble résulter de l'éventuelle possibilité d'emboîtement des deux réalisations. Depuis la rue, ses allures de forteresse indiquent clairement le parti de l'architecte. Le projet tourne le dos à la ville et s'ouvre en revanche largement sur le jardin. Ainsi, seuls huit vasistas lèchent le plafond des deux appartements superposés et flanquent la pesante tour dans laquelle l'escalier a trouvé sa place. Une colonne de pavés de verre y laisse pénétrer une lumière rasante, achevant l'austérité de l'élévation. Au contraire, à l'arrière, le large parallélépipède habitable est allégé par le retrait du sous-sol. Deux strates distinctes sont réunies dans un même encadrement de béton. Leurs parois, en partie reculées, permettent aux séjours de se prolonger en une intime loggia couverte. À cause de la forte emprise du bâtiment sur la parcelle, le jardin reste totalement ignoré, voire occulté. Seul, le perron de l'entrée constitue un pont fragile entre le terrain et l'habitation. Pourquoi Quentin répond-il à cette commande par deux projets diamétralement différents ? Faute d'y apporter une réponse, admettons que leurs qualités communes suffisent à en faire oublier l'antagonisme.
Localisation
Photos & plans
Villa ”maison B” - image 1 Villa ”maison B” - image 2 Villa ”maison B” - image 3 Villa ”maison B” - image 4 Villa ”maison B” - image 5 Villa ”maison B” - image 6
75 Villa ”Maison A” ”La Galiote”
Parc
Architecte : Marc QUENTIN
Lieu : 1, Avenue des PrimevèresDate de projet : 1955Date de livraison : 1960Maître d’ouvrage : André CarrierMaîtres d’œuvre : Marc QuentinProgramme : séjour + 2 chambresSurface : SHOB 114 m²
Située sur une vaste parcelle du quartier du Parc, vers le rond-point Roussel, à l'angle des avenues de la Grande Plage et des Primevères, cette intéressante villa va de pair avec sa voisine du numéro 17. Son plan en « L », tourné vers le soleil, embrasse de ses deux ailes le jardin, pour mieux le protéger des heurts de la rue. Organisée de plain-pied, l'habitation distingue le volume du séjour, plus haut, de celui des chambres, lovées dans un épais mur de pierre appareillée. Retenue par un monolithe de béton blanc, une faille de pavés de verre allège le pesant bandeau de la toiture qui ne semble plus soutenu qu'en un point. Dans un désaxement contrôlé, l'entrée s'impose au visiteur. Son cockpit de béton n'est pas sans rappeler celui d'un bateau, auquel il semble d'ailleurs avoir emprunté le hublot. À l'arrière, soutenu par un pilotis de métal, un pan de toit s'élance, telle une proue, au-dessus d'une petite terrasse. Par temps clément, cette loggia ombragée devient une agréable salle à manger à ciel ouvert et éloigne le séjour d'un soleil trop persistant. Pour la première fois, Marc Quentin reprend le système du bungalow, déjà éprouvé par le trio Baraton, Bauhain, Hébrard, dont il réinterprète le plan et les façades à sa manière.
Localisation
Photos & plans
Villa ”Maison A” ”La Galiote” - image 1 Villa ”Maison A” ”La Galiote” - image 2 Villa ”Maison A” ”La Galiote” - image 3 Villa ”Maison A” ”La Galiote” - image 4 Villa ”Maison A” ”La Galiote” - image 5 Villa ”Maison A” ”La Galiote” - image 6
76 Villa
Parc
Architecte : Claude BONNEFOY
Lieu : 51, Avenue de l'AtlantiqueDate de projet : 1956Date de livraison : 1962Maître d’ouvrage : Robert TaunayMaîtres d’œuvre : Claude BonnefoyProgramme : séjour + salle à manger + 3 chambresSurface : SHOB 180 m²Collaborateur : Taunay ent.
Cet étonnant bâtiment, situé à l'extrémité nord du quartier du Parc, à l'angle des avenues de l'Atlantique et d'Aliénor d'Aquitaine, représente la deuxième collaboration de l'architecte Clause Bonnefoy et de l'entrepreneur Robert Taunay. Véritable paquebot d'architecture, ce projet, bien que moderne, détonne avec ses homologues issus de la décennie 50. L'habituel socle en retrait qui tend à libérer le jardin est ici complètement occulté. Au contraire, c'est l'étage dont les proportions ont été réduites, qui se prolonge sur le rez-de-chaussée en de vastes terrasses périphériques. Le traitement de pierre appareillée a été remplacé par un revêtement de bois. Un épais mur de maçonnerie ancre solidement le bâtiment dans sa parcelle. La forme pyramidale de l'ensemble accentue d'autant cet effet exagéré de pesanteur. L'utilisation de fenêtres en longueur et la coupe biseautée des principaux volumes de béton sont autant d'éléments symptomatiques de la Reconstruction. Toutefois, ils sont associés à des éléments plus classiques, tels que la toiture à double pans ou le sous-sol semi-enterré. Avec un demi-siècle d'avance, le tout ressemble étrangement aux pavillons que l'on voit fleurir aujourd'hui en périphérie des villes. Rappelons que le même architecte entreprend, dès 1958, la construction de la villa Ombre Blanche. Il est pourtant difficile d'y retrouver quelque analogie que ce soit.
Localisation
Photos & plans
Villa - image 1 Villa - image 2 Villa - image 3 Villa - image 4 Villa - image 5 Villa - image 6
77 Villa
Parc
Architecte : Pierre MARMOUGET, Edouard PINET
Lieu : 22, Avenue Émile Zola (angle Avenue du Collège)Date de projet : 1952Date de livraison : 1960Maître d’ouvrage : Georges GracieuxMaîtres d’œuvre : Edouard Pinet, Pierre MarmougetProgramme : séjour + 3 chambresSurface : SHOB 300 m²
Cette curieuse maison a su tirer parti de la longue parcelle sur laquelle elle a été bâtie. Sa situation particulière, à l'intersection des avenues Émile Zola et du Collège, semble avoir défini les principales lignes de sa composition. Aussi, une façade unique tend à articuler les deux axes. Se développant selon une généreuse courbe, elle accompagne le piéton dans sa pérégrination. Ainsi lovée, la maison posée sur une dalle mince à peine surélevée organise ses espaces. Le premier étage, ceint d'une vaste coursive tenant lieu de balcon, résiste aux affronts du soleil, protégé par une symbolique pergola de béton. Le retrait des baies vitrées offre, au rez-de-chaussée, une vaste terrasse couverte et souligne la rotondité de l'édifice. Décollées du plafond par deux rangs de pavés de verre, elles confèrent à l'ensemble une légèreté sans équivoque. À l'arrière, le corps principal est rattrapé par un second volume qu'un voile de béton ajouré tente de rattacher. La finesse des serrureries de l'escalier et un habile jeu de claustras semblent au contraire vouloir les séparer. Cette villa illustre au mieux la fantaisie de l'architecture des années 50. Œuvre de Pierre Marmouget, elle consacre une fois encore le talent de son auteur, décelable dans les jeux d'ombre et de lumière qui animent ses façades.
Localisation
Photos & plans
Villa - image 1 Villa - image 2 Villa - image 3 Villa - image 4 Villa - image 5 Villa - image 6
78 Église Notre-Dame de l'Assomption
Parc
Architecte : René BARATON, Jean BAUHAIN, Marc HÉBRARD
Lieu : Avenue Émile Zola (angle Avenue Saint-François)Date de projet : 1951Date de livraison : 1952Maîtres d’œuvre : Jean Bauhain, Marc Hébrard, René BaratonCollaborateur : A. Trébuchet (céramique), M. Rocher, J. Barillet, ent. (vitraux)
Destinée au culte catholique et offerte aux habitants du quartier du Parc, cette étonnante église interpelle quiconque emprunte l'avenue Émile Zola. Confié à Jean Bauhain, dès le début des années 50, ce projet est pensé avec le concours de ses associés Baraton et Hébrard, largement investis dans la reconstruction du temple protestant. La grande liberté formelle et plastique de ce bâtiment reprend sans contradiction les principes énoncés par l'architecte, pour le projet avorté de reconstruction de Notre-Dame. Fidèle aux influences brésiliennes, cette réalisation affiche clairement ses références. Elle s'apparente à la chapelle Saint-François, érigée par Oscar Niemeyer dans le quartier de Pampulha à Belo Horizonte au Brésil et concilie l'avant-gardisme des voiles autoportants à l'académisme encore bien présent du plan des églises européennes. Ainsi, sur une assise de pierre appareillée, une parabole de béton, confondue dans le classicisme roman de l'ensemble, permet de lire en façade le volume de la nef. Un traitement de céramique plus récent en accentue la présence et mène le fidèle au cœur du sanctuaire. Au nord, un clocher campanile dont la base a été évidée, flanque le parvis. Ce rare compromis entre deux styles diamétralement opposés dévoile une architecture confondue entre l'expression d'un modernisme encore mal assumé et l'application déraisonnée d'un savoir-faire hérité du passé.
Localisation
Photos & plans
Église Notre-Dame de l'Assomption - image 1 Église Notre-Dame de l'Assomption - image 2 Église Notre-Dame de l'Assomption - image 3 Église Notre-Dame de l'Assomption - image 4 Église Notre-Dame de l'Assomption - image 5 Église Notre-Dame de l'Assomption - image 6
79 Villa ”Pomme de pin”
Parc
Architecte : René BARATON, Marc HÉBRARD
Lieu : 73, Avenue du docteur CharcotDate de projet : 1963Maître d’ouvrage : Jean RibeyrolMaîtres d’œuvre : Marc Hébrard, René BaratonProgramme : séjour + 2 chambresSurface : SHOB 120 m²Collaborateur : Jean Bauhain
Située à l'extrême limite du Parc de Royan, cette intrigante villa contraste fortement avec l'architecture de ses homologues de la Belle-Époque. Au prime abord, sa composition générale, somme toute assez commune, tend à en faire oublier la pléiade de petits détails qui lui concède l'essentiel de ses qualités. L'habituel parallélépipède de béton blanc se retrouve ici bouleversé par une pesante annexe en maçonnerie de pierre appareillée, s'accaparant la traditionnelle mise en œuvre du soubassement. Agissant tel un ancrage solide, elle accorde au corps principal une légèreté inattendue. Le retrait du rez-de-chaussée révèle la structure métallique du bâtiment et affranchit du même coup la façade de sa basique fonction porteuse. De larges saillies remplacent ainsi les usuelles parois pleines. Une cloison souple de carreaux de verres enchâssés dans un socle de pierre épouse la forme cylindrique de l'escalier hélicoïdal intérieur. L'accompagnant fidèlement sur toute sa hauteur, elle semble pénétrer la dalle de l'étage pour se transformer en une vaste baie vitrée ouverte sur le balcon. Cette réalisation tardive ne porte curieusement que les deux signatures de Hébrard et Baraton et atteste qu'en matière de références architecturales, les deux hommes sont restés fidèles à leurs choix depuis le début des années 50.
Localisation
Photos & plans
Villa ”Pomme de pin” - image 1 Villa ”Pomme de pin” - image 2 Villa ”Pomme de pin” - image 3 Villa ”Pomme de pin” - image 4 Villa ”Pomme de pin” - image 5 Villa ”Pomme de pin” - image 6
80 Maison de ville ”Héliopolis”
Parc
Architecte : René EVEILLÉ
Lieu : 160, Boulevard Frédéric GarnierDate de projet : 1957Maître d’ouvrage : Henri-Léo JacquesMaîtres d’œuvre : René EveilléProgramme : 2 appartements identiques séjour + 2 chambresSurface : SHOB 2 x 98 m²
Flanqué de part et d'autre par deux mastodontes de pierre et de béton, ce sympathique petit immeuble du boulevard Garnier retiendra l'attention. Le terrain en longueur, sur lequel il est assis, n'est pas sans rappeler la profondeur singulière des parcelles anciennes. Conçu à l'origine pour être une seule habitation, ce bâtiment se divise en deux niveaux identiques, couronnés d'un bandeau tenant lieu de fronton et reliés par un escalier hélicoïdal extérieur. Loin d'en être le plagiat, la composition de l'ensemble reprend, quelques années après, les grandes lignes du projet de Louis Simon en bordure de la plage de Pontaillac, villa « Le Vent du Large ». Le colimaçon inversé, conduit à une coursive en porte-à-faux qui dessert le premier étage. Une dalle mince de béton, pliée selon trois plans, constitue successivement le sol de la terrasse, le mur pignon et la toiture de la maison. Seuls, le traitement particulier des combles, percés de cinq hublots et l'expression plutôt classique du rez-de-chaussée maçonné, confèrent au bâtiment sa réelle singularité. René Éveillé utilise ici des éléments empruntés aux bateaux et aux paquebots et les métamorphose afin d'adapter son projet au contexte hautement balnéaire de la ville.
Localisation
Photos & plans
Maison de ville ”Héliopolis” - image 1 Maison de ville ”Héliopolis” - image 2 Maison de ville ”Héliopolis” - image 3 Maison de ville ”Héliopolis” - image 4 Maison de ville ”Héliopolis” - image 5 Maison de ville ”Héliopolis” - image 6
81 Villa ”vent de sable”
Parc
Architecte : André HOFFELT, Maurice LEGROS
Lieu : 126, Boulevard Frédéric GarnierDate de projet : 1956Date de livraison : 1959Maître d’ouvrage : Madame PhilipakisMaîtres d’œuvre : André Hoffelt, Maurice LegrosProgramme : 1 appartement séjour + 1 chambre et 1 appartement séjour + 2 chambresSurface : SHOB 81 m² + 87 m²
Cette imposante demeure du boulevard Garnier est établie sur une profonde parcelle, également accessible à l'arrière par l'avenue du docteur Charcot. Outre la vue sur la Grande Conche, son orientation offre aux deux appartements qui la composent un ensoleillement quasi-permanent. Reposant sur une fine assise de pierre, le rez-de-chaussée bénéficie, au même titre que l'étage, d'un vaste panorama sur le littoral. Sa position, légèrement en retrait sur trois des faces du bâtiment, cède le pignon latéral à l'envolée d'une vingtaine de marches. Adoptant une mise en œuvre courante dans l'architecture navale, le parallélépipède de l'étage ouvre une étroite saillie et semble aspirer l'escalier. Un large claustra de béton, repris en façade principale, casse les fortes rafales de vent et accompagne le visiteur dans son ascension. Là, le décroché de la façade vitrée alloue la surface amputée à un agréable balcon, couvert par le débord de la toiture. À l'origine, cette coursive ne se déployait qu'aux deux tiers, garantissant un vide contre le mitoyen, destiné à offrir un apport de lumière supplémentaire à l'étage inférieur. Les deux architectes associés, Hoffelt et Legros, ont complètement abandonné le classicisme de l'îlot 2 du boulevard Aristide Briand, dont ils étaient responsables, au profit d'un modernisme mis en évidence dans ce projet.
Localisation
Photos & plans
Villa ”vent de sable” - image 1 Villa ”vent de sable” - image 2 Villa ”vent de sable” - image 3 Villa ”vent de sable” - image 4 Villa ”vent de sable” - image 5 Villa ”vent de sable” - image 6
82 Villa ”Esparros”
Parc
Architecte : André PLANTECOSTE
Lieu : 112, Boulevard Frédéric GarnierDate de projet : 1953Date de livraison : 1955Maître d’ouvrage : Roger MassonnaudMaîtres d’œuvre : André PlantecosteProgramme : séjour + bureau + 3 chambresSurface : SHOB 150 m²
À la frontière entre classicisme et modernisme, cette villa du Parc illustre un parfait compromis des deux tendances les plus en vogue au début de la décennie 50. Aussi, la dualité des styles de ses façades témoigne-t-elle de l'ambiguïté architecturale dont devait être victime son auteur. Posé sur un fin soubassement de pierre, le bâtiment ainsi surélevé profite d'une exceptionnelle vue sur la Grande Conche. Sa composition de plain-pied, la disposition de ses espaces et son traitement discriminatoire font de cette réalisation un projet totalement mono-orienté. Ainsi, la hauteur de la façade principale est doublée par la mise en œuvre d'un magistral tympan dissimulant la pente de la toiture. Ajouré en cinq points équidistants, cet étage de comble prévaut sur l'ensemble. L'ombre d'une pergola de béton, lancée en porte-à-faux au-dessus des baies du séjour, en accentue d'ailleurs la prééminence. Ce brise-soleil confronte la rigueur de sa géométrie à la fermeté du mur de pierre auquel il s'accroche, avant de se prolonger le long du pignon pour abriter le visiteur dans sa quête de l'entrée. À la lecture de ce projet, André Plantecoste, entrepreneur et non architecte, paraît ignorer les fraîches références d'Outre-Atlantique. Il tente toutefois d'inscrire sa production dans le modernisme effréné dont Royan est désormais le théâtre.
Localisation
Photos & plans
Villa ”Esparros” - image 1 Villa ”Esparros” - image 2 Villa ”Esparros” - image 3 Villa ”Esparros” - image 4 Villa ”Esparros” - image 5 Villa ”Esparros” - image 6
83 Villa ”Mariate”
Parc
Architecte : Paul DREMILLY
Lieu : 106, Boulevard Frédéric GarnierDate de projet : 1955Maître d’ouvrage : Eugène MagnanMaîtres d’œuvre : Paul DremillyProgramme : 2 appartements identiques séjour + 1 chambreSurface : SHOB 2 x 126 m²Collaborateur : Louis Simon, architecte conseil
Imposante bâtisse érigée le long du boulevard Garnier, la villa « Mariate » incarne un étonnant compromis d'architecture. Elle assimile les agréables dimensions des villas Belle-Époque aux notions de confort et de rentabilité prônées par le mouvement moderne. Composée de deux volumes imbriqués l'un dans l'autre, la maison organise ses espaces en fonction du soleil. Pourtant, le corps principal constitué d'un simple cube de béton blanc s'alignant sur le tracé de la rue semble ne pas en tenir compte. Dans le souci d'inonder au maximum son projet de lumière, l'architecte en a creusé l'angle le mieux exposé. Un imaginaire parallélépipède rectangle vient s'encastrer dans la façade et extirpe le premier étage de la pénombre qui lui était destinée. Ainsi constitué, un balcon encadré d'une dalle continue de béton s'élance vers l'océan et octroie au rez-de-chaussée une terrasse semi-couverte. Dans l'angle opposé, au nord, les circulations ont été regroupées en un volume distinct, décalé d'un demi-niveau par rapport au reste. Le traitement des enduits et sa mise en œuvre particulière promènent le regard, du jardin jusqu'à la toiture. Deux petites lucarnes carrées permettent d'y situer la cage d'escalier au sommet de laquelle un curieux mirador a été perché, telle une tourelle du début du siècle. Outre cette réalisation notable, on doit à Paul Dremilly les plans du 30, rue du docteur Paul Métadier et l'audacieux projet du temple protestant de Saint-Georges-de-Didonne.
Localisation
Photos & plans
Villa ”Mariate” - image 1 Villa ”Mariate” - image 2 Villa ”Mariate” - image 3 Villa ”Mariate” - image 4 Villa ”Mariate” - image 5 Villa ”Mariate” - image 6
84 Villa ”Ombre blanche”
Parc
Architecte : Claude BONNEFOY
Lieu : 70, Boulevard Frédéric GarnierDate de projet : 1958Date de livraison : 1959Maître d’ouvrage : Robert TaunayMaîtres d’œuvre : Claude BonnefoyProgramme : séjour + salle à manger + bureau + 3 chambresSurface : SHOB 300 m²Collaborateur : Taunay maçonnerie, Prainville menuiserie et ameublement
Implantée sur une parcelle profonde située sur le boulevard Garnier et accessible à l'arrière par l'avenue du Parc, la Villa « Ombre Blanche » domine la Grande Conche. Flanqué de deux bâtiments emblématiques de la Belle-Époque, son plan en forme de « U » inégal s'ouvre généreusement sur le jardin. Le contraste marqué des volumétries et des matériaux n'est pas sans rappeler celui de la très célèbre Villa « Savoye » de Le Corbusier. Mais, l'utilisation des pilotis, des enduits lisses et blancs, de l'escalier hélicoïdal et surtout la façade biseauté et le toit à double pente inversée témoignent aussi des influences de l'architecture brésilienne des années 40, initiée par Oscar Niemeyer ou Affonso Reidy. La façade, ouverte sur l'océan, composée d'un soubassement de grès rouge rehaussé d'un volume symétrique maintenu en porte-à-faux par de fins pilotis métalliques, est comparable au design des postes de radio de la même époque. La taille des fenêtres a été définie selon la hiérarchie des pièces auxquelles elles font référence et un exceptionnel jeu de polychromie achève le traitement de la lumière. Projetée par l'architecte Bonnefoy, réalisée pour et par Monsieur Taunay puis meublée avec la collaboration de l'entreprise Prainville, cette réalisation caractéristique du mouvement moderne demeure l'une des plus remarquables de Royan.
Localisation
Photos & plans
Villa ”Ombre blanche” - image 1 Villa ”Ombre blanche” - image 2 Villa ”Ombre blanche” - image 3 Villa ”Ombre blanche” - image 4 Villa ”Ombre blanche” - image 5 Villa ”Ombre blanche” - image 6
85 Hôtel le Trident Thyrsé
Parc
Architecte : Henri ZIMMER
Lieu : 66, boulevard Frédéric GarnierDate de projet : 1952-53Date de livraison :  1955Maître d’ouvrage : Dr Soulé-RuthMaîtres d’œuvre : Henri ZimmerProgramme : hall de réception + office + bureau + 14 chambres Surface : SHOB sous-sol + 3 étages de 221 m² chacun
Plutôt que de reconstruire une résidence d’agrément à l’emplacement de sa villa « Montcassel » détruite par le bombardement du 5 janvier 1945, les propriétaires décident, au lendemain de la Guerre, d’ériger ici une institution hôtelière et confie le projet à l’architecte Henri Zimmer. L’immeuble achevé en 1955 est rebaptisé « Le Trident Thyrsé », en hommage aux attributs des dieux grecs Poseïdon et Dionysos. L’architecture, qui offre des espaces d’accueil et de réception au rez-de-chaussée ainsi que quatorze chambres réparties dans les deux étages, a été pensée pour permettre à chaque résident de bénéficier d’une large vue sur la grande conche et d’un balcon tourné vers le soleil. Construites selon un plan à redents, les deux ailes du bâtiment préservent chaque loggia des regards voisins. Le jeu des refends encadre les balcons d’un voile de béton tandis que se détachent, derrière les larges baies-vitrées, les poteaux de la structure volontairement implantés pour ouvrir le niveau de réception à la lumière. Soucieux de préserver les lieux tels que les avaient souhaités leurs aïeux, les actuels propriétaires ont conservé les dispositions architecturales d’origine, jusqu’à restituer le fond coloré des loggias. À l’intérieur, ils ont patiemment reconstitué l’atmosphère d’antan, en complétant le mobilier d’origine par les nombreuses pièces de design « cinquante » qu’ils ont chinées avec passion depuis vingt ans.
Localisation
Photos & plans
Hôtel le Trident Thyrsé - image 1 Hôtel le Trident Thyrsé - image 2 Hôtel le Trident Thyrsé - image 3 Hôtel le Trident Thyrsé - image 4 Hôtel le Trident Thyrsé - image 5 Hôtel le Trident Thyrsé - image 6
86 Petit immeuble ”La Perrinière”
Parc
Architecte : Marcel BARNIER, J. DAUGROIS
Lieu : 1, Rue Albert Barthe (angle Boulevard Frédéric Garnier)Date de projet : 1955Maître d’ouvrage : Paul PerrineauMaîtres d’œuvre : J. Daugrois, Marcel BarnierProgramme : 3 logements
Établi à la façon d'une confortable villa Belle-Époque, au centre d'une agréable parcelle d'angle, ce petit immeuble apparaît au début du boulevard Garnier tel un écran de télévision rivé sur le large. Composé de deux volumes encastrés, il regroupait à l'origine trois appartements. Sa composition épurée, sa répartition sur trois niveaux équivalents et ses vues mono-orientées sont autant de détails qui rapprochent ce projet de ceux d'architectes brésiliens, tels Niemeyer ou Reidy. Le rez-de-chaussée, en retrait sur trois des quatre faces, constitue un piédestal solide aux deux étages supérieurs. Ceux-ci, encadrés par une dalle de béton, forment un volume monumental, dont la façade principale a été biseautée, sans doute pour favoriser la pénétration de la lumière. Les parois et baies vitrées ont été repoussées pour laisser place à deux balcons étendus sur toute la largeur du bâtiment. En haut, un minutieux claustra, chef-d'œuvre de maçonnerie, tend à rendre à l'habitation cet espace emprunté, en refermant symboliquement le volume amputé. Daugrois et Barnier, architectes royannais ayant pris part à la Reconstruction, signent ici une réalisation originale. On doit également à Barnier le projet de l'école du Centre et une active participation dans le cadre de l'opération de lotissement de l'îlot 16.
Localisation
Photos & plans
Petit immeuble ”La Perrinière” - image 1 Petit immeuble ”La Perrinière” - image 2 Petit immeuble ”La Perrinière” - image 3 Petit immeuble ”La Perrinière” - image 4 Petit immeuble ”La Perrinière” - image 5 Petit immeuble ”La Perrinière” - image 6
87 Maison de ville mitoyenne ”Brise-Lames”
Parc
Architecte : Georges VERGNAUD
Lieu : 4 et 6, Boulevard Frédéric GarnierDate de projet : 1950Date de livraison : 1953Maître d’ouvrage : Docteur Martial MailhetardMaîtres d’œuvre : Georges VergnaudProgramme : salon + salle à manger + boudoir + 3 chambresSurface : SHOB 2 logements mitoyens de 250 m² chacunCollaborateur : Monsieur Courrèges
Sise à la lisière du quartier du Parc, sur une parcelle accessible par le boulevard Garnier et la rue des Semis, cette imposante demeure paraît avoir défié le temps et résisté avec pugnacité aux troubles des bombardements. Pourtant, il n'en est rien. Loin des dogmes naissants du modernisme, ce projet reprend à la lettre les enseignements classiques dispensés aux Beaux-Arts. La division de l'ensemble en deux logements identiques justifie l'emploi d'une symétrie très affirmée. Celle-ci confère d'ailleurs à la façade sa remarquable monumentalité, accentuée par l'utilisation de corniches et encadrements de fenêtres en pierre de taille. La composition élémentaire de l'ensemble est toutefois animée par un vaste hublot divisé. En retrait, deux balcons ouverts au littoral offrent aux propriétaires une loge inégalable pour apprécier à couvert l'union de la ville et de la Grande Conche. En guise de linteau, un bas relief original, proche de ceux du boulevard Aristide Briand, orne l'entrée et reprend le thème usuel de la mer. Georges Vergnaud, issu comme tant d'autres d'une formation on ne peut plus académique, cimente ici ses principaux acquis. Pourtant, le petit chef-d'œuvre d'architecture qu'il offre à la rue des Sirènes témoigne d'un changement brutal et radical de ses références.
Localisation
Photos & plans
Maison de ville mitoyenne ”Brise-Lames” - image 1 Maison de ville mitoyenne ”Brise-Lames” - image 2 Maison de ville mitoyenne ”Brise-Lames” - image 3 Maison de ville mitoyenne ”Brise-Lames” - image 4 Maison de ville mitoyenne ”Brise-Lames” - image 5 Maison de ville mitoyenne ”Brise-Lames” - image 6
88 Marché central
Centre
Architecte : Bernard LAFFAILLE, André MORISSEAU, Louis SIMON
Lieu : Place du marché centralDate de projet : 1946Date de livraison : 1956Maître d’ouvrage : Ville de RoyanMaîtres d’œuvre : André Morisseau, Louis SimonProgramme : marché couvert de détail et étals extérieurs pour le marché de « plein vent »Surface : 4000 m²Collaborateur : B. Laffaille et R. Sarger, ing. - UFE (union française des entreprises), M. Nauze et P. Juglas, ent.
Point d'orgue de la perspective du boulevard Aristide Briand, le marché central trouve très tôt sa place définitive dans la composition urbaine de Claude Ferret. Le projet, confié aux architectes Morisseau et Simon, acquiert son élégance avec la participation de l'ingénieur Laffaille qui œuvre à Notre-Dame. Laffaille remporte la consultation en proposant de mettre en œuvre un unique voile mince de béton plissé (9 à 10 cm). La forme de coquillage libère un vaste espace destiné à la vente. En façade, un remplissage béton et verre assure l'étanchéité de l'ensemble. De grands auvents indépendants de la coque s'élancent pour marquer les entrées. Les treize voûtes sont arrimées au sol par des câbles pour maintenir l'édifice ceinturé et débordent en toiture pour protéger les bancs de « plein vent » des commerçants. En guise de clef de voûte, un traitement de pavés de verre offre à la halle un subtile éclairage zénithal. Si l'investissement des architectes reste discret, celui de l'ingénieur se traduit par une prouesse technique sans équivalent à Royan. Le marché annonce la réalisation de Notre-Dame, avec la même dose d'innovation administrée par Bernard Laffaille et avec une continuité assurée, après sa mort en 1955, par René Sarger. Le Marché de Royan ouvre la voie à un certain nombre de projets qui reprendront ses lignes, soit à l'identique, pour le cirque d'État de Bucarest, soit en s'en inspirant, pour le projet du marché couvert de Nanterre (non réalisé).
Localisation
Photos & plans
Marché central - image 1 Marché central - image 2 Marché central - image 3 Marché central - image 4 Marché central - image 5 Marché central - image 6
89 Îlots 1, 2, 3 et 4
Centre
Architecte : Claude FERRET, André MORISSEAU, Louis SIMON
Lieu : Boulevard Aristide BriandDate de projet : 1945Date de livraison : 1956Programme : ensemble d'habitations, de commerces et d'hôtels restaurantsCollaborateur : G. Anibali, E. Terrillon, J. Bauhain, R. Baraton, M. Hébrard, G. Gauthier, J.L. Guillaume, J. et L. Gérard, P. Laurent, G. Vergnaud, A. Jourdain, G. Métivet, M. Legros, G. Hoffelt, G. Maroleau, R. Lavoine, P. Premilly, L. Belasco
Projeté comme une perspective monumentale sur l'estuaire, le boulevard Aristide Briand constitue la première opération d'envergure de la Reconstruction. Il est érigé sur l'ancien lit du ruisseau du Font de Cherves. Implanté entre le Marché Central et l'actuelle place Charles de Gaulle, le programme prévoit des commerces, des hôtels, du logement collectif en façade et des habitations individuelles accessibles à l'arrière par une voie de desserte. La composition classique de l'ensemble, avec un rez-de-chaussée destiné aux activités commerciales, deux étages « nobles » d'habitation avec balcon filant et un étage d'attique reprend de façon fidèle les réalisations des années trente, marquées par un retour à la monumentalité et au classicisme. Sollicités très tôt, les architectes construisent en hâte devant la pression exercée par la municipalité et les sinistrés en attente d'un logement. L'utilisation de la pierre de taille pour souligner les porches, corniches et encadrements, de l'enduit sur la façade, permet aux architectes de masquer toute trace de ciment ou de béton. L'expression graphique des bas-reliefs inscrit sans conteste cette réalisation dans la lignée créatrice d'avant-guerre. Pour affirmer la relation forte entre la ville et l'Océan, des fonds marins, par série de deux, ornent les portiques de la ville d'hiver. L'architecte Vergnaud a également choisi ce type de mise en scène architecturale pour réaliser la villa Brise-Lames dans le Parc.
Localisation
Photos & plans
Îlots 1, 2, 3 et 4 - image 1 Îlots 1, 2, 3 et 4 - image 2 Îlots 1, 2, 3 et 4 - image 3 Îlots 1, 2, 3 et 4 - image 4 Îlots 1, 2, 3 et 4 - image 5
90 Villa
Centre
Architecte : H.M. ROHARD
Lieu : 4, Rue du Président Poincaré (angle Rue Saintonge)Date de projet : 1955Date de livraison : 1959Maître d’ouvrage : Madame Veuve GuillotProgramme : séjour + 2 chambresSurface : SHOB 95 m²
Non loin du centre actif de Royan, ce projet profite pourtant du calme de l'angle des rues du Président Poincaré et de Saintonge. Coincé dans un des angles de la parcelle, le bâtiment économise le jardin au maximum. La qualité de sa mise en œuvre est due à l'expression particulière de son soubassement. Alors que l'architecture moderne a pour habitude d'effacer le socle de toute construction afin d'en accentuer la légèreté, l'architecte prend ici le parti d'asseoir l'étage sur un rez-de-chaussée omniprésent. Traité en maçonnerie de pierre, le niveau de plain-pied avec la rue étend son emprise au sol au-delà des limites du parallélépipède de béton qu'il supporte. Par ailleurs le volume de l'étage, coupé en biseau, lance son léger porte-à-faux sur la rue et impose à la façade un étroit retrait qu'elle alloue à un large balcon. À l'origine non bâtie, la dalle de toiture du garage offrait une vaste terrasse au palier des chambres. Outre les baies, somme toute assez ordinaires, la cage d'escalier est repérée en façade par six lucarnes. Cette réalisation, un peu différente des projets royannais de la même époque, est signée par l'architecte local Rohard, pourtant peu investi dans la Reconstruction de sa ville.
Localisation
Photos & plans
Villa - image 1 Villa - image 2 Villa - image 3 Villa - image 4 Villa - image 5 Villa - image 6
91 Temple, centre protestant
Centre
Architecte : René BARATON, Jean BAUHAIN, Marc HÉBRARD
Lieu : Rues d'Aunis, Alsace-Lorraine et PelletonDate de projet : 1953Date de livraison : 1956Maître d’ouvrage : Église Réformée de FranceMaîtres d’œuvre : Jean Bauhain, Marc Hébrard, René BaratonProgramme : centre de l'église réformée, le diaconat, l'œuvre de la jeunesse, salle de réunion et maison du pasteurCollaborateur : A. Bourdonnais, archi. - J. Morel, ing.- Plazzi, Perse et Vrillaud, ent.
Introduite à Royan dans le courant du XVIe siècle, l'église réformée possédait, avant-guerre, trois lieux de culte. Deux furent détruits en 1945, donnant droit à des dédommagements versés en une seule indemnité. Naquit alors l'idée d'engager la construction d'un ensemble cultuel baptisé « centre protestant », regroupant le temple, le diaconat, l'œuvre de la Jeunesse, une salle de réunion et la maison du pasteur. Le tout sur une parcelle en marge des grands axes touristiques, mais à proximité de Notre-Dame, créant ainsi une zone spirituelle. Le Centre surplombe le cimetière protestant, épargné miraculeusement par les bombardements. Marc Hébrard, protestant, assisté de son associé et ami catholique, Jean Bauhain, tente de remédier aux contraintes du terrain par un projet en retrait, accordant à la façade une monumentalité inespérée. Temple et presbytère sont assis sur une terrasse en exèdre qui domine le jardin repoussé en partie basse. Un petit bâtiment associatif et la maison du pasteur en matérialisent les limites, prolongés par l'audacieuse galerie du parvis. Des piliers de métal rehaussés de bleu ancrent la fine toiture des coursives. De larges percées et le clocher élèvent le regard vers le ciel. Marc Hébrard réalise ici un édifice qui montre une parfaite continuité avec les nombreux temples de la région et une subtile modernité marquée notamment par l'heureuse courbe de la galerie du parvis. L'architecture balnéaire affirme ici sa polyvalence et son incomparable adaptabilité.
Localisation
Photos & plans
Temple, centre protestant - image 1 Temple, centre protestant - image 2 Temple, centre protestant - image 3 Temple, centre protestant - image 4
92 Église Notre-Dame
Centre
Architecte : Guillaume GILLET, Bernard LAFFAILLE
Lieu : Rue des CongrèsDate de projet : 1954Date de livraison : 1958Maître d’ouvrage : Ville de RoyanMaîtres d’œuvre : Guillaume GilletProgramme : église paroissiale de 2 000 placesSurface : 900 m2Collaborateur : B. Laffaille, M. Ou-Tseng et R. Sarger, ing. - M. Hébrard, archi. - Delau et fils, H. et J-B. Martin-Granel et C. Idoux, maîtres verriers
« Je veux que Royan ne soit pas une ville couchée, mais une ville debout, redressez-la par la silhouette de l'église ». Voilà en quels termes, le maire de Royan, Max Brusset, oriente le projet de Notre-Dame soumis par l'architecte Guillaume Gillet. Inspiré par l'ingénieur Bernard Laffaille, sommité mondiale, et assisté par son successeur René Sarger, l'architecte parisien dessine un plan comprenant 24 piliers en V ceinturant une ellipse de 40 mètres de long par 20 de large, tandis que trois autres V hissent le clocher à 55 mètres de hauteur. La couverture, un voile mince (moins de 8 cm) de béton coulé, en forme de selle de cheval, est tendue sur les piliers. Le chœur et la nef, dégagés, bénéficient d'une hauteur sous voûte d'environ 30 mètres et peuvent accueillir jusqu'à 2 000 personnes. Les vitraux, signés Henri Martin-Granel, ont été imaginés par Guillaume Gillet, lui-même, qui dessine tout jusqu'aux porte-cierges ! Décédé en 1987, il est enterré dans l'église en 1996. Son style, proche des églises gothiques et le béton laissé brut, placent Notre-Dame en marge des projets réalisés par l' « École de Royan ». Elle illustre le courant du rationalisme lyrique par le soin apporté aux effets que l'on retrouve aussi sur le Marché central. Grand prix de Rome en 1946, Guillaume Gillet signe ici sa première réalisation. Outre ce projet qui a lancé sa grande carrière nationale, il participera à l'élaboration de plusieurs îlots de qualité à Royan.
Localisation
Photos & plans
Église Notre-Dame - image 1 Église Notre-Dame - image 2 Église Notre-Dame - image 3 Église Notre-Dame - image 4 Église Notre-Dame - image 5 Église Notre-Dame - image 6
93 Presbytère
Centre
Architecte : René BARATON, Jean BAUHAIN, Marc HÉBRARD
Lieu : 1, Rue de FoncillonDate de projet : 1954Date de livraison : 1957Maître d’ouvrage : Ville de RoyanMaîtres d’œuvre : Jean Bauhain, Marc Hébrard, René BaratonProgramme : 1 appartement séjour + 2 chambres et 1 appartement séjour + salle à manger + bureau + 5 chambresSurface : SHOB 75 m² + 205 m²
Le presbytère de Royan semble s'être échoué sur le récif d'une vaste parcelle en surplomb de la rue de Foncillon, non loin du phare éteint, évoqué par Notre-Dame. Alors que le sous-sol reste visible depuis la rue, le premier étage du bâtiment se retrouve de plain-pied avec le terrain situé à l'arrière et constitue finalement le rez-de-chaussée réel de la construction. En façade, le niveau inférieur est traité à la manière d'un mur de soutènement, en maçonnerie de pierre appareillée. L'habitation est, quant à elle, blottie dans un imposant volume de béton blanc dont la toiture à double pan inversé fait curieusement penser à la carène d'un bateau. Côté ville, les ouvertures sont de taille réduite et tentent de se camoufler derrière des claustras. Côté jardin, la façade en retrait s'ouvre généreusement sur l'extérieur et supporte un long balcon couvert. Les pignons ont été dessinés dans le même sens : le nord demeure hermétique à l'animation du parvis de l'église tandis que le petit appartement situé au sud offre ses larges baies aux rayons du soleil. Le cabinet Bauhain, Baraton et Hébrard n'a plus besoin d'être présenté tant sa production royannaise des années 50 est riche et diversifiée. Il fait ici preuve d'abnégation en acceptant de réaliser la cure alors que c'est Guillaume Gillet qui construit l'exceptionnel sanctuaire pour lequel le célèbre trio avait été pressenti.
Localisation
Photos & plans
Presbytère - image 1 Presbytère - image 2 Presbytère - image 3 Presbytère - image 4 Presbytère - image 5
94 Îlot 22 N
Centre
Architecte : Maurice MORGUET
Lieu : Rues du Centre, des Bains, Garnier et des CongrèsDate de projet : 1954Date de livraison : 1958Programme : 9 immeubles d'habitation avec commerces au rez-de-chaussée + jardin + garageCollaborateur : Louis Belasco
Bénéficiant du vaste dégagement du parvis de l'église Notre-Dame, la portion nord de l'îlot numéro 22 étend son unique bâtiment le long de la rue des Congrès. Utilisant la déclivité du terrain, les architectes jouent avec les demi-niveaux afin d'identifier les commerces et les parties communes des logements. Établi comme une longue barre linéaire, l'ensemble a été traité sans distinction de propriété. Le rez-de-chaussée, scandé par les vitrines des commerces, offre un accès indépendant à chacune des parcelles. Toutefois, un escalier oblique cueille parfois le badaud pour le mener sans détour à une terrasse de plain-pied. À l'étage, une coursive, couverte par le débord de la toiture, profite du retrait de la façade pour prolonger les espaces intérieurs. Son garde-corps, doublé de plaques translucides, confère au projet un aspect ludique et non conventionnel. À l'arrière, accessible par la rue du Centre, chaque habitation profite d'un petit bout de jardin et d'un garage. À l'extrémité sud de l'îlot, le bâtiment franchit cette desserte en un audacieux portique et vient jouxter la façade très classique de la rue Garnier. Maurice Morguet, unique responsable du chantier des îlots parallèles 22N et 22S, va pourtant réaliser deux projets diamétralement opposés par leur style tout autant que par leur mise en œuvre.
Localisation
Photos & plans
Îlot 22 N - image 1 Îlot 22 N - image 2 Îlot 22 N - image 3 Îlot 22 N - image 4 Îlot 22 N - image 5 Îlot 22 N - image 6
95 Îlot 85
Centre
Architecte : Roger MIALET
Lieu : Rues de Foncillon, du docteur Paul Métadier et des CongrèsDate de projet : 1957Date de livraison : 1961Programme : petits collectifs et maisons de ville en bandeCollaborateur : R. Villa (archi. d'opération), R. Baraton, J. Bauhain, M. Hébrard
Vaste chantier constituant la jonction entre les quartiers du Centre et de Foncillon, cet îlot a été divisé en deux opérations distinctes, séparées par une vaste coulée verte. Il est marqué par sa façade sur la rue Paul Métadier qui, établie en gradient, oppose la rigueur des lignes de son soubassement en bossage à la fluidité de ses surfaces enduites. Côté avenue des Congrès, l'horizontalité des garde-corps est accentuée par un épais couronnement de béton qui dissimule élégamment la toiture-terrasse. Le traitement particulier du bâtiment d'angle participe à la qualité de la place Schumann. Tandis que des piliers de béton redoublent la paroi du rez-de-chaussée pour supporter un balcon, des pilotis métalliques soutiennent la coursive du second étage, abritée par un élégant brise-soleil, cher à Roger Mialet. En retrait, un troisième niveau parfait l'ensemble et reprend les principes d'allègement énoncés précédemment. Sa situation éminente lui permet en outre de bénéficier d'une vaste terrasse périphérique. Réunissant quelques-uns des grands noms de la Reconstruction, cette réalisation affiche légitimement ses références modernes et témoigne des différentes techniques de mise en œuvre employées.
Localisation
Photos & plans
Îlot 85 - image 1 Îlot 85 - image 2 Îlot 85 - image 3 Îlot 85 - image 4 Îlot 85 - image 5 Îlot 85 - image 6
96 Îlot 106
Centre
Architecte : Roger MIALET
Lieu : Rues Garnier, Gambetta, des Congrès et du docteur Paul MétadierDate de projet : 1956Date de livraison : 1961Programme : 5 unités, immeubles collectifs, habitations et commerces
Ensemble urbain composé de cinq opérations distinctes, l'îlot 106 est disposé perpendiculairement à l'avenue Gambetta. Occupée par des bâtiments R+2 et R+3 reliés entre eux par des portiques, chaque parcelle est également accessible par une voie de desserte. Au sud, la façade sur la place Schumann est colorée et inscrite en retrait dans un cadre dont la partie supérieure est rythmée par un jeu de brise-soleil. Sur les parois latérales, des cadres traités en saillies contiennent des balcons, tandis qu'à l'ouest, une originale vitrine émerge du soubassement de pierre. Les quatre autres ensembles, pour le moins semblables, sont caractérisés par une forte séparation des étages due à la mise en œuvre systématique de terrasses. Les serrureries, distinctes de leurs rambardes, l'emploi de motifs et de pergolas, sont autant de détails conférant au projet sa rare qualité. Au nord, l'expression linéaire des ouvertures et l'emploi du bossage en partie basse, renforcent l'horizontalité générale de la composition. Roger Mialet, formé dans les ateliers parisiens d'Eugène Beaudouin, se verra confier la responsabilité des îlots 106, 85 et 126 et reconstruira ainsi l'essentiel du quartier de Foncillon, en apportant sa touche raffinée, reconnaissable par les effets d'ombre et de lumière créés par les brise-soleil, véritable signature de l'architecte.
Localisation
Photos & plans
Îlot 106 - image 1 Îlot 106 - image 2 Îlot 106 - image 3 Îlot 106 - image 4 Îlot 106 - image 5
97 Palais des congrès
Centre
Architecte : Jacques BRUNEAU, Adrien COURTOIS, Claude FERRET, Pierre MARMOUGET
Lieu : Façade de FoncillonDate de projet : 1954Date de livraison : 1957Maître d’ouvrage : Ville de RoyanMaîtres d’œuvre : Adrien Courtois, Claude Ferret, Jacques BruneauProgramme : salle des fêtes, salles d'exposition, restaurant, bar, salle de banquet et appartement de fonctionCollaborateur : J. Thomas, ing. - France et Colonies et Ateliers Prouvé, ent.
Le Palais des Congrès est implanté à l'emplacement de l'ancien casino de Foncillon, détruit le 5 janvier 1945. Le programme s'avère laborieux à établir puisque la ville de Royan est l'une des premières à se doter d'un tel équipement. Le rez-de-chaussée se compose d'un grand hall desservant la salle polyvalente des congrès et les galeries de circulation destinées à recevoir des expositions. Le vaste restaurant s'ouvre à l'étage sur un balcon surplombant la mer. Quelques salles plus petites réservées aux commissions, un appartement de fonction et des servitudes achèvent l'ensemble. Le tout s'inscrit dans un parallélépipède élevé sur pilotis, soutenu par un audacieux système de consoles maintenues en porte-à-faux, et visible en se plaçant sur les côtés de l'édifice. La grande salle de spectacle épouse librement la forme d'une rotonde. Elle bénéficie des jeux d'ombre et de lumière offerts par les panneaux perforés en aluminium, tout droit sortis des ateliers Prouvé de Maxéville, complétés par le mur de scène percé d'ouvertures carrées. L'utilisation de claustras, de hublots, de pilotis et l'incomparable traitement des circulations sont autant de témoins confirmant le concours avéré de Pierre Marmouget dans l'élaboration de ce projet. Bien altéré par l'ajout d'une façade vitrée et d'une annexe à l'arrière, cet édifice emblématique, proche du Yacht Club de Pampulha au Brésil, fait actuellement l'objet d'une réflexion pour sa restauration.
Localisation
Photos & plans
Palais des congrès - image 1 Palais des congrès - image 2 Palais des congrès - image 3 Palais des congrès - image 4 Palais des congrès - image 5
98 Îlot 46
Centre
Architecte : Louis SIMON
Lieu : Boulevard Thiers et Allée des EspagnolsDate de projet : 1954Date de livraison : 1962Programme : petits collectifs et maisons de villeCollaborateur : R. Baraton, J. Bauhain, M. Hébrard, L. Basalo
Réparti en trois opérations bien distinctes, l'îlot numéro 46 s'étend du port jusqu'à la plage de Foncillon en longeant la côte. L'emploi d'une architecture type « nid d'abeille » confère aux façades une rigueur orthogonale dans laquelle prédominent toutefois les lignes horizontales. Les garde-corps continus courent sur toute la longueur des bâtiments et alternent des parties pleines en béton et des parties vides protégées par un « barreau-dage » vertical. Traités en saillies, balcons et loggias prolongent les appartements sous les jeux d'ombre des brise-soleil. La structure porteuse, révélée par l'affirmation d'un système poteau-poutre apparent, scande la linéarité de l'ensemble. Le rez-de-chaussée surélevé est, quant à lui, caractérisé par une succession de terrasses dissimulées sous une pergola infinie. Seul, le troisième projet diffère complètement des précédents. Profitant de la pente du terrain, il déploie son plan triangulaire dans la patte-d'oie achevant le boulevard Thiers. Telle la proue d'un bateau scindant les flots, l'ouvrage sépare les villes d'hiver et d'été. Tandis que le trio Bauhain, Baraton et Hébrard assure la réalisation du bâtiment jouxtant le Palais des Congrès, Basalo prend à sa charge la reconstruction de la barre principale et Simon, celle de l'ancien Café des bains.
Localisation
Photos & plans
Îlot 46 - image 1 Îlot 46 - image 2 Îlot 46 - image 3 Îlot 46 - image 4 Îlot 46 - image 5
99 Îlots 17 et 18, front de mer
Centre
Architecte : Claude FERRET, André MORISSEAU, Louis SIMON
Lieu : Front de MerDate de projet : 1950Date de livraison : 1956Collaborateur : R. Perrier, F. Ferrier, R. Tagini, P. Daurel, H. Zimmer, G. Mélicourt
Le Front de Mer, qui s'étend sur plus de 600 mètres, constitue la plus grande opération urbaine de la Reconstruction. Orientées perpendiculairement à l'axe du boulevard Aristide Briand, les deux barres courbées constituent le corps principal de la cité d'été et abritent, jusqu'en 1985, un exceptionnel Casino circulaire. Tels deux bras ouverts sur l'océan, la courbe du Front de Mer épouse la Grande Conche. Confié par Claude Ferret à ses adjoints Morisseau et Simon, le projet regroupe des commerces en rez-de-chaussée et du logement sur quatre étages. La composition, encore fidèle aux enseignements classiques, annonce les premières manifestations des influences corbuséennes et brésiliennes. Un niveau de duplex couronne le bâtiment. En façade, balcons et loggias créent une continuité monumentale, tandis que les parois rouges, sorties des ateliers Prouvé, rappellent la polychromie de la Caserne des pompiers de Bordeaux, construite par Claude Ferret, Adrien Courtois et Yves Salier, en 1954. Au sol, de larges percées permettent de conserver l'accès au littoral depuis le centre-ville et de créer des liaisons urbaines entre la station balnéaire et la ville d'hiver. La distinction est soulignée par la différence de toiture, en terrasse face à la mer, traditionnelle vers la ville. Un gigantesque portique reliait à l'origine les deux îlots et permettait de circuler à couvert. Longtemps critiqué par les Royannais, ce dernier sera supprimé en 1985, en même temps que le Casino.
Localisation
Photos & plans
Îlots 17 et 18, front de mer - image 1 Îlots 17 et 18, front de mer - image 2 Îlots 17 et 18, front de mer - image 3 Îlots 17 et 18, front de mer - image 4 Îlots 17 et 18, front de mer - image 5 Îlots 17 et 18, front de mer - image 6
100 Auditorium
Centre
Architecte : Marcel CANELLAS
Lieu : Front de MerDate de projet : 1960Date de livraison : 1961Maître d’ouvrage : Ville de RoyanMaîtres d’œuvre : Marcel CanellasProgramme : scène + 2 dépôts
Initialement, cet exceptionnel auditorium prenait part à un vaste programme architectural composé d'un petit square, d'une galerie marchande et d'une aire d'audition destinée aux spectateurs. Son plan en ogive, proche de la queue d'un avion, n'est que peu perceptible. Toutefois, sa voûte, tel un immense coquillage, dont le cintre a été orné d'une mosaïque aux couleurs de Royan, oriente le regard au cœur de l'édifice. Sa mise en œuvre novatrice et sa grande portée semblent curieusement inspirées de la chapelle Saint-François à Pampulha, de l'architecte brésilien Oscar Niemeyer. La scène, posée sur une solide assise de pierre, bénéficie pleinement des qualités acoustiques offertes par la forme évasée de la toiture. Par ailleurs, son orientation atténue au maximum les bruits en provenance de la plage. À l'arrière, une petite annexe destinée aux coulisses, ampute la parfaite courbure de l'édifice et déploie une large fresque moderne visible de la Grande Conche. Un mur couvert de carreaux faïencés sert de support à un dessin géométrique rappelant les compositions linéaires de Piet Mondrian. De profil, cet ajout semble empêcher l'audacieux porte-à-faux de sombrer et rétablit ainsi l'équilibre visuel du projet. Marcel Canellas livre ici sa dernière réalisation d'envergure, dans le cadre de la Reconstruction de Royan. Il témoigne à travers cette réalisation d'une assimilation raisonnée des références internationales.
Localisation
Photos & plans
Auditorium - image 1 Auditorium - image 2 Auditorium - image 3 Auditorium - image 4 Auditorium - image 5 Auditorium - image 6 Auditorium - image 7
101 Galerie Botton
Centre
Architecte : Armand JOURDAIN, Henri-Pierre MAILLARD
Lieu : Boulevard de la GrandièreDate de projet : 1954Date de livraison : 1956Maître d’ouvrage : Ville de RoyanMaîtres d’œuvre : Armand Jourdain, Henri-Pierre MaillardProgramme : galerie commerciale
Visible au rond-point de la Poste, la sinuosité de cette surprenante galerie commerciale apparaît aujourd'hui largement parasitée par tous les stands d'exposition qui lui ont été annexés. Elle reprend, dès 1956, son patronyme d'avant guerre, hérité du jeune ingénieur Botton qui, après avoir créé le casino, fut le premier, en 1847, à proposer un plan d'embellissement pour la nouvelle ville balnéaire. Ici, le projet est un peu particulier et n'est pas le résultat de la simple référence à l'architecture brésilienne tant revendiquée. Il s'apparente véritablement à un pastiche. Cette copie reprend largement, avec une fidélité scrupuleuse, les lignes du pavillon du jeune architecte brésilien, Francisco Bolhona, destiné à recevoir une source thermale. Constitué d'une armature de béton armé très libre, flottant sur une succession de poteaux extérieurs disposés en 8 et doublée d'une légère paroi vitrée, ce bâtiment n'est pas sans rappeler le caractère ludique de la gare routière mise en œuvre à la même époque. Des revêtements polychromes s'adjoignent à l'ensemble pour en accentuer l'effet. Henri-Pierre Maillard et Armand Jourdain attestent, avec cet exceptionnel projet, de leur active participation à la Reconstruction. On leur doit, entre autres, les plans de l'îlot de l'ancien Café des Bains, au-dessus du port, où là aussi, les courbes forment les lignes du projet.
Localisation
Photos & plans
Galerie Botton - image 1 Galerie Botton - image 2 Galerie Botton - image 3 Galerie Botton - image 4 Galerie Botton - image 5 Galerie Botton - image 6
102 Îlot 31
Centre
Architecte : Marc QUENTIN
Lieu : Boulevard de Lattre de Tassigny, Rue Combe de Mons et Square CaudronDate de projet : 1953Date de livraison : 1960Programme : petits collectifs avec commerces en rez-de-chaussée
Situé le long du boulevard de Lattre de Tassigny, cet îlot profite de l'exceptionnel dégagement offert par le rondpoint de la Poste. L'hétérogénéité de hauteur des bâtiments qui le composent, révèle l'instabilité du terrain sur lequel il a été édifié et confère à l'opération sa singularité. Le rez-de-chaussée, occupé par des commerces, est surmonté de un ou deux étages, desservis par un colimaçon intérieur. Outre le traitement des façades largement emprunté à l'architecture navale, la mise en œuvre de garde-corps ajourés et de filins métalliques donne à l'ensemble une véritable identité maritime. Les toitures-terrasses reprennent fidèlement les récents dogmes initiés par le mouvement moderne et sont couronnées de curieux dômes transparents destinés à éclairer les escaliers hélicoïdaux. Pendant que les retraits imposés par les balcons animent la façade principale, l'arrière de l'îlot est épuré au maximum. Seuls, quelques hublots font entrave à la simplicité adoptée par l'architecte et rappellent aux passants la proximité de l'océan. Marc Quentin, déjà totalement investi dans la Reconstruction de Royan, se voit confier ici son premier chantier d'envergure. Se succéderont plus tard les projets pour les îlots 64 à Foncillon et 117 sur l'avenue de la Grande Conche.
Localisation
Photos & plans
Îlot 31 - image 1 Îlot 31 - image 2 Îlot 31 - image 3 Îlot 31 - image 4 Îlot 31 - image 5 Îlot 31 - image 6
103 Gare routière
Centre
Architecte : Pierre-Gabriel GRIZET, Louis SIMON
Lieu : Cours de l'EuropeDate de projet : 1953Date de livraison : 1964Collaborateur : R. Sarger
Intégrée à la vaste opération de la « tache verte », l'ancienne gare routière de Royan trouve sa place le long d'un des axes majeurs de la ville : le cours de l'Europe. Reprenant largement le dessin de l'architecte, Oscar Niemeyer, pour un restaurant-salle de bal, dans le quartier de Pampulha à Bello Horizonte au Brésil, la gare routière déploie son plan en forme de virgule devant les flux de véhicules entrant dans la ville. La toiture déroule sur une série de pilotis une langue de béton qui permet aux voyageurs d'attendre à couvert la navette qui les mènera à bon port. L'espace défini entre le sol et cette dalle aérienne constituait, à l'époque, la zone d'accueil et de renseignements. Il est enclos, sur toute sa périphérie, par de larges baies vitrées. Au nord, un soubassement de pierre permet de dissimuler au yeux du public les parties les plus techniques de l'édifice et agit tel un solide ancrage sur la stabilité de l'édifice. Les couleurs, bleue et verte, sont dues à la mise à disposition de l'édifice à la Compagnie départementale d'autobus Aunis et Saintonge. En trouvant son inspiration dans l'œuvre de Niemeyer, Louis Simon affiche ici les références brésiliennes qui marqueront moins ses projets que sa fidélité au pur style corbuséen.
Localisation
Photos & plans
Gare routière - image 1 Gare routière - image 2 Gare routière - image 3 Gare routière - image 4 Gare routière - image 5 Gare routière - image 6
104 Îlot 83, 93 N et 115
Centre
Architecte : Pierre MARMOUGET
Lieu : Place du docteur GantierDate de projet : 1946Date de livraison : 1961Programme : petits immeubles collectifs d'habitation
La place du docteur Gantier vient borner la vaste opération de planification appelée la « tache verte », qui s'étend de la gare à la Grande Conche. Organisée en demi-cercle, constituée de trois bâtiments semblables et d'un quatrième permettant la jonction avec la cour de la gare, la place a été dessinée pour doter le nouveau Royan d'une porte monumentale et accueillir les automobilistes en provenance de la route de Saintes, au cœur d'un véritable sanctuaire d'architecture moderne. La géométrie utilisée pour ce projet n'a plus rien à voir avec celle de l'enseignement classique des Beaux-Arts. Les façades ont été reculées pour créer des vides destinés à recevoir les balcons ouverts sur la place. La structure porteuse, signifiée par la présence des pilotis, confère ainsi une remarquable légèreté aux bâtiments. Un entresol a toutefois été conservé pour distinguer les commerces des étages d'habitation. Sa position en retrait accentue d'autant l'effet éthéré de l'ensemble. À l'arrière, d'imposants voiles de béton perforés sont accrochés, tels des papillons pétrifiés, devant les fenêtres. Brise-soleil et volets coulissants achèvent le traitement de la lumière. Avec ce projet, sans doute le plus abouti d'un point de vue formel, Pierre Marmouget finit d'affirmer son originalité et son incontestable attachement à l'architecture brésilienne.
Localisation
Photos & plans
Îlot 83, 93 N et 115 - image 1 Îlot 83, 93 N et 115 - image 2 Îlot 83, 93 N et 115 - image 3 Îlot 83, 93 N et 115 - image 4 Îlot 83, 93 N et 115 - image 5 Îlot 83, 93 N et 115 - image 6
105 Stade municipal
Centre
Architecte : Claude BONNEFOY
Lieu : angle des Boulevards Clemenceau et Boulevard de Lattre de TassignyDate de projet : 1957Date de livraison : 1961Maître d’ouvrage : Ville de RoyanMaîtres d’œuvre : Claude BonnefoyProgramme : terrain de football + vélodromeCollaborateur : R. Sarger, Chardonnet, ing.
Situé au nord-est de la vaste opération de la « Tache verte », le stade actuel ne ressemble que peu au très audacieux projet dessiné à l'origine. Au départ envisagé comme un ambitieux complexe sportif, l'édifice devait concilier avec brio technicité et esthétisme. De sculpturaux étais de béton, sans doute empruntés aux usines Peix et Duchen à Sao Paulo au Brésil, soutenaient la piste du vélodrome central sur toute sa périphérie. Seul élément réalisé, une double tribune émerge de l'ensemble et élance ses gradins selon deux orientations différentes. Disposées de part et d'autre, les entrées sont signalées par une monumentale virgule de béton qui leur sert d'auvent. Très imprégnée des références outre-atlantique, la mise en œuvre laissée brute de décoffrage, rappelle étrangement le musée de Niemeyer à Rio de Janeiro. Ce détail détonne légèrement dans un Royan où l'enduit lisse habille la quasi-totalité des bâtiments, à l'exception de Notre-Dame. En 1968, devant le chantier inachevé, la ville décide d'entreprendre la construction de la piscine municipale sur laquelle est ajoutée une seconde tribune. Bien qu'en partie désaffecté, le stade demeure un édifice d'une rare qualité et doit beaucoup à l'exceptionnelle collaboration de Claude Bonnefoy, l'architecte de la villa « Ombre Blanche » et de René Sarger, ingénieur du Marché central, de Notre-Dame et de la Gare routière.
Localisation
Photos & plans
Stade municipal - image 1 Stade municipal - image 2 Stade municipal - image 3 Stade municipal - image 4 Stade municipal - image 5
106 Maison de ville
Centre
Architecte : Marc QUENTIN
Lieu : 65, Avenue des TilleulsDate de projet : 1953Date de livraison : 1958Maître d’ouvrage : Madame Veuve Marie JoubertMaîtres d’œuvre : Marc QuentinProgramme : séjour + 2 chambres + 1 atelierSurface : SHOB 106 m²
Très proche, par son traitement, du numéro 5 de la même avenue, ce bâtiment tourne pourtant clairement le dos à la rue et à la ville en général. Jouant avec les différences de niveaux imposées par la déclivité naturelle du terrain, l'architecte organise l'habitation sur deux étages principaux. Le rez-de-chaussée, aligné sur la rue, dissimule son entrée dans un astucieux retrait. Un traitement en cul de bouteille en rappelle cependant la présence et offre au hall, un apport de lumière non négligeable. Un jeu de relief anime la façade principale et laisse apparaître un serpentin de béton dont une extrémité constitue le perron. À l'arrière, la verticalité du séjour, due à sa double hauteur sous plafond, est amplifiée par une surprenante fenêtre en longueur. Le volume, amputé par le porche, est rendu par la mise en œuvre d'une terrasse couverte lancée en porte-à-faux sur le jardin. De petits hublots en ajourent la paroi et filtrent les rayons du soleil. À l'étage, les deux chambres s'organisent autour de l'espace vide du living. L'une d'elles jouit du petit balcon créé par la loggia. Le toit à double pans inversés, que Quentin aime à mettre en œuvre, n'est malheureusement pas visible, compte tenu de la double mitoyenneté de l'habitation.
Localisation
Photos & plans
Maison de ville - image 1 Maison de ville - image 2 Maison de ville - image 3 Maison de ville - image 4 Maison de ville - image 5 Maison de ville - image 6
107 Maison de ville
Centre
Architecte : René BARATON, Jean BAUHAIN, Marc HÉBRARD
Lieu : 63, Avenue des TilleulsDate de projet : 1953Date de livraison : 1958Maître d’ouvrage : Madame Veuve PairéMaîtres d’œuvre : Jean Bauhain, Marc Hébrard, René BaratonProgramme : salon + salle à manger + 5 chambresSurface : SHOB 158 m²
Également situé dans l'avenue des Tilleuls, ce projet d'apparence plutôt classique a sans doute bénéficié de l'avant-gardisme de son voisinage. En effet, de 1953 à 1958, les principaux noms de l' « École de Royan » prennent simultanément part au chantier de ce quartier. Profitant de la différence de niveau de la rue, par rapport au jardin, cette maison de ville déploie son plan sur trois étages, dont deux seulement sont visibles en façade. Toute la mise en œuvre de ce bâtiment révèle le changement ambiant des références architecturales. La toiture à double pans, projetée à l'origine, a été remplacée par un toit à pan unique presque imperceptible, puisque dissimulé derrière une corniche de béton. De même, l'identification de la cage d'escalier par une succession de hublots évoque clairement le contexte maritime et naval de la cité balnéaire. À l'arrière, la façade, empruntée aux dogmes modernes, a été reculée et offre aux chambres deux larges balcons. Le trio Baraton, Bauhain et Hébrard, qui compte parmi les grands noms de la Reconstruction de Royan, signe pourtant un projet nettement plus modéré que ceux, voisins, de Quentin et de Marmouget.
Localisation
Photos & plans
Maison de ville - image 1 Maison de ville - image 2 Maison de ville - image 3 Maison de ville - image 4 Maison de ville - image 5 Maison de ville - image 6
108 Maison de ville
Centre
Architecte : Pierre MARMOUGET, Edouard PINET
Lieu : 5, Avenue des TilleulsDate de projet : 1953Date de livraison : 1958Maître d’ouvrage : Monsieur G. RenauleaudMaîtres d’œuvre : Edouard Pinet, Pierre MarmougetSurface : SHOB 140 m²
Sans doute l'une des réalisations les plus originales de l'avenue des Tilleuls, cette petite maison de ville s'inscrit dans la lignée des projets décoratifs, emblématiques de la Reconstruction de Royan. Le rez-de-chaussée, en retrait par rapport au trottoir, offre un espace intermédiaire qui accompagne le visiteur à couvert, de l'extérieur vers l'intérieur, jusque vers l'étage où le séjour a été imaginé loin des nuisances de la rue. Reprenant ainsi les dogmes initiés par Le Corbusier, l'architecte affirme clairement son appartenance au mouvement moderne. Pour preuve, l'extraordinaire façade du premier étage, percée d'une pléiade d'oculi de verre, projette vers la ville son unique baie telle un écran urbain qui rappelle aux passants la richesse décorative des années 50. À l'arrière, un balcon accessible depuis le jardin offre aux pièces de séjour une agréable terrasse abritée qui invite les occupants à prendre possession du terrain. Ce projet illustre parfaitement le savoir-faire architectural et stylistique de Pierre Marmouget dont la signature décorative et ornementale a, ici, été fidèlement réutilisée pour surélever le bâtiment d'un étage, tout en conservant le style et les qualités architecturales d'origine.
Localisation
Photos & plans
Maison de ville - image 1 Maison de ville - image 2 Maison de ville - image 3 Maison de ville - image 4 Maison de ville - image 5 Maison de ville - image 6
109 Villa ”Ar dé Lu”
Centre
Architecte : Marc QUENTIN
Lieu : 13, Rue de la TerrasseDate de projet : 1955Date de livraison : 1956Maître d’ouvrage : Lucien GuillotMaîtres d’œuvre : Marc QuentinProgramme : séjour + 2 chambresSurface : SHOB 95 m²
Cette petite maison de la rue de la Terrasse rappelle étrangement le prototype de maison familiale en béton armé proposé, dès la fin des années 40, par l'architecte Pingusson. Son implantation respecte en effet l'orientation de sa façade principale au sud et l'ensemble de l'habitation est enceinte par un portique de béton, incliné pour limiter la pénétration du soleil. La façade, placée en retrait, profite des débords de la toiture et des murs pignons pour en repousser les rayons les plus chauds. Elle permet également à un large balcon de s'y déployer, pour ainsi lier les deux chambres. Une curieuse boîte en forme d'entonnoir semble avoir été plantée dans le rez-de-chaussée et conduit, comme malgré elle, le visiteur jusqu'à l'entrée qu'elle flanque. La coursive de l'étage est décollée par un traitement de pavés de verre. À l'arrière, le séjour se prolonge sur le jardin par une annexe basse dont le pan de toit a été inversé par rapport à celui du corps principal. Marc Quentin fait preuve d'un grand professionnalisme en attachant autant de soin à la réalisation de petits bâtiments qu'à celle de programmes plus ambitieux.
Localisation
Photos & plans
Villa ”Ar dé Lu” - image 1 Villa ”Ar dé Lu” - image 2 Villa ”Ar dé Lu” - image 3 Villa ”Ar dé Lu” - image 4 Villa ”Ar dé Lu” - image 5 Villa ”Ar dé Lu” - image 6
110 Immeuble mitoyen
Centre
Architecte : Georges VERGNAUD
Lieu : 19, Rue de la TerrasseDate de projet : 1955Date de livraison : 1958Maître d’ouvrage : Monsieur Robert PechevisMaîtres d’œuvre : Georges VergnaudProgramme : 2 maisons mitoyennes identiques séjour + 1 chambreSurface : SHOB 2 x 53 m²Collaborateur : Louis Belasco
Situé au cœur de l'ancien Royan, ce petit immeuble profite pourtant du calme impressionnant de la rue de la Terrasse. Son apparente homogénéité tend à nous laisser ignorer la véritable histoire de sa construction. À l'origine, le propriétaire confia la réalisation de deux garages symétriques à l'architecte Belasco. Puis, profitant des dommages de guerre, il les fit rehausser deux ans plus tard en faisant appel, cette fois, à Georges Vergnaud. Aussi, les deux garages ont été conservés et sont devenus le socle d'un pesant parallélépipède de béton. Amputée au volume, une étonnante cage d'escalier mène à l'étage. Contenu dans une curieuse cheminée ajourée de sept lézardes superposées, l'escalier s'enroule autour d'un solide pilotis et mène le visiteur vers deux coursives latérales. Au rez-de-chaussée, la porte d'entrée commune, abritée par un vulnérable auvent lancé en porte-à-faux au-dessus de la cour, était signifiée par un traitement en cul de bouteille. Pour finir, la toiture à pan unique est fendue dans toute sa longueur afin d'inonder de lumière le cœur de chaque habitation. Georges Vergnaud, à qui l'on doit, pendant la Reconstruction de Royan, un changement radical de références, est sans doute l'un des architectes qui aura manié le plus grand nombre de styles architecturaux différents.
Localisation
Photos & plans
Immeuble mitoyen - image 1 Immeuble mitoyen - image 2 Immeuble mitoyen - image 3 Immeuble mitoyen - image 4 Immeuble mitoyen - image 5 Immeuble mitoyen - image 6
111 Villa
Centre
Architecte : Jacques BRUNEAU
Lieu : 56, Rue Pierre du Gua (angle Rue de Sion)Date de projet : 1955Date de livraison : 1960Maître d’ouvrage : Maurice RabaudMaîtres d’œuvre : Jacques BruneauSurface : SHOB 140 m²
Édifiée en marge des mutations du centre-ville, cette intéressante villa reprend quelques-uns des principes fondamentaux de l'architecture brésilienne. Accotée au flanc nord d'une agréable parcelle d'angle, elle impose au carrefour son puissant prisme de béton. Un lit de pierre en assure le socle et permet au visiteur d'être cueilli, à même la rue, par l'escalier laissé apparent en partie basse de la façade. À l'étage, le « monolithe » est creusé dans sa longueur pour dégager un balcon confortable et permettre à ses occupants de profiter de la vue sur le jardin. Un esthétique claustra referme toutefois une partie du volume, amputé pour éloigner les regards de la rue et protéger une pièce, peu profonde, des rayons du soleil. Le pignon serait, quant à lui, hermétiquement fermé, si dix oculi ne venaient animer la surface et offrir quelques rais de lumière à la cage d'escalier. Jacques Bruneau, architecte bordelais, qui met ici en œuvre la plupart des éléments de vocabulaire qui caractérise l'architecture de la Reconstruction, réalise un projet de qualité qui témoigne de son élan moderniste et qui s'inscrit, à moindre échelle, dans la continuité des travaux du Palais des Congrès auxquels il a été associé.
Localisation
Photos & plans
Villa - image 1 Villa - image 2 Villa - image 3 Villa - image 4 Villa - image 5 Villa - image 6
112 Maison de ville
Centre
Architecte : René BARATON, Jean BAUHAIN, Marc HÉBRARD
Lieu : 66 bis, Rue PasteurDate de projet : 1958Date de livraison : 1960Maître d’ouvrage : Aristide CottyMaîtres d’œuvre : Jean Bauhain, Marc Hébrard, René BaratonProgramme : séjour + 2 chambresSurface : SHOB 95 m²Collaborateur : J.A. et J.B. (dessinateurs)
À proximité du Marché couvert et du centre-ville, ce projet de la rue Pasteur met en œuvre bon nombre d'éléments caractéristiques de l'architecture des années 50. Le bâtiment est décomposé en deux niveaux distincts par leur traitement, par leur surface et par leur fonction, unis sous un toit à double pans inversés. Le rez-de-chaussée est entièrement alloué à un vaste garage qui se prolonge jusqu'au milieu du petit jardin arrière, en un imposant cube aveugle. À l'origine, le porte-à-faux de l'étage offrait un passage couvert qui permettait de relier directement la rue au jardin. Aujourd'hui obstruée, cette percée visuelle conférait à l'ensemble une réelle légèreté. Au centre, l'entrée a fait l'objet d'une réflexion particulière. Flanquée d'un solide mur de maçonnerie de pierre, la porte est enchâssée dans une paroi de pavés de verre qui apporte au hall la lumière nécessaire. L'habitation, reléguée à l'étage supérieur, paraît beaucoup plus homogène. Son enduit blanc linéaire l'oppose à la mixité matérielle du niveau bas. Seule, la cage d'escalier, identifiée par une pléiade de hublots, en anime la façade. À l'aube des Sixtie's, cette énième réalisation des trois architectes royannais Bauhain, Baraton et Hébrard annonce déjà l'échéance de la Reconstruction.
Localisation
Photos & plans
Maison de ville - image 1 Maison de ville - image 2 Maison de ville - image 3 Maison de ville - image 4 Maison de ville - image 5 Maison de ville - image 6